Beschluss des Gemeinderats der Ortsgemeinde Neuburg zum Satzungsbeschluss der 3. Änderung und Erweiterung des Bebauungsplanes Mischgebiet „Im Derrück“ gemäß § 10 BauGB i.V.m. § 24 GemO
Der Ortsgemeinderat Neuburg hat in der Sitzung am 09.03.2022 zunächst die Stellungnahmen, die während der erneuten Beteiligung der Öffentlichkeit sowie der Behörden und sonstigen Träger öffentlicher Belange vorgebracht wurden, geprüft. Im Anschluss hat der Ortsgemeinderat mit Beschluss vom 09.03.2022 die 3. Änderung und Erweiterung des Bebauungsplanes Mischgebiet „Im Derrück“, in der sich ergebenden Fassung als Satzung (§ 10 BauGB i.V.m. § 24 GemO) beschlossen. Die Begründung zum Bebauungsplan wurde gebilligt. Der Umweltbericht ist ein gesonderter Teil der Begründung.
Mit der Bekanntmachung tritt die 3. Änderung und Erweiterung des Bebauungsplanes Mischgebiet „Im Derrück“ in Kraft.
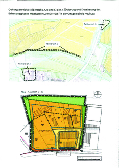
Geltungsbereich des Plangebietes:
Der Geltungsbereich ist aus den beiliegenden Planauszügen ersichtlich.
Jedermann kann die 3. Änderung und Erweiterung des Bebauungsplanes Mischgebiet „Im Derrück“ sowie die Begründung bei der Verbandsgemeindeverwaltung Hagenbach, Fachbereich 2 – Natürliche Lebensgrundlagen und Bauen, Zi.-Nr. 207, Ludwigstraße 20, 76767 Hagenbach während der Dienststunden einsehen und über den Inhalt Auskunft erlangen. Die Bebauungsplanunterlagen werden zudem entsprechend § 10 a Abs. 2 BauGB auf der Homepage der Verbandsgemeinde Hagenbach (www.vg-hagenbach.de) eingestellt und damit zur Einsicht vorgehalten.
Frist für die Geltendmachung der Verletzung von Vorschriften:
Unbeachtlich werden gemäß § 215 Abs. 1 S. 1 BauGB
wenn sie nicht innerhalb eines Jahres seit Bekanntmachung der Satzung schriftlich gegenüber der Verbandsgemeindeverwaltung, Ludwigstraße 20, 76767 Hagenbach unter Darlegung des die Verletzung begründenden Sachverhalts geltend gemacht worden sind.
Auf die Vorschriften des § 44 Abs. 3 S. 1 und 2 sowie Abs. 4 BauGB über die fristgemäße Geltendmachung etwaiger Entschädigungsansprüche für Eingriffe in eine bisher zulässige Nutzung durch diesen Bebauungsplan und über das Erlöschen möglicher Entschädigungsansprüche wird hingewiesen. Ein Entschädigungsanspruch erlischt, wenn nicht innerhalb von 3 Jahren nach Ablauf des Kalenderjahres, in dem die in § 44 Abs. 3 Satz 1 BauGB bezeichneten Vermögensnachteile eingetreten sind, die Fälligkeit des Anspruches herbeigeführt wird.
Ferner wird darauf hingewiesen, dass Satzungen, die unter Verletzung von Verfahrens- oder Formvorschriften der GemO oder aufgrund der GemO zustande gekommen sind, ein Jahr nach der Bekanntmachung als von Anfang an gültig zustande gekommen gelten. Dies gilt nicht, wenn
| 1. | die Bestimmungen über die Öffentlichkeit der Sitzung, die Genehmigung, die Ausfertigung oder die Bekanntmachung der Satzung verletzt worden sind oder |
| 2. | vor Ablauf der vorstehend genannten Frist die Aufsichtsbehörde den Beschluss beanstandet oder jemand die Verletzung der Verfahrens- oder Formvorschriften gegenüber der Verbandsgemeindeverwaltung, Ludwigstraße 20, 76767 Hagenbach unter Bezeichnung des Sachverhalts, der die Verletzung begründen soll, schriftlich geltend gemacht hat. |
Hat jemand eine Verletzung nach Nr. 2 geltend gemacht, so kann auch nach Ablauf der vorstehend genannten Frist jedermann diese Verletzung geltend machen (§ 24 Abs. 6 GemO).
Die Bekanntmachung nach den Rechtsvorschriften des § 10 BauGB beinhaltet auch die förmliche Bekanntmachung der gestalterischen Festsetzungen nach § 88 Abs. 6 LBauO Rheinland-Pfalz.