Titel Logo
Amtsblatt der VG Hagenbach
Ausgabe 8/2023
Amtlicher Teil
Zurück zur vorigen Seite
Zurück zur ersten Seite der aktuellen Ausgabe

Bekanntmachung

Bekanntmachung

des Beschlusses über die erneute öffentliche Auslegung des Bebauungsplanes "Kröningsbusch" der Ortsgemeinde Berg gemäß § 4a Abs. 3 BauGB

Der Ortsgemeinderat Berg hat in den Sitzungen am 13.12.2022 und 14.02.2023, nach vorheriger Prüfung der Stellungnahmen, die während der Beteiligung der Öffentlichkeit sowie der Behörden und sonstigen Träger öffentlicher Belange vorgebracht wurden, den erneuten Entwurfs- und Auslegungsbeschluss gefasst.

Zum vorherigen Planentwurf ergeben sich im Wesentlichen folgende Änderungen:

Umwandlung Gebietscharakter von Mischgebiet in Dörfliches Wohngebiet

Anpassung der Randeingrünung/Grasweg im nordöstlichen Bereich des Plangebietes

Verbreiterung des Feldweges, Flur-Nr. 4518/1, auf 6 m

Abrücken des Baufensters im Kurvenbereich, Flur-Nr. 4490, 4491 und 4492

Ausbildung einer Baumreihe entlang der Ludwigstraße als Ergänzung zu bestehenden Bäumen

Erhöhung der Pflanzverpflichtung von 1 Baum je 400 m² anstatt 500 m² Grundstücksfläche

Nachrichtliche Kennzeichnung der Bushalteflächen.

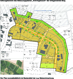
Geltungsbereich:

Der Geltungsbereich des Bebauungsplanes besteht aus den Teilbereichen 1 (Plangebiet) und 2 (Ausgleichsfläche).

Das Plangebiet umfasst voll- oder teilumfänglich die Flurstücke 2166, 2179, 2184, 2185/3, 2186, 2187/2, 2188/1, 2188/2, 2189/1, 2189/2, 2194/1, 2194/2, 2195/1, 2195/2, 4037/1, 4037/2, 4485/2, 4490, 4491, 4492, 4493, 4494, 4495, 4496, 4506/3, 4506/4, 4507, 4508, 4509, 4510, 4511, 4512, 4513, 4514, 4515, 4516, 4517/1, 4518/1, 4519, 4520, 4521, 4522, 4524, 4526, 4527/1, 4528/1 sowie 4529.

Die Größe des Plangebietes beträgt ca. 3,15 ha.

Die Ausgleichsfläche umfasst das nach Abschluss des Flurbereinigungsverfahrens Berg Riegeldeich neu gebildete Flurstück 5036 mit ca. 0,83 ha.

Der Geltungsbereich beider Teilbereiche ist aus dem beigefügten Planauszug ersichtlich.

Durch die Änderung des Planentwurfes wird gemäß § 4a Abs. 3 BauGB eine erneute öffentliche Auslegung erforderlich.

Gemäß § 3 Abs. 1 Planungssicherstellungsgesetz (PlanSiG) erfolgt die erneute Auslegung der Planunterlagen in der Zeit vom 06.03.2023 bis einschließlich 05.04.2023 auf der der Internetseite der Verbandsgemeindeverwaltung Hagenbach unter

https://www.vg-hagenbach.de/rathaus-politik/oeffentliche-auslegung/.

Zusätzlich besteht gem. § 3 Abs. 2 PlanSiG die Möglichkeit, den geänderten Planentwurf des Bebauungsplanes „Kröningsbusch“, nach vorheriger Terminvereinbarung per E-Mail unter

Bauverwaltung@vg-hagenbach.de oder per Telefon unter 07273/9410-47, während der Dienstzeiten bei der Verbandsgemeindeverwaltung Hagenbach, Ludwigstraße 20, 76767 Hagenbach, im Fachbereich 2 - Natürliche Lebensgrundlagen und Bauen einzusehen.

Stellungnahmen können schriftlich, auch elektronisch oder durch Fax oder in sonstiger Weise, oder mündlich zur Niederschrift während der Dienststunden bei der oben angegebenen Dienststelle abgeben werden. Stellungnahmen per E-Mail bitten wir zu richten an Bauverwaltung@vg-hagenbach.de.

Weiterhin wird darauf hingewiesen, dass

Stellungnahmen während der erneuten Auslegung nur zu den geänderten Planinhalten abgegeben werden können,

nicht fristgerecht abgegebene Stellungnahmen bei der Beschlussfassung über den Bebauungsplan unberücksichtigt bleiben können.

Folgende Unterlagen können eingesehen werden:

Zeichnerische Festsetzungen

Textliche Festsetzungen

Begründung

Umweltbericht mit integrierter Eingriffs-/Ausgleichsbilanzierung

Zu den bereits vorhandenen Umweltinformationen liegt nun nachfolgend weitere wesentliche umweltbezogene Stellungnahme sowie Information zu umweltrelevanten Aspekten aus, die im Rahmen der öffentlichen Auslegung neu vorgetragen wurde.

Folgendes Schriftstück liegt vor:

Stellungnahme der Generaldirektion Kulturelles Erbe Rheinland-Pfalz,

Geschäftsstelle Praktische Denkmalpflege, Direktion Landesdenkmalpflege, Mainz vom 15.06.2022

In dem Schriftstück wird insbesondere das nachfolgende Thema angesprochen:

Arten vorliegender Umweltinformationen zu den Schutzgütern

Kultur und sonstige - Hinweis auf sich im Umfeld befindliches Sachgüter Flächendenkmal „Westwall“

Im Zusammenhang mit dem Datenschutz wird ausdrücklich darauf hingewiesen, dass ein Bauleitplanverfahren ein öffentliches Verfahren ist und daher in der Regel alle dazu eingehenden Stellungnahmen in öffentlichen Sitzungen beraten und entschieden werden, sofern sich nicht aus der Art der Einwände oder der betroffenen Personen ausdrückliche oder offensichtliche Einschränkungen ergeben. Laut den Vorgaben der Datenschutz-Grundverordnung (DSGVO) Art. 6 I a), e), f) werden personenbezogene Daten von Bürgerinnen und Bürgern wie Vor- und Familienname sowie Kontaktdaten (Anschrift, Telefon- und Faxnummer, E-Mailadresse) zur Bearbeitung der vorgebrachten Anregungen gespeichert und in den Drucksachen für die öffentlichen Sitzungen des Gemeinderats und der Ausschüsse anonymisiert aufgeführt. Grundsätzlich wird auf die Datenschutzerklärung der Verbandsgemeindeverwaltung Hagenbach verwiesen.

Hagenbach, den 15.02.2023
Verbandsgemeindeverwaltung
gez. Iris Fleisch
Bürgermeisterin