Titel Logo
Asslar - Die Woche
Ausgabe 35/2024
Amtliche Bekanntmachungen
Zurück zur vorigen Seite
Zurück zur ersten Seite der aktuellen Ausgabe

Straßensanierung im Stadtgebiet Aßlar

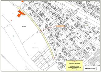
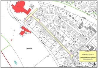
Die Stadt Aßlar plant im Rahmen der Straßensanierungs- und Unterhaltungsarbeiten, die Erneuerung der Asphaltdeckschichten in den folgenden Straßen durchzuführen: Nordring in Werdorf in zwei Abschnitten, Gartenstraße, Pestalozzistraße ab Kantstraße, Mühlgrabenstraße und Kirchstraße. Die Arbeiten beginnen am 05.08.2024 und werden voraussichtlich bis Ende November andauern. Während dieser Zeit kann es zu Verkehrsbehinderungen kommen - wir bitten um Verständnis. Die einzelnen Sanierungsabschnitte entnehmen Sie bitte aus den beigefügten Lageplänen.

Nordring Teil 1

Nordring Teil 2

Pestalozzistraße

Mühlgrabenstraße

Kirchstraße

Gartenstraße