Titel Logo
Asslar - Die Woche
Ausgabe 47/2025
Amtliche Bekanntmachungen
Zurück zur vorigen Seite
Zurück zur ersten Seite der aktuellen Ausgabe

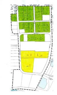
Bewerbungsfrist für das Neubaugebiet „Erweiterung Werdorf Süd-Ost“

Vom 19. November 2025 bis einschließlich 14. Januar 2026 können sich Interessenten um ein voll erschlossenes Baugrundstück im Neubaugebiet „Erweiterung Werdorf Süd-Ost“ bewerben. Zum Verkauf stehen Grundstücke im allgemeinen Wohngebiet sowie Grundstücke im Gewerbegebiet. Die Vergaberichtlinien sind auf der städtischen Webseite unter www.asslar.de/rathaus/satzungen-und-formulare/ oder über folgenden QR Code abrufbar:

Den Bebauungsplan finden Sie unter

https://bplan.geoventis.de/asslar/bplan/6-14-BP.pdf.

Die Grundstücke im allgemeinen Wohngebiet haben eine Größe von ca. 550 bis 1.100 m². Die Wohnbaugrundstücke werden zu einem Preis von 160,00 €/m² veräußert.

Die Grundstücke im Gewerbegebiet sind ca. 2.600 bis 4.750 m² groß. Eine kleinere Parzellierung ist unter Umständen möglich. Die Gewerbegrundstücke werden zu 55,00 €/m² verkauft.

Der Verkaufspreis beinhaltet die Erschließung sowie einen Fernwärmeanschluss. Die Erschließungsarbeiten werden nach derzeitiger Planung im Sommer 2026 abgeschlossen sein.

Bitte beachten Sie, dass Bewerbungen nur innerhalb der oben genannten Bewerbungsfrist angenommen und berücksichtigt werden. Ein Liquiditätsnachweis ist jeder Bewerbung beizufügen.

Das Bewerbungsformular steht Ihnen online ausfüllbar zur Verfügung.

Bei Fragen wenden Sie sich an Frau Julia Rother, Email julia.rother@asslar.de, Telefon 06441 803-411 (telefonisch erreichbar von Dienstag bis Freitag zwischen 7:30 bis 12:30 Uhr sowie nach Vereinbarung).