Titel Logo
Breitscheider Nachrichten
Ausgabe 32/2023
Amtliche Bekanntmachungen
Zurück zur vorigen Seite
Zurück zur ersten Seite der aktuellen Ausgabe

Bauleitplanung der Gemeinde Breitscheid

1. Änderung und Erweiterung des Bebauungsplanes "Auf der Hub", Gemarkung Breitscheid

hier:

Aufstellungsbeschluss gemäß § 2 (1) Baugesetzbuch (BauGB)

Allgemeine Ziele und Zwecke

Beteiligung der Öffentlichkeit gemäß § 3 (1) BauGB

Aufstellungsbeschluss gemäß § 2 (1) BauGB

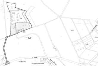
Die Gemeindevertretung hat die Aufstellung des o.g. Planes beschlossen. Die Grenzen des Geltungsbereiches sind aus nachfolgender Abbildung ersichtlich.

Die Flächen des Geltungsbereiches liegen in der Gemarkung Breitscheid, Flur 11, und werden wie folgt abgegrenzt:

Im Norden:

Landwirtschaftliche Flächen

Im Osten:

Wald (Flurstück 5), dahinter landwirtschaftliche Flächen

Im Süden:

landwirtschaftliche Flächen, dahinter Wald

Im Westen:

Gehölzbestand sowie landwirtschaftliche Flächen

Zusätzlich wurde die Erschließungsstraße bis zur Landesstraße L 3044 aufgenommen.

Die Flächen liegen etwa 280 m nördlich dieser Landesstraße.

Allgemeine Ziele und Zwecke

In 2001 wurde der Bebauungsplan „Auf der Hub“ rechtskräftig.

Die Art der zulässigen Nutzungen des Sondergebietes sind in diesem Bebauungsplan wie folgt definiert:

  • Einrichtungen zur Be- und Verarbeitung und Sammlung landwirtschaftlicher Erzeugnisse
  • Anlagen für kirchliche, soziale, gesundheitliche und sportliche Zwecke
  • Wohnungen für Aufsichts- und Bereitschaftspersonen sowie für Angestellte und betreute Personen der Gefährdetenhilfe sowie für Seminarteilnehmer

Die in 2001 vorhandenen und zwischenzeitlich erbauten Gebäude werden zur Ausbildung (Zimmerei/Schreinerei) genutzt. Unter anderem sind Lager- und Produktionshallen und ein Verwaltungsgebäude sowie Stallungen, Scheunen und Abstellhallen vorhanden.

Es werden insgesamt rund 100 ha landwirtschaftlich bewirtschaftet. Eine Beweidung mit Kühen findet auf den landwirtschaftlichen Flächen teilweise statt.

Zurzeit gibt es 5 besetzte Ausbildungsplätze für die Berufe Schreiner, Holzmechaniker und Fachpraktiker für die Holzbearbeitung bei insgesamt 20 Arbeitsplätzen sowie, je nach Bedarf, 3-4 Praktikumsplätze.

Die Zahl der Arbeitsplätze soll mittelfristig auf 30-35 erhöht werden.

Es fehlen Hallen/Räume für Produktion und Ausbildung, Lagerflächen sowie Sanitär- und Sozialräume. Auch sollen bedarfsorientiert ein neues Bürogebäude sowie eine Ausbildungshalle kurzfristig errichtet werden.

Die Flächen des Geltungsbereiches werden teilweise auch durch den in 2003 gegründeten Pfadfinderstamm August-Hermann-Franke genutzt. In der Vergangenheit fanden auf der Fläche bereits mehrfach Zeltlager statt.

Durch Schulung, Spiel, Sport und Integration in die Gemeinschaft werden im Rahmen des Projektes straffällig gewordene Kinder und Jugendliche resozialisiert. Auch werden Kinder von Straftätern betreut.

Für die Kinder- und Jugendarbeit diente zunächst ein Tipi als Versammlungsplatz, später kamen Sozial- und Versammlungsräume hinzu und in 2014 wurde das Pfadfinderhaus errichtet, welches auch als Gästehaus genutzt wird. Derzeit sind etwa 50 Personen bei den Pfadfindern, die sich wöchentlich treffen, aktiv. Eine Warteliste musste eingerichtet werden.

Da das Tipi nicht ausreichend wetterfest ist, soll es durch eine stabile Holzkonstruktion ersetzt werden.

Sanitäre Räume fehlen, sodass die Nutzung nur sehr eingeschränkt möglich ist.

Der Bau eines Gebäudes mit u.a. Gruppen-, Empfangs- und Lagerräumen, einer Küche, Sanitärräumen mit Duschen und WCs sind vorgesehen.

Eine größere Grillhütte soll errichtet werden sowie Stellplätze gebaut werden.

Durch diese Maßnahmen können wesentlich mehr Personen betreut und die Warteliste abgebaut werden.

Durch die Änderung der Bauleitplanung sollen die bauleitplanerischen Voraussetzungen für die oben genannten Ziele vorbereitet werden.

Im Bebauungsplan sind im Wesentlichen Sondergebiete für die Gefährdetenhilfe und für die Pfadfinder sowie Grünflächen für die Pfadfinder, Ausgleichsflächen und Parkplätze festgesetzt.

Beteiligung der Öffentlichkeit gemäß § 3 (1) BauGB

Die Unterrichtung über die allgemeinen Ziele und Zwecke der Planung und der voraussichtlichen Auswirkungen erfolgt in der Zeit

vom 14.08.2023 bis einschließlich 15.09.2023

während der Öffnungszeiten oder nach Vereinbarung im Rathaus der Gemeinde Breitscheid, Rathausstraße 14, 35767 Breitscheid, im Raum 0.05.

Während dieses Zeitraumes hat die Öffentlichkeit auch Gelegenheit zur Äußerung und Erörterung, auch im Hinblick auf den erforderlichen Umfang und Detaillierungsgrad der Umweltprüfung nach § 2 Absatz 4 BauGB.

Die Öffentlichkeit kann sich informieren und durch Wünsche und Anregungen die Planung beeinflussen.

Öffnungszeiten des Rathauses:

Montag, Dienstag und Donnerstag: 08:00 bis 12:00 Uhr und 13:30 bis 15:30 Uhr

Mittwoch und Freitag: 08:00 bis 12:00 Uhr

Die Stellungnahmen werden ausgewertet und in nicht-öffentlichen und öffentlichen Sitzungen beraten. Die Verarbeitung der personenbezogenen Daten erfolgt nur im Rahmen des Planungsprozesses und im Übrigen unter Beachtung der Datenschutzverordnung.

Es wird darauf hingewiesen, dass ein Planungsbüro mit der Durchführung des Verfahrens beauftragt wurde.

Der Gemeindevorstand der Gemeinde Breitscheid
Roland Lay, Bürgermeister