Titel Logo
Eiterfelder Nachrichten
Ausgabe 21/2024
Amtliche Bekanntmachungen
Zurück zur vorigen Seite
Zurück zur ersten Seite der aktuellen Ausgabe
-

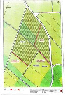
Einziehung einer öffentlichen Wegeparzelle in der Gemarkung Dittlofrod, Flur 3, Flurstück 53 Teilfläche ca. 1.314 m² mit entsprechender Anlegung eines Ersatzfeldweges (Aufhebung/Änderung Flurbereinigungsplan Dittlofrod)  

Auf Antrag soll die im Eigentum der Marktgemeinde Eiterfeld befindliche Wegeparzelle in Gemarkung Dittlofrod, Flur 3, Flurstück 53 (davon eine Teilfläche ca. 1.314 qm) eingezogen und die öffentliche Nutzung aufgegeben werden; damit verbunden ist das Anlegen eines Ersatzfeldweges.

Die betroffene Wegeparzelle/der betroffene Flächenbereich ist im nachstehenden Kartenausschnitt gekennzeichnet.

Des Weiteren können entsprechende Flurkartenauszüge bei der Gemeindeverwaltung Eiterfeld, Fürstenecker Straße 2, 36132 Eiterfeld, Rathaus, Ebene 3, Zimmer 306, Tel.: 06672/9299-24 während der Dienstzeiten eingesehen werden.

Etwaige Bedenken und Einwände gegen die geplante Einziehung des öffentlichen Fahrweges und das Anlegen eines Ersatzfeldweges können bis spätestens 05.07.2024 bei der Gemeindeverwaltung Eiterfeld, Fürstenecker Straße 2, 36132 Eiterfeld, schriftlich oder zur Niederschrift geltend gemacht und begründet werden.

Eiterfeld, 24.05.2024

Gemeindevorstand der
Marktgemeinde Eiterfeld
gez. Scheich
Bürgermeister