Titel Logo
Eiterfelder Nachrichten
Ausgabe 36/2025
Amtliche Bekanntmachungen
Zurück zur vorigen Seite
Zurück zur ersten Seite der aktuellen Ausgabe

Auszug aus dem Protokoll der 26. Sitzung des Bau-, Planungs- und Umwelt­ausschusses

der Marktgemeinde Eiterfeld

am Dienstag, 26. August 2025, um 19:30 Uhr

im Sitzungssaal des Amtsgerichtsgebäudes in Eiterfeld

Katholische Kindertagesstätte "St. Georg" in Eiterfeld; Erweiterung und Sanierung

Bekanntgabe zum Sachstand und Beratung Beschlussfassung über die weitere Vorgehensweise

Der Bau- Planungs- und Umweltausschuss nimmt den aktuellen Sachstand der Planung zur Sanierung und Erweiterung der Katholischen Kindertagesstätte „St. Georg“ zustimmend zur Kenntnis und empfiehlt der Gemeindevertretung einstimmig die Beauftragung weiterer notwendiger Schritte für die Sanierung und Erweiterung der Katholischen Kindertagesstätte „St. Georg“.

Beratung und Beschlussfassung zum Bauplatzverkaufspreis im Neubaugebiet "Hinter den Gärten" im Ortsteil Leibolz

Der Gemeindevertretung wird einstimmig empfohlen zu beschließen, den Bauplatzverkaufspreis für das Neubaugebiet „Hinter den Gärten“ in Leibolz auf 75,00 €/m² festzulegen.

Der Bauplatzverkaufspreis wurde anlog der „Bartholomäusstraße“ kalkuliert.

Die aktuelle Gesamtbauplatzfläche für den 2. Bauabschnitt „Hinter den Gärten“. Ortsteil Leibolz beträgt 8.723 m² mit sechs vermarktbaren Bauplätzen. 2.714 m² entfallen auf die neue Kindertagesstätte „Bauernhofhelden“, 1.600 m² auf zwei private Bauplätze.

Der errechnete Bauplatzverkaufspreis beträgt 74,76 €/m².

Bauleitplanung der Marktgemeinde Eiterfeld

Vorhabenbezogener Bebauungsplan Nummer 3 „Am Kalkofen“, Ortsteil Soisdorf

a) Beratung über die Abwägung der während der öffentlichen Auslegung gemäß § 3 Absatz 2 BauGB und der förmlichen Beteiligung der Behörden und sonstigen Träger öffentlicher Belange gemäß § 4 Absatz 2 BauGB eingegangenen Stellungnahmen

b) Beschlussfassung über den vorhabenbezogenen Bebauungsplan Nummer 3 „Am Kalkofen“ als Satzung gemäß § 10 Absatz 1 BauGB

Der Gemeindevertretung wird einstimmig empfohlen zu beschließen:

zu a)

Beratung über die eingegangenen Stellungnahmen:

Dem Abwägungsvorschlag des Planungsbüros GEOS vom 18.07.2025 über die während der öffentlichen Auslegung und der förmlichen Beteiligung der Behörden und sonstigen Träger öffentlicher Belange eingegangenen Stellungnahmen wird zugestimmt.

zu b)

Beschluss über den vorhabenbezogenen Bebauungsplan als Satzung:

Der vorhabenbezogene Bebauungsplan in der Fassung vom 18.07.2025 wird als Satzung beschlossen. Die Begründung in der Fassung vom 18.07.2025 wird gebilligt.

Der vorhabenbezogene Bebauungsplan ist der Genehmigungsbehörde beim Regierungspräsidium Kassel zur Genehmigung vorzulegen.

Kenntnisnahme zum aktuellen Sachstand der gemeindlichen Kanal-TV-Untersuchung gemäß Eigenkontrollverordnung EKVO sowie Sachstandsbericht zur geplanten Maßnahme "Fremdwasserreduzierung Abwassergruppe Soisdorf"

Die Erläuterungen des Bauamtsleiters Frank Schott zum Sachstand der gemeindlichen Kanal-TV-Untersuchung gemäß Eigenkontrollverordnung (EKVO) und zur geplanten Maßnahme „Fremdwasserreduzierung Abwassergruppe Soisdorf“ wird zur Kenntnis genommen.

Beratung und Beschlussfassung

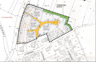
a) zum Aufstellungsbeschluss der 3. Änderung des Bebauungsplan Nummer 3 Ortsteil Leimbach "Bartholomäusstraße"

b) zur Veränderungssperre nach § 14 BauGB zur 2. Änderung des Bebauungsplans Nummer 3 "Bartholomäusstraße", Ortsteil Leimbach

zu a)

Der Gemeindevertretung wird einstimmig empfohlen, die Aufstellung der 3. Änderung des Bebauungsplans Nummer 3 „Bartholomäusstraße“ im Ortsteil Leimbach gemäß § 2 Absatz 1 BauGB zu beschließen.

zu b)

Der Gemeindevertretung wird einstimmig empfohlen, den Erlass einer Veränderungssperre für den Geltungsbereich des Bebauungsplans Nummer 3 „Bartholomäusstraße“ im Ortsteil Leimbach gemäß § 14 BauGB zu beschließen.

Das Plangebiet umfasst alle Flurstücke, die im Geltungsbereich des aktuell rechtskräftigen Bebauungsplans Nummer 3 „Bartholomäusstraße“ 2. Änderung Ortsteil Leimbach liegen.

Mit der Aufstellung der 3. Änderung zum Bebauungsplan Nummer 3 „Bartholomäusstraße“ im Ortsteil Leimbach soll im Sinne einer städtebaulich geordneten Entwicklung die Gemeinde die Möglichkeit nutzen können, für den Bau von Kleinhäusern die Grundstücksgrößen anzupassen, da die Interessenten für diese Bauweise in der Regel kleinere Grundstücke (200 m² bis 300 m²) wünschen, die weniger Pflegeaufwand erfordern.

Skizze ohne Maßstab – Im gestrichelten Bereich befindet sich der Geltungsbereich zur 3. Änderung.