Titel Logo
Amtsblatt der Stadt Gladenbach
Ausgabe 46/2025
Amtliche Bekanntmachungen
Zurück zur vorigen Seite
Zurück zur ersten Seite der aktuellen Ausgabe

Bauleitplanung der Stadt Gladenbach

Aufstellung des Bebauungsplans

„Auf der schwarzen Erde“
mit Änderung des Flächennutzungsplans (FNP)

im Stadtteil Weitershausen

1.

Bekanntmachung des Aufstellungsbeschlusses

gem. § 2 Abs. 1 Baugesetzbuch (BauGB)

Die Stadtverordnetenversammlung der Stadt Gladenbach hat in ihrer Sitzung am 05.06.2025 gem. § 2 Abs. 1 BauGB die Aufstellung des Bebauungsplans „Auf der schwarzen Erde“ sowie der dazugehörigen Änderung des Flächennutzungsplans (FNP) beschlossen.

Allgemeines Planungsziel ist die Schaffung des planungsrechtlichen Rahmens für die nachfrageorientierte Siedlungserweiterung als „allgemeines Wohngebiet“ gem. § 4 Baunutzungsverordnung (BauNVO) und dem Neubau eines gemeinsamen Feuerwehrgerätehauses für die Stadtteile Diedenshausen und Weitershausen. Auf Ebene der FNP-Änderung soll die bisherige Darstellung als „Wohnbaufläche“ und „Fläche für die Landwirtschaft“ in die künftige Darstellung als „Wohnbaufläche“ (W) und „Flächen für den Gemeinbedarf“ geändert werden.

Das Plangebiet liegt am nordwestlichen Siedlungsrand von Weitershausen umfasst die nachfolgend aufgeführten Flurstücke mit einer Gesamtfläche von rd. 2,4 ha:

Flur

Flurstücke

3

15/1 und 26/19 (tw.).

Die Planaufstellung erfolgt im 2-stufigen Regelverfahren nach Baugesetzbuch (BauGB).

Die räumliche Lage des Plangebietes sowie die Grenze des Geltungsbereiches gehen darüber aus den nachstehenden Übersichtskarten hervor (gestrichelt umrandeter Bereich).

2.

Bekanntmachung der frühzeitigen Öffentlichkeitsbeteiligung

gem. § 3 Abs. 1 Baugesetzbuch (BauGB)

Die Bürger sollen möglichst frühzeitig über die Ziele und Zwecke der Planung öffentlich unterrichtet werden.

Die Vorentwurfsunterlagen zum Bebauungsplan sowie zur FNP-Änderung werden im Zeitraum vom

Montag den 17.11.2025 bis einschließlich Freitag den 19.12.2025

im Internet unter der Adresse:

https://www.gladenbach.de/bauen-wohnen

sowie über das zentrale Internetportal des Landes unter der Adresse:

https://bauleitplanung.hessen.de/

zur öffentlichen Einsichtnahme bereitgestellt.

Zusätzlich zur Veröffentlichung im Internet liegen die o.g. Unterlagen im o.g. Zeitraum im Rathaus der Stadt Gladenbach, Karl-Waldschmidt-Straße 3, Fachbereich IV, 35075 Gladenbach, während der allgemeinen Dienststunden (montags bis freitags von 8.00 – 12.00 Uhr, dienstags von 14.00 – 16.00 Uhr und donnerstags von 14.00 Uhr – 18.00 Uhr) im Rahmen der frühzeitigen Öffentlichkeitsbeteiligung gem. § 3 Abs. 1 BauGB zu jedermanns Einsicht öffentlich aus. Über den Inhalt wird auf Verlangen Auskunft gegeben.

Stellungnahmen können während der o.g. Dauer der Veröffentlichungsfrist abgegeben werden. Diese sollen elektronisch per E-Mail an die Adresse:

magistrat@gladenbach.de

oder an das, gem. § 4b BauGB mit der Durchführung der Beteiligungsverfahren beauftragte Planungsbüro über die E-Mail-Adresse:

beteiligung@grosshausmann.de

übermittelt werden, können aber auch schriftlich an die o.g. Adresse der Gemeindeverwaltung gerichtet werden. Darüber hinaus besteht die Möglichkeit, während der o.g. Dienststunden mündliche Stellungnahmen zur Niederschrift vorzutragen.

Gem. § 3 Abs. 2, Satz 4 Nr. 2 und § 4a Abs. 5 BauGB wird darauf hingewiesen, dass nicht fristgerecht abgegebene Stellungnahmen bei der Beschlussfassung über den Bauleitplan unberücksichtigt bleiben können, sofern die Stadt deren Inhalt nicht kannte und nicht hätte kennen müssen und deren Inhalt für die Rechtmäßigkeit des Bauleitplans nicht von Bedeutung ist.

Der räumliche Lage des Plangebietes sowie die Vorentwürfe zum Bebauungsplan sowie der FNP-Änderung gehen aus den nachstehenden Abbildungen hervor (jeweils fett umrandeter Bereich).

Räumliche Lage des Plangebiets

(OpenStreetMap Grundlage)

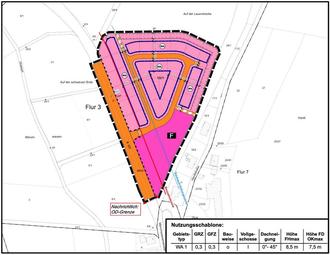
Räumlicher Geltungsbereich und Vorentwurf des Bebauungsplans

(HVBG Daten, Planteil – genordet, ohne Maßstab)

Räumlicher Geltungsbereich und Vorentwurf der FNP-Änderung

(Planteil – genordet, ohne Maßstab)

Gladenbach, den 05.11.2025

Peter Kremer, Bürgermeister