Titel Logo
Bouser Echo
Ausgabe 24/2024
Amtliche Bekanntmachungen
Zurück zur vorigen Seite
Zurück zur ersten Seite der aktuellen Ausgabe

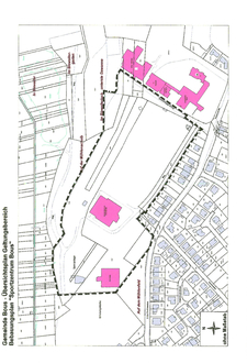
Sportzentrum Bous

Bebauungsplanverfahren einschl. FNP-Teiländerung „Sportzentrum Bous" in der Gemeinde Bous

Der Rat der Gemeinde Bous hat am 06.06.2024 gem. § 1 Abs. 3 und § 2 Abs. 1 des Baugesetzbuches ni der zum Zeitpunkt des Beschlusses gültigen Fassung die Aufstellung des Bebauungsplans „Sportzentrum Bous" einschl. FNP-Teiländerung beschlossen.

Planungserfordernis:

Bebauungsplan sollen die planungsrechtlichen Voraussetzungen für die Bestandssicherung der Sportflächen sowie der Entwicklung von Wohnbauflächen geschaffen werden.

Bislang existiert kein Bebauungsplan für das vorliegende Plangebiet. Der FNP der Gemeinde Bous stellt den Bereich als Gemeinbedarfsfläche dar. Da diese Darstellung den geplanten Festsetzungen des Bebauungsplanes widerspricht, wird der FNP mi Parallelverfahren geändert.

Zu gegebener Zeit wird auch die Öffentlichkeit gem. § 3 Abs. 1 BauGB frühzeitig an der Planung beteiligt. Hierzu wird dann gesondert eine Bekanntmachung mi Amtlichen Mitteilungsblatt der Gemeinde Bous erfolgen.

Der Bürgermeister
Stefan Louis