Titel Logo
Mitteilungsblatt Heringen
Ausgabe 30/2024
Amtliche Bekanntmachungen
Zurück zur vorigen Seite
Zurück zur ersten Seite der aktuellen Ausgabe

Bekanntmachung Bebauungsplan Bengendorf

Amtliche Bekanntmachung der Stadt Heringen

Offenlegung des Entwurfs des vorhabenbezogenen Bebauungsplanes Nr.43 „Photovoltaikfreianlage Bengendorf im Bereich der Stadt Heringen“ gemäß § 3 (2) BauGB mit zeichnerischer Darstellung, textlichen Festsetzungen, Begründung sowie Umweltbericht

Die Stadtverordnetenversammlung der Stadt Heringen hat in ihrer Sitzung am 14.07.2022 die Aufstellung der Begründung zum vorhabenbezogenen Bebauungsplanes Nr.43 „Photovoltaikfreianlage Bengendorf im Bereich der Stadt Heringen“ beschlossen.

Die Beteiligung der Bürger gem. § 3 (1) BauGB, der Behörden und sonstigen Träger öffentlicher Belange gem. § 4 (1) BauGB, der Nachbargemeinden gem. § 2 (2) BauGB und der Vereine nach § 63 BNatSchG zum des vorhabenbezogenen Bebauungsplanes Nr.43 „Photovoltaikfreianlage Bengendorf im Bereich der Stadt Heringen“ erfolgte in dem Zeitraum vom 17.04.2023 bis einschließlich 12.05.2023.

Die Stadtverordnetenversammlung der Stadt Heringen hat in ihrer Sitzung am 11.07.2024 den Entwurf für den vorgelegten vorhabenbezogenen Bebauungsplan Nr.43 „Photovoltaikfreianlage Bengendorf im Bereich der Stadt Heringen“ beschlossen.

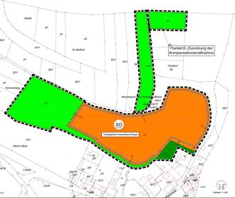
Der Geltungsbereich für den vorhabenbezogenen Bebauungsplan Nr.43 „Photovoltaikfreianlage Bengendorf im Bereich der Stadt Heringen“ umfasst folgende Grundstücke:

Gemarkung Bengendorf

Flur 1

Flurstück 71 (23.692m²)

Flurstück 33 (8.850m²)

Gesamtfläche 32.542m²

Externe Ausgleichsfläche

Gemarkung Bengendorf

Flur 1

Flurstücke 64/1,67 (6.507 m²)

Der Entwurf des vorhabenbezogenen Bebauungsplan Nr.43 „Photovoltaikfreianlage Bengendorf im Bereich der Stadt Heringen“ mit zeichnerischer Darstellung, textlichen Festsetzungen, der Begründung sowie dem Umweltbericht liegt gemäß § 3 (2) BauGB in der Zeit vom

05.08.2024 bis einschließlich 09.09.2024

während der Dienststunden im Rathaus der Stadt Heringen (Werra), Obere Goethestraße 17, 36266 Heringen (Werra) im Zimmer 1.8

Montag

9.00 - 12.00 Uhr

Dienstag

9.00 - 12.00 Uhr

14.00 - 15.30 Uhr

Mittwoch

9.00 - 12.00 Uhr

Donnerstag

9.00 - 12.00 Uhr

14.30 - 17.30 Uhr

Freitag

9.00 - 12.00 Uhr

zu jedermanns Einsicht öffentlich aus.

Die Unterlagen sind im genannten Zeitraum ebenfalls über die Internetseite ( https://www.heringen.de/stadtverwaltung/bauleitplanung/bauleitplanverfahren/bauleitplanungen_bebauungsplaene.html ), sowie auf dem Bauleitplanungsportal für das Land Hessen unter https://bauleitplanung.hessen.de/bauleitplanung/flaechennutzungsplan einseh- und abrufbar.

Folgende umweltrelevante Informationen liegen vor:

  • Artenschutzgutachten Büro für Landschaftsplanung
Folgende umweltrelevante Stellungnahmen liegen vor:
Regierungspräsidium Kassel, Regionalplanung

Die gesetzlichen Anforderungen zu den erforderlichen Planunterlagen wurden für den Entwurf erarbeitet und liegen jetzt erneut zur Stellungnahme vor.

Regierungspräsidium Kassel, Obere Naturschutzbehörde

Das Rahmenkonzept wurde überarbeitet und in der Entwurfsplanung wurden die naturschutzfachlich hochwertigen Bereiche von den hier bisher geplanten Modulflächen ausgespart und auf naturschutzfachlich geringwertigere Grünlandflächen verlagert. Das Biotopwertdefizit wurde zusätzlich auf einer externen Fläche kompensiert.

Regierungspräsidium Kassel, Immissionsschutz

Die Hinweise werden zur Kenntnis genommen.

Der Vorhabensträger weist über ein Blendgutachten nach das keine Wechselwirkungen in der Wohnbebauung entstehen.

Regierungspräsidium Kassel, Immissionsschutz

Die Hinweise zum vorsorgenden Bodenschutz sind in den Entwurf mit aufgenommen worden.

Landkreis Hersfeld-Rotenburg, Untere Naturschutzbehörde

Die Hinweise der UNB haben zu einer Überplanung geführt.

Die im Westen liegenden naturschutzfachlich wertvollen Flächen werden nicht mehr mit Modulen überbaut. Die hier wegfallenden Modulflächen werden an den östlichen Rand des Planungsgebietes im Bereich einer artenarmen Grünlandfläche verlagert. Die im Westen liegenden hochwertigen Grünlandbestände werden in das Ausgleichs- und Pflegekonzept mit einbezogen und durch eine extensive Schafbeweidung künftig gepflegt. In diesem Bereich liegen auch die zu schützenden Ameisenhügel.

Landkreis Hersfeld-Rotenburg, Landwirtschaft und Forsten

Die Landwirtschaft weist daraufhin, dass auch die westliche Fläche welche im Vorentwurf nicht mi Modulen belegt wurde als PV-Freiflächenanlage aus landwirtschaftlicher Sicht geeignet ist. Aus diesem Grund erfolgte auch die Umplanung mit der Verlagerung der Modulflächen von den naturschutzfachlich wertvollen Flächen im Westen auf die Flächen im Osten.

Bürger Bengendorf

Die kritische Stellungnahme der Bürger führte zur Überarbeitung eines Planungskonzeptes auf der Grundlage eigener örtlicher Untersuchungen.

Die Entwurfsplanung enthält neben der Begründung auch einen Umweltbericht, in dem die vorgebrachten Belange abgearbeitet werden.

Die im Rahmen der frühzeitigen Beteiligung angebrachten Anregungen und Bedenken und wurden in der Erarbeitung der Entwurfsplanung berücksichtigt und wo erforderlich durch eigene fachkundliche Erhebungen ergänzt.

Es wird darauf hingewiesen, dass Stellungnahmen während der oben genannten Auslegungsfrist bei der der Stadt Heringen (Werra), Obere Goethestraße 17, 36266 Heringen (Werra)

oder elektronisch (info@heringen.de) abgegeben oder zur Niederschrift vorgebracht werden können.

Es wird darauf hingewiesen, dass nicht fristgerecht abgegebene Stellungnahmen gemäß § 4a Abs.6 BauGB unberücksichtigt bleiben können.

Es ist zu beachten, dass die Stellungnahme nur berücksichtigt werden kann, wenn der Name und die Adresse sowie das Datum und die Bezeichnung des Bebau-ungsplanes angegeben sind. Hierbei werden personenbezogene Daten, insbeson-dere der Name, Anschrift, Telefonnummer, die allein zur Information über das durchgeführte Verfahren dienen, verarbeitet. Mit der Abgabe einer Stellungnahme erklärt sich die abgebende Person mit dieser Verarbeitung einverstanden. Sie willigt ein, dass das die Stadt Heringen oder ein von der Stadt beauftragter Dritter (Planungsbüro Wacker) ihr postalisch oder per E-Mail-Informationen zum durchgeführten Verfahren zu-kommen lässt. Sie ist gemäß § 15 der Datenschutz-Grundverordnung (DSGVO) jederzeit berechtigt, der Stadt Heringen oder den von dem von der Stadt eingeschalteten Dritten Auskunftserteilung zu den zu ihrer Person gespeicherten Daten zu ersuchen. Gemäß § 17 DSGVO kann sie jederzeit gegenüber der Stadt Heringen oder dem von der Stadt eingeschalteten Dritten die Berichtigung, Löschung und Sperrung einzelner personenbezogener Daten verlangen. Dies wir hiermit öffentlich bekannt gemacht.

Ein Antrag nach § 47 der Verwaltungsgerichtsordnung ist unzulässig, soweit mit ihm Einwendungen geltend gemacht werden, die vom Antragsteller im Rahmen der Auslegung nicht oder verspätet geltend gemacht wurden, aber hätten geltend ge-macht werden können.

Diese öffentliche Bekanntmachung ergeht aufgrund § 7 der Hauptsatzung der Stadt Heringen in Verbindung mit § 3 (2) BauGB.

Heringen, 18.07.2024

Daniel Iliev
Bürgermeister