Titel Logo
Künzell - Aus dem Leben der Gemeinde
Ausgabe 29/2025
Öffentliche Bekanntmachungen
Zurück zur vorigen Seite
Zurück zur ersten Seite der aktuellen Ausgabe

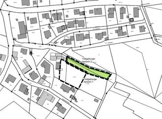
Ergänzungssatzung gem. § 34 Abs. 4 Satz 1 Nr. 3 BauGB "Heckenhofstraße“, Gemeinde Künzell im Ortsteil Wissels  

INKRAFTTRETEN

Die Gemeindevertretung der Gemeinde Künzell hat am 01.07.2025 die Ergänzungssatzung gem. § 34 Abs. 4 Satz 1 Nr. 3 BauGB "Heckenhofstraße“, in der Gemarkung Wissels, Flur 2, bestehend aus der Plankarte mit Textteil als Satzung gemäß § 34 (6) BauGB beschlossen. Die Begründung zur Ergänzungssatzung „Heckenhofstraße“ wurde gebilligt. Dies wird hiermit gemäß § 10 Abs. 3 BauGB bekannt gemacht.

Planungsziel der Ergänzungssatzung „Heckenhofstraße“ ist die Schaffung von Baurecht für maximal zwei Wohneinheiten. Das Planungsgebiet erstreckt sich auf einen Teil des in der Plankarte dargestellten Flurstücks Nr. 11/13, Flur 2.

Mit dieser Bekanntmachung tritt die Ergänzungssatzung „Heckenhofstraße“ in der Gemarkung Wissels, Flur 2, in Kraft.

Plankarte ohne Maßstab

Die Ergänzungssatzung „Heckenhofstraße“ kann nebst Begründung in der Gemeindeverwaltung Künzell, Bauamt, Unterer Ortesweg 23, 36093 Künzell, während der allgemeinen Dienststunden von Jedermann von diesem Tag ab eingesehen werden. Über den Inhalt wird auf Verlangen jedermann Auskunft erteilt. Einsichts- und Auskunftsmöglichkeiten sind zu folgenden Zeiten gegeben:

montags bis freitags

von 8.00 bis 12.00 Uhr

mittwochs

von 14.00 bis 18.00 Uhr

Sofern nicht auf die genannten Tage ein gesetzlicher oder kirchlicher Feiertag fällt.

Ferner ist der Bebauungsplan auf der Homepage der Gemeinde Künzell unter www.kuenzell.de unter der Rubrik Bauleitplanungen mit Rechtskraft einsehbar.

Gemäß § 215 BauGB wird darauf hingewiesen, dass die Verletzung der in § 214 Abs. 1 Satz 1 Nr. 1 bis 3 BauGB bezeichneten Verfahrens- und Formvorschriften, eine unter Berücksichtigung des § 214 Abs. 2 BauGB beachtliche Verletzung der Vorschriften über das Verhältnis der Satzung und nach § 214 Abs. 3 Satz 2 BauGB beachtliche Mängel des Abwägungsvorgangs nur beachtlich sind, wenn sie innerhalb eines Jahres seit dieser Bekanntmachung schriftlich gegenüber der Gemeinde Künzell geltend gemacht worden sind. Der Sachverhalt, der die Verletzung begründet, ist darzulegen.

Auf die Vorschriften des § 44 Abs. 3 Satz 1 und 2 sowie Abs. 4 BauGB über die fristgemäße Geltendmachung etwaiger Entschädigungsansprüche für Eingriffe in eine bisher zulässige Nutzung durch die Satzung und über das Erlöschen von Entschädigungsansprüchen wird hingewiesen.

Künzell, 10.07.2025

Der Gemeindevorstand
der Gemeinde Künzell
Timo Zentgraf
Bürgermeister