Titel Logo
Ober-Mörler Nachrichten
Ausgabe 7/2024
Amtliche Bekanntmachungen
Zurück zur vorigen Seite
Zurück zur ersten Seite der aktuellen Ausgabe

Bauleitplanung der Gemeinde Ober-Mörlen, Ortsteil Ober-Mörlen

Bebauungsplan Nr. 14a „Schießhütte II“, 3. Bauabschnitt, Ober-Mörlen

Bekanntmachung des Aufstellungsbeschlusses gemäß § 2 Abs. 1 Baugesetzbuch (BauGB)

Beteiligung der Öffentlichkeit gemäß § 3 Abs. 1 BauGB

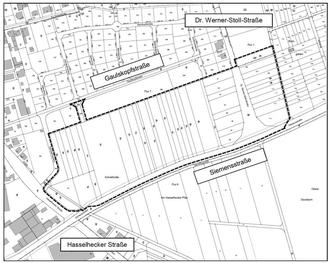
Die Gemeindevertretung der Gemeinde Ober-Mörlen hat in ihrer Sitzung am 28.03.2023 die Aufstellung des Bebauungsplanes Nr. 14a „Schießhütte II“, 3. Bauabschnitt, Ober-Mörlen beschlossen. Die Abgrenzung des räumlichen Geltungsbereiches ist der nachfolgenden Übersichtskarte zu entnehmen.

Allgemeines Planziel des Bebauungsplanes ist die Ausweisung eines Allgemeinen Wohngebietes im Sinne § 4 BauNVO, um im Anschluss an den südlichen Siedlungsrand bzw. den räumlichen Geltungsbereich des 2. Bauabschnitts weitere Wohnnutzungen bauplanungsrechtlich vorzubereiten.

Die Aufstellung des Bebauungsplanes erfolgt im zweistufigen Regelverfahren mit Umweltprüfung.

Der Vorentwurf des Bebauungsplanes einschließlich zugehöriger Begründung liegt in der Zeit von

Montag, dem 19.02.2024 bis einschl. Freitag, dem 22.03.2024

im Rathaus der Gemeinde Ober-Mörlen, Bauverwaltung, Frankfurter Straße 31, 61239 Ober-Mörlen, während der üblichen Dienstzeiten sowie nach Vereinbarung zu jedermanns Einsicht öffentlich aus.

Während der Auslegungsfrist können von jedermann Anregungen zu den Planungen schriftlich oder zur Niederschrift vorgebracht werden.

Gemäß § 4a Abs. 4 BauGB werden die Planunterlagen zusätzlich in das Internet eingestellt und können auf der Homepage der Gemeinde Ober-Mörlen (https://www.ober-moerlen.de) eingesehen und heruntergeladen werden.

Eine Verlinkung der Planunterlagen im Zentralen Internetportal des Landes Hessen (https://bauleitplanung.hessen.de) ist ebenfalls gegeben.

Gemäß § 4b BauGB wurde ein Planungsbüro mit der Durchführung des Verfahrens beauftragt.

61239 Ober-Mörlen, den 16.02.2024

Der Gemeindevorstand
Bauleitplanung der Gemeinde Ober-Mörlen, Ortsteil Ober-Mörlen

Bebauungsplan Nr.14a „Schießhütte II“, 3. Bauabschnitt, Ober-Mörlen;

hier: räumlicher Geltungsbereich Plangebiet

genordet, ohne Maßstab