Titel Logo
Amtsblatt Blickpunkt Petersberg
Ausgabe 21/2023
Öffentliche Bekanntmachungen
Zurück zur vorigen Seite
Zurück zur ersten Seite der aktuellen Ausgabe
-

Neufassung der Gaubensatzung

Auf Grund der §§ 5 und 51 der Hessischen Gemeindeordnung (HGO) in der Fassung der Bekanntmachung vom 07.03.2005 (GVBl. I S. 142), zuletzt geändert durch Gesetz vom 11.12.2020 (GVBl. S. 915) sowie § 91 Absatz 1 der Hessischen Bauordnung (HBO) vom 28.05.2018 (GVBl. S. 198), zuletzt geändert durch Artikel 2 des Gesetzes vom 22.11.2022 (GVBl. S. 571) hat die Gemeindevertretung der Gemeinde Petersberg in ihrer Sitzung am 11.05.2023 die folgende

G A U B E N S A T Z U N G

beschlossen:

§ 1

Geltungsbereich

Die Satzung gilt für das gesamte Gebiet der Gemeinde Petersberg, also auch für die Ortsteile Almendorf, Böckels, Götzenhof, Horwieden, Marbach, Margretenhaun, Melzdorf, Rex, Steinau, Steinhaus, Stöckels, Untergötzenhof und Werthesberg.

§ 2

Verhältnis zu Bebauungsplänen

(1)

Sind in einem rechtsverbindlichen Bebauungsplan Festsetzungen über die Zulässigkeit und Gestaltung von Dachaufbauten (Gauben) getroffen, bleiben diese von dieser Satzung unberührt und werden insoweit lediglich ergänzt.

(2)

Die Bestimmungen des Denkmalschutzes bleiben ebenfalls unberührt.

§ 3

Drempel

(1)

Bei Gebäuden mit geneigten Dächern ist ein Drempel (Kniestock) bis zu einer Höhe von 0,80 m, gemessen von der Oberkante des Rohfußbodens bis zum Schnittpunkt Unterkante Sparren mit der Außenwand, zulässig.

Abbildung SEQ Abbildung ARABIC 1:

Zeichnerische Darstellung zu § 3 Absatz 1

2)

Bei Gebäuden mit geneigten Dächern ohne Dachüberstand ist ein Drempel (Kniestock) bis zu einer Höhe von 1,00 m, gemessen von der Oberkante des Rohfußbodens bis zum sichtbaren oberen Abschluss der Außenwand, zulässig.

Abbildung SEQ Abbildung ARABIC 2:

Zeichnerische Darstellung zu § 3 Absatz 2

(3)

Drempel bis 1,20 m Höhe, gemessen von der Oberkante des Rohfußbodens bis zum Schnittpunkt Unterkante Sparren mit der

Außenwand, sind zulässig, wenn die Höhe der Außenwand mittels Dachkasten, Holzverschalung oder ähnlichen gestalterischen Elementen kaschiert wird. Die sichtbare Höhe bis Unterkante Dachkasten bzw. Unterkante Holzverschalung oder dgl. darf weiterhin maximal 0,80 m betragen.

Abbildung SEQ Abbildung ARABIC 3:

Zeichnerische Darstellung zu § 3 Absatz 3

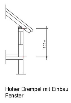
(4)

Drempel von 2,20 m Höhe oder höher, gemessen von der Oberkante des Rohfußbodens bis zum Schnittpunkt Unterkante Sparren mit der Außenwand, sind zulässig, wenn die Wand durch den Einbau von Fenstern, die den Fenstern des darunterliegenden Geschosses in Anzahl und Breite entsprechen, unterbrochen wird und optisch als Vollgeschoss erscheint.

Abbildung SEQ Abbildung ARABIC 4:

Zeichnerische Darstellung zu § 3 Absatz 4

§ 4

Dachaufbauten (Gauben)

(1)

Zulässig sind Dachaufbauten als Schlepp-, Satteldach-, Walmdach-, Flachdach-, Steh-, Rund-, Fledermaus-, Trapez-, Dreiecks- und Segmentbogengauben.

Abbildung SEQ Abbildung ARABIC 5:

Zeichnerische Darstellung zu § 4 Absatz 1

(2)

Die Gaubenbreite (Summe aller Einzelgauben) darf an der Traufseite des Gebäudes zwei Drittel der Gebäudelänge nicht überschreiten, wobei der seitliche Abstand, jeweils ge-rechnet vom Ortgang oder Grat (Walmdach), mindestens 1,50 m betragen muss. Bei Dachüberständen von mehr als 0,50 m am Ortgang bleibt der Überstand, der über die 0,50 m hinausgeht, unberührt.

Der Abstand mehrerer Dachaufbauten muss untereinander mindestens 1,00 m betragen.

Gauben sind gegenüber der aufgehenden Fassade so zurückzusetzen, dass die Geschlossenheit des Daches noch zu erkennen ist. Der Abstand zwischen sichtbarer Unterkante Dachaufbau und traufseitigem Dachrand darf 0,75 m in Dachneigungsrichtung nicht unterschreiten.

(3)

Der Abstand zwischen Scheitelpunkt der Gaube und dem First darf 0,75 m in Dachneigungsrichtung nicht unterschreiten.

§ 5

Zwerchhäuser und eingeschobene Giebel

(1)

Zwerchhäuser sind grundsätzlich zulässig. Sie dürfen nicht breiter als 50 % der zugehörigen und maßgeblichen Wandbreite sein. Ihre Dachgestaltung ist dem Hauptdach anzupassen oder als Flachdach auszuführen.

Abbildung SEQ Abbildung ARABIC 6:

Zeichnerische Darstellung zu § 5 Absatz 1

(2)

Eingeschobene Giebel sind grundsätzlich zulässig. Ihre Dachgestaltung ist dem Hauptdach anzupassen oder als Flachdach auszuführen.

Abbildung SEQ Abbildung ARABIC 7:

Zeichnerische Darstellung zu § 5 Absatz 2

(3)

Der Abstand zwischen Scheitelpunkt des Zwerchhauses / eingeschobenen Giebels und First darf 0,75 m in Dachneigungsrichtung nicht unterschreiten.

§ 6

Ausnahmen und Befreiungen

Abweichungen von dieser Satzung können zugelassen, soweit eine abweichende Gestaltung die Ziele dieser Satzung besser verwirklicht oder soweit die Einhaltung der Vorschriften mit besonderen Schwierigkeiten verbunden ist und die Abweichungen die Ziele dieser Satzung nicht wesentlich beeinträchtigen.

Die Durchführung des Abweichungsverfahrens erfolgt gemäß § 73 HBO.

§ 7

Inkrafttreten

Diese Satzung tritt am Tage nach Vollendung ihrer öffentlichen Bekanntmachung in Kraft. Gleichzeitig tritt die Gaubensatzung vom 11.09.1989 außer Kraft.

Die Satzung (Gaubensatzung) der Gemeinde Petersberg wird hiermit ausgefertigt.

Petersberg, 24.05.2023

Der Gemeindevorstand der Gemeinde Petersberg
( Siegel )
gez. Carsten Froß
Bürgermeister