Titel Logo
Neues aus Ensdorf
Ausgabe 49/2022
Amtliche Mitteilungen
Zurück zur vorigen Seite
Zurück zur ersten Seite der aktuellen Ausgabe

Verkauf eines Baugrundstücks

Bewerbungsverfahren vom 02.12.2022 bis 13.01.2023

1. Vorbemerkung:

In der Gemeinde Ensdorf besteht Bedarf an Wohnraum, was sich in wiederkehrenden Anfragen nach erschlossenen Baugrundstücken wiederspiegelt. Vor diesem Hintergrund beabsichtigt die Gemeinde, eine gemeindeeigene Fläche in der Prälat-Anheier-Straße zu veräußern.

Der Grundstückskäufer muss in der Lage sein, das Grundstück von der Gemeinde zu dem genannten Kaufpreis zu erwerben und dies nach den besonderen Gegebenheiten des Grundstücks zu bauen.

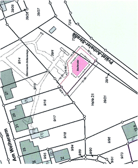
2. Lagebeschreibung:

Das zu veräußernde Grundstück liegt in der Prälat-Anheier-Straße, zwischen dem Grundstück Prälat-Anheier-Straße 21 und dem Stolleneingang sowie gegenüber der Parkanlage in einer Spielstraße.

3. Grundstücksbeschreibung:

Veräußert wird ein ca. 365 m² großes, unbebautes Baugrundstück in der Prälat-Anheier-Straße mit Zentrumsnähe in Ensdorf. Das Grundstück liegt am Hang unterhalb der Grundstücke „Am Weiherarm“ und ist stark mit Gehölz und größeren Bäumen bewachsen. Der Höhenunterschied zwischen hinterer und vorderer Grundstücksgrenze beträgt dabei ca. 12 m.

Vor der Durchführung von Bauarbeiten müssen vorbereitend umfangreiche Erd-, Rodungs- und Hangsicherungsarbeiten vorgenommen werden. Westlich grenzt ein an den Hang angelegtes Einfamilienhaus an. Auf dem östlich angrenzenden gemeindeeigenen Grundstück liegt eine alte Wehrmachts-Stollenanlage sowie deren beiden Eingänge. Diese Stollenanlage grenzt mit zwei Seitenarmen unmittelbar an die Grundstücksgrenze und ist in der Planung zwingend zu beachten. Es ist sicherzustellen, dass weder von dem Stollen eine Gefahr für das geplante Wohnhaus ausgeht noch umgekehrt. Aus diesem Grund ist die Erstellung eines Bodengutachtens auf Kosten des Käufers im Rahmen der Planung eines Neubaus zwingend erforderlich. Dies wird im Kaufvertrag zur Auflage gemacht. Ebenso wird in den Kaufvertrag bzgl. der Stollenanlage ein Haftungsverzicht (Haftungsausschluss) des Käufers gegenüber der Gemeinde aufgenommen.

Ver- und Entsorgungsleitungen liegen in der Prälat-Anheier-Straße. Der Käufer hat die für das Grundstück erforderlichen Ver- und Entsorgungsanschlüsse auf eigene Kosten herzustellen. Es besteht eine kurzfristige Verfügbarkeit der Flächen nach Vermessung und Ausparzellierung durch den Verkäufer.

4. Bau- und planungsrechtliche Situation:

Das Grundstück liegt nicht im Geltungsbereichs eines rechtskräftigen Bebauungsplans. Die Zulässigkeit eines Vorhabens wird nach § 34 BauGB „Zulässigkeit von Vorhaben innerhalb der im Zusammenhang bebauten Ortslage“ bewertet. Durch die vordere Grundstücksbreite von rd. 14,50 m und einem allseitig erforderlichen Grenzabstand von mindestens 3 m, gemäß § 7 LBO, ist eine Gebäudebreite von bis zu ca. 8,50m möglich. Das mögliche Baufenster ist im beigefügten Lageplan eingezeichnet.

Es ist zu beachten, dass eine konkrete Aussage zur Zulässigkeit einer Planung nur in Abstimmung mit der zuständigen Unteren Bauaufsicht erfolgen kann.

Des Weiteren sei darauf hingewiesen, dass es sich bei den im Lageplan angegebenen Längen nur um ca.- Werte handelt. Die genauen Angaben liegen erst nach der Vermessung des Grundstückes vor.

5. Preis:

Das Baugrundstück wird zum aktuellen Bodenrichtwert von 120 €/m² veräußert, zuzüglich der anfallenden Kosten für die Vermessung des Grundstücks, der Notarkosten sowie ggfls. weiterer der Gemeinde entstehenden Kosten (z. B. Beratungskosten, insgesamt ca. 5.000 €).

6. Anforderungsprofil:

Die Bewerberauswahl erfolgt durch den Gemeinderat anhand des beigefügten Fragebogens.

Es kann sich bewerben, wer:

⇒ das 18. Lebensjahr vollendet hat,

⇒ das Grundstück mit einem Wohnhaus zur Eigennutzung innerhalb von drei Jahren nach Beurkundung bebaut und

⇒ nicht über ein selbst nutzbares, bedarfsgerechtes Wohnhaus oder Wohnbaugrundstück in der Gemeinde Ensdorf verfügt (schriftliche Erklärung).

7. Bewerbung zur Teilnahme am Verfahren

a) Bewerbungen zur Teilnahme an diesem Verfahren sind schriftlich unter der Verwendung des Fragebogens zu richten an:

Gemeinde Ensdorf

Bauverwaltung

Provinzialstraße 101a

66806 Ensdorf

oder per Mail an kwoll@gemeinde-ensdorf.de

b) Weitere Auskünfte erteilen Frau Woll, Telefon: 06831/504-155, E-Mail: kwoll@gemeinde-ensdorf.de oder Frau Baumann, Telefon: 06831/504-153, E-Mail: ibaumann@gemeinde-endsdorf.de