Titel Logo
Schöffengrunder Nachrichten
Ausgabe 37/2025
Amtliche Bekanntmachungen
Zurück zur vorigen Seite
Zurück zur ersten Seite der aktuellen Ausgabe
-

Bauleitplanung der Gemeinde Schöffengrund 1. Änderung des Bebauungsplanes Nr. 2 „Gewerbegebiet Laufdorf“, Gemarkung Laufdorf

hier:

  • Aufstellungsbeschluss gemäß § 2 (1) Baugesetzbuch (BauGB)
  • Allgemeine Ziele und Zwecke
  • Beteiligung der Öffentlichkeit gemäß § 13a Abs. 2 Nr. 1 BauGB i.V.m. § 13 Abs. 2 Nr. 2 BauGB und § 3 Abs. 2 BauGB
Aufstellungsbeschluss gemäß § 2 (1) BauGB

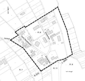
Die Gemeindevertretung hat die Aufstellung des o.g. Planes beschlossen. Die Grenzen des Geltungsbereiches sind aus nachfolgendem Plan ersichtlich.

Der 13,35 ha große Geltungsbereich entspricht dem Geltungsbereich des seit 1968 rechtskräftigen Bebauungsplanes. Die Flächen werden in der Gemarkung Laufdorf in den Fluren 7 und 8 wie folgt abgegrenzt:

Im Norden:

landwirtschaftliche Flächen bzw. Wald

Im Osten:

Wegeparzelle, dahinter Wald bzw. landwirtschaftliche Flächen

Im Süden:

Kreisstraße 373 und Landstraße 3053

Im Westen:

Gewässer „Hainbach“, dahinter landwirtschaftliche Flächen

Allgemeine Ziele und Zwecke

Die Änderung des seit 1968 rechtskräftigen Bebauungsplanes ist erforderlich, da u.a. die verkehrliche Erschließung, die im rechtskräftigen Bebauungsplan festgesetzt ist, von der realisierten Erschließung erheblich abweicht.

Auch sollen die im rechtskräftigen Bebauungsplan festgesetzten verkehrlichen Wendeanlagen herausgenommen werden.

Damit die Grundstücke trotz Herausnahme der Wendeanlagen ordnungsgemäß erschlossen sind, wird entlang des nordwestlichen Geltungsbereichsrandes eine Erschließungsstraße festgesetzt, die die Straßen „Vorm Reutstrauch“ und „Eichenhain“ miteinander verbindet.

Für ein in 2. Reihe am nordöstlichen Geltungsbereichsrand entstandenes Grundstück wird eine Stichstraße in den Bebauungsplan aufgenommen.

Die Art der baulichen Nutzung (Gewerbegebiet), die Zahl der maximal zulässigen Vollgeschosse (maximal 2) und die Geschossflächenzahl (1,2) werden unverändert übernommen.

Anstelle der offenen Bauweise wird eine abweichende Bauweise festgesetzt, da die Gebäude teilweise ohne Grenzabstand errichtet wurden.

Der rechtskräftige Bebauungsplan wurde nach der Baunutzungsverordnung von 1968 aufge-stellt. Da erst mit der Novellierung der Baunutzungsverordnung in 1990 in § 19 Abs. 4 BauN-VO aufgenommen wurde, dass die zulässige Grundflächenzahl für Garagen, Stellplätze, Ne-benanlagen usw. um bis zu 50 %, jedoch nur bis zur sogenannten Kappungsgrenze von 0,8, überschritten werden darf, könnten die gewerblichen Bauflächen gemäß dem rechtskräftigen Bebauungsplan ohne Berücksichtigung der festgesetzten Pflanzflächen zu 100 % befestigt werden.

Durch die Anwendung der aktuellen Baunutzungsverordnung muss mindestens 20 % des Grundstückes unbefestigt bleiben.

Da im Allgemeinen auf jedem Grundstück Zufahrten, Stellplätze, Nebenanlagen usw. erforder-lich sind, wird zusätzlich im Rahmen der Änderung des Bebauungsplanes die festgesetzte Grundflächenzahl von 0,8 auf 0,6 reduziert. Die Überschreitung bis auf maximal 0,8 ist zuläs-sig, siehe oben.

Die im rechtskräftigen Bebauungsplan entlang der Kreisstraße festgesetzten Pflanzflächen sind nicht vorhanden. Da die vorhandene Bebauung die Realisierung dieser Pflanzflächen nur eingeschränkt zulässt, wird diese Bepflanzung nicht mehr in die Änderung aufgenommen.

Die am westlichen Geltungsbereichsrand vorhandene Bepflanzung wird in die 1. Änderung übernommen, da sie eine gute Einbindung des Gebietes sicherstellt.

Die Waldflächen werden gemäß heutigem Bestand zeichnerisch festgesetzt und daher angepasst.

Der Geltungsbereich liegt im Gebiet, unter denen der Bergbau umging. Bei den Baumaßnahmen im gesamten Geltungsbereich ist daher auf Spuren ehemaligen Bergbaues zu achten; gegebenen Falles sind entsprechende bauliche Sicherungsmaßnahmen zu treffen.

Im Bebauungsplan sind die Flächen gekennzeichnet

  • unter denen der Bergbau umging, und
  • die im angenommenen Einwirkungsbereich bergbaulicher Tätigkeiten liegen (ermittelt unter Berücksichtigung der angenommenen Tiefe des Bergbaues mit einem Winkel von 45°).

Die Grenzen wurden nach Unterlagen alten Bergbaues durch das Regierungspräsidium, Dezernat 41.4, ermittelt und weichen von den im rechtskräftigen Bebauungsplan zeichnerisch dargestellten Grenzen erheblich ab.Die Grenzen werden vom Regierungspräsidium mit „ungefähr“ angegeben. Es kann nicht ausgeschlossen werden, dass weiterer Bergbau stattgefunden hat. Im gesamten Geltungsbereich ist deshalb, insbesondere bei Erdarbeiten, auf mögliche Veränderungen des Untergrundes zu achten, die auf bergmännische Aufschlüsse hinweisen.

Bergbaurisiken bestehen für den gesamten Geltungsbereich.

Der Geltungsbereich liegt in einem Bombenabwurfgebiet. Der Kampfmittelräumdienst ist daher vor Bauarbeiten einzusetzen.

Im Bebauungsplan ist nachrichtlich eine „äußere Schutzbereichsgrenze für eine Bundeswehranlage“ eingetragen. Diese Schutzbereichsgrenze ist nicht mehr relevant und wird daher nicht übernommen.

Im Geltungsbereich gibt es 6 Altstandorte. Die textlichen Festsetzungen enthalten nachrichtlich Hinweise, welche Maßnahmen jeweils vorzusehen sind.

Der rechtskräftige Bebauungsplan enthält keine textlichen Festsetzungen. Im Rahmen der Änderung werden textliche Festsetzungen aufgenommen.

Der Bebauungsplan schafft die planungsrechtlichen Voraussetzungen für die Änderungen.

Der Bebauungsplan weist im Wesentlichen ein Gewerbegebiet aus.

Beteiligung der Öffentlichkeit gemäß § 13a Abs. 2 Nr. 1 BauGB i.V.m. § 13 Abs. 2 Nr. 2 BauGB und § 3 Abs. 2 BauGB

Die Gemeindevertretung hat die Beteiligung der Öffentlichkeit beschlossen.

Der Bebauungsplan wird im beschleunigten Verfahren gemäß § 13a BauGB ohne Durchführung einer Umweltprüfung nach § 2 Abs. 4 BauGB aufgestellt.

§ 13a Abs. 1 BauGB ist jedoch nur dann uneingeschränkt anwendbar, wenn die Grundflächen der baulichen Nutzung (Gewerbegebiet) kleiner als 20.000 m² sind.

Der Geltungsbereich umfasst Gewerbegrundstücke (9,84 ha). Unter Berücksichtigung der maximal zulässigen Grundflächenzahl beträgt die maximal zulässige Grundfläche 98.400 m² x 0,6 = 59.040 m².

Wegen der Überschreitung ist gemäß § 13a Abs. 1 Nr. 2 BauGB überschlägig zu überprüfen, ob durch die Änderung des Bebauungsplanes erhebliche Umweltauswirkungen eintreten können.

Hierbei sind gemäß § 13a Abs. 1 BauGB die Kriterien der Anlage 2 des BauGB heranzuziehen. Diese Überprüfung wurde vorgenommen und die Behörden und sonstigen Träger öffentlicher Belange, deren Aufgabenbereiche durch die Planung berührt werden können, wurden gem. § 13a Abs. 1 Satz 2 Nr. 2 BauGB an der Vorprüfung des Einzelfalls beteiligt.

Gemäß Überprüfungen sind keine erheblichen Umweltauswirkungen zu erwarten. Das beschleunigte Verfahren nach § 13a BauGB kann daher angewandt werden.

Die Unterlagen der Bauleitplanung werden in der Zeit

vom 15.09.2025 bis einschließlich 31.10.2025

(Dauer der Veröffentlichungsfrist)

auf der Internetseite der Gemeinde Schöffengrund unter https://www.schoeffengrund.de/rathaus-politik/bauen/bebauungsplaene/ veröffentlicht und stehen unter dem Internetportal des Landes Hessen unter https://bauleitplanung.hessen.de zur Verfügung.

Sie können eingesehen bzw. im PDF-Format heruntergeladen werden.

Dies gilt auch für diese Bekanntmachung.

Zusätzlich zur Veröffentlichung im Internet werden die Unterlagen während der Öffnungszeiten in der Gemeindeverwaltung, Neukirchener Straße 5, 35641 Schöffengrund, Zimmer 8, im oben genannten Zeitraum öffentlich ausgelegt.

Die Einsicht in die Unterlagen kann auch außerhalb der Besuchszeiten nach vorheriger Terminvereinbarung erfolgen.

Folgende Unterlagen werden veröffentlicht: Planzeichnung des Bebauungsplanes, textliche Festsetzungen und Begründung mit der Anlage „Stellungnahme des Kampfmittelräumdienstes“.

Die Öffentlichkeit wird während der Auslegungsfrist über die allgemeinen Ziele und Zwecke sowie die wesentlichen Auswirkungen der Planung unterrichtet.

Die Öffentlichkeit kann Stellungnahmen während der Dauer der Veröffentlichungsfrist abgeben.

Die Stellungnahmen sollten elektronisch an folgende Mail-Adresse abgegeben werden: stellungnahmen@buero-zillinger.de.

Bei Bedarf können sie aber auch auf anderem Wege abgegeben werden, zum Beispiel schriftlich, adressiert an die Gemeindeverwaltung Schöffengrund, oder zur Niederschrift.

Stellungnahmen, die nicht fristgerecht abgegeben werden, können bei der Beschlussfassung über den Bauleitplan unberücksichtigt bleiben.

Die Stellungnahmen werden ausgewertet und in nicht-öffentlichen und öffentlichen Sitzungen beraten. Die Verarbeitung der personenbezogenen Daten erfolgt nur im Rahmen des Planungsprozesses und im Übrigen unter Beachtung der Datenschutzverordnung.

Es wird darauf hingewiesen, dass ein Planungsbüro mit der Durchführung des Verfahrens beauftragt wurde.

Der Gemeindevorstand der Gemeinde Schöffengrund
Michael Peller, Bürgermeister