Titel Logo
Schöffengrunder Nachrichten
Ausgabe 51/2025
Amtliche Bekanntmachungen
Zurück zur vorigen Seite
Zurück zur ersten Seite der aktuellen Ausgabe
-

Bauleitplanung der Gemeinde Schöffengrund 1. Änderung des Bebauungsplanes Nr. 2 „Gewerbegebiet Laufdorf“, Gemarkung Laufdorf

hier:

a)

Bekanntmachung gemäß § 10 (3) BauGB (Inkrafttreten des Bebauungsplanes)

b)

Integrierte Orts- und Gestaltungssatzung gemäß § 91 (3) HBO und integrierte Entwässerungsatzung gemäß § 37 (4) HWG, jeweils i.V. mit § 9 (4) BauGB (Inkrafttreten der Satzungen)

a)

Bekanntmachung gem. § 10 (3) BauGB

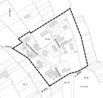
Die Gemeindevertretung der Gemeinde Schöffengrund hat den o. g. Bebauungsplan für den in nachfolgender Abbildung dargestellten Geltungsbereich am 04.12.2025 als Satzung beschlossen, s. folgende Abbildung.

Abb.: Geltungsbereich des Bebauungsplanes

Der Bebauungsplan tritt mit dieser Bekanntmachung in Kraft.

Gemäß § 215 Abs. 2 BauGB wird darauf hingewiesen, dass

  • eine nach § 214 Abs. 1 Satz 1 Nr. 1 bis 3 BauGB beachtliche Verletzung der dort bezeichneten Verfahrens- und Formvorschriften,
  • eine unter Berücksichtigung des § 214 Abs. 2 BauGB beachtliche Verletzung der Vorschriften über das Verhältnis des Bebauungsplanes und des Flächennutzungsplanes und
  • nach § 214 Abs. 3 Satz 2 BauGB beachtliche Mängel des Abwägungsvorgangs

gemäß § 215 Abs. 1 BauGB unbeachtlich werden, wenn sie nicht innerhalb eines Jahres seit dieser Bekanntmachung schriftlich gegenüber der Gemeinde Schöffengrund, Neukirchener Straße 5, 35641 Schöffengrund, unter Darlegung des die Verletzung begründenden Sachverhalts geltend gemacht worden sind.

Auf die Vorschriften des § 44 Abs. 3 Satz 1 und 2 sowie des Absatzes 4 BauGB für die fristgerechte Geltendmachung etwaiger Entschädigungsansprüche bei Eingriffen des oben genannten Bebauungsplanes in eine bisher zulässige Nutzung und über das Erlöschen solcher Ansprüche wird hingewiesen.

Der Bebauungsplan und die Begründung werden gemäß § 10 (3) BauGB während der Dienststunden im Rathaus, Neukirchener Straße 5, 35641 Schöffengrund, Zimmer 8, zu jedermanns Einsicht bereitgehalten. Die Einsichtnahme ist dauerhaft möglich.

Jedermann kann diese Planung einsehen und über seinen Inhalt Auskunft verlangen.

Diese Unterlagen können auch ab Januar 2026 auf der Internetseite der Gemeinde Schöffengrund eingesehen und heruntergeladen werden.

b)

Integrierte Orts- und Gestaltungssatzung gemäß § 91 (3) HBO und integrierte Entwässerungsatzung gemäß § 37 (4) HWG

Die Festsetzungen nach § 91 Abs. 3 HBO in Verbindung mit § 9 Abs. 4 BauGB wurden als Gestaltungssatzung beschlossen.

Die Festsetzungen nach § 37 Abs. 4 HWG in Verbindung mit § 9 Abs. 4 BauGB wurden als Entwässerungssatzung beschlossen.

Diese beiden Satzungen werden mit dieser Bekanntmachung rechtskräftig.

Schöffengrund

gez. Michael Peller
(Bürgermeister)