Titel Logo
Freisener Nachrichten
Ausgabe 19/2024
Kommunales näher gebracht
Zurück zur vorigen Seite
Zurück zur ersten Seite der aktuellen Ausgabe

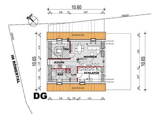
Status Quo Sanierung des DGHs Schwarzerden

Das DGH Schwarzerden wird energetisch und brandschutztechnisch saniert. Das Treppenhaus wird deshalb entkernt, die alten Holztreppen und Decken werden abgebrochen und durch neue Treppen und Decken in Stahlbeton ersetzt. Ebenso werden die Abschlüsse zu den einzelnen Nutzungseinheiten mit Brandschutztüren ertüchtigt.

Im Zuge dieser Arbeiten wird die Haustechnik im Treppenhaus neu geordnet und verlegt. Das Kellergeschoss wird entkernt, vollständig saniert und bietet damit künftig den Dorfvereinen saubere Abstell- und Lagermöglichkeiten mit abgetrennten Nutzungsbereichen. Im Erdgeschoss und ersten Obergeschoss bleiben die vorhandenen Nutzungseinheiten mit WC Anlagen erhalten. Das Dachgeschoss wird in diesem Zuge zu einer Wohneinheit ausgebaut.

In allen Geschossen wird die Haustechnik nach heutigem Standard ertüchtigt bzw. erneuert. Hierbei werden die Medien so vorbereitet, dass der Anschluss erneuerbarer Energien mit einer Wärmepumpe und PV- bzw. Solar-Anlage zukünftig möglich ist. Neben der Innensanierung wird auch die Fassade saniert; für zweite Rettungswege werden Fenster als Fluchtwege (zum Anleitern durch die Feuerwehr) vergrößert.

Die Förderung der Baumaßnahme wurde durch den Zuschussgeber - das saarländische Ministerium für Umwelt, Klima, Mobilität, Agrar und Verbraucherschutz - genehmigt; nach Ausschreibung - die aktuell in Vorbereitung ist - und anschließender Vergabe ist der Baubeginn Mitte des Jahres 2024 vorgesehen. Das DGH im Ortskern (für kleinere Veranstaltungen und Veranstaltungen im Außenbereich) ergänzt das Sportheim am Ortsrand, das auch ortsübergreifend von Bürgerinnen und Bürgern sowie Vereinen anderer Ortsteile sehr gut frequentiert ist.

Herzliche Grüße
Ihr Bürgermeister Karl-Josef Scheer