Titel Logo
Stadtanzeiger Tann (Rhön)
Ausgabe 39/2023
Amtliche Bekanntmachungen
Zurück zur vorigen Seite
Zurück zur ersten Seite der aktuellen Ausgabe

1. Änderung des Bebauungsplanes Nr. 2

Wohngebiet „Am Weinberg - Am Räschen“ Stadt Tann (Rhön)

Öffentliche Auslegung des Entwurfs zum Bebauungsplan nach § 3 Abs. 2 Baugesetzbuch (BauGB)

Die Stadt Tann (Rhön) hat den Entwurf über die 1. Änderung des Bebauungsplanes der Stadt Tann (Rhön) Nr. 2 Wohngebiet „Am Weinberg - Am Räschen“ in der Gemarkung Tann (Rhön) gebilligt und zur öffentlichen Auslegung bestimmt.

Im Flächennutzungsplan ist das betreffende Areal als Wohnbaufläche dargestellt. Somit entspricht das Vorhaben den Entwicklungszielen der Stadt Tann (Rhön) - die Änderung des Bebauungsplanes wird demnach gemäß § 8 Abs. 1 Satz 1 Baugesetzbuch (BauGB) aus dem Flächennutzungsplan entwickelt.

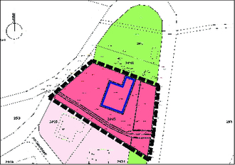
Der Geltungsbereich der 1. Änderung des Bebauungsplanes umfasst Grundstücksteile der ehemaligen Minigolfanlage in der Gemarkung Tann, Flur 23, Flurstück 24/45 und ist nachfolgend dargestellt:

Die 1. Änderung des Bebauungsplanes der Stadt Tann (Rhön) Nr. 2 Wohngebiet „Am Weinberg - Am Räschen“ wird im beschleunigten Verfahren nach § 13a BauGB aufgestellt, da die im Gesetz geforderten Voraussetzungen vorliegen. Von der Umweltprüfung gemäß § 2 Abs. 4 BauGB sowie deren Darlegung in der Begründung gem. § 2a Nr. 2 BauGB auch von der Eingriffs- und Ausgleichsplanung gem. § 1a Abs 3 BauGB wird abgesehen.

Gemäß § 3 Abs. 2 Satz 1 Baugesetzbuch (BauGB) erfolgt die Veröffentlichung der Planungsunterlagen zur Beteiligung der Öffentlichkeit, der Behörden und sonstigen Träger öffentlicher Belange sowie der benachbarten Gemeinden im Internet.

Die zur öffentlichen Auslegung bestimmten Unterlagen der 1. Änderung des Bebauungsplanes Nr. 2 Wohngebiet „Am Weinberg - Am Räschen“ bestehen aus der Planzeichnung mit textlichen Festsetzungen, der Begründung sowie der amtlichen Bekanntmachung. Es erfolgt im Rahmen der Beteiligung der Öffentlichkeit keine Angabe zur Verfügbarkeit von umweltbezogenen Informationen gemäß § 3 Abs. 2 Satz 2 BauGB. Die auszulegenden Unterlagen werden

In der Zeit vom Montag, den

02.10.2023 bis Freitag, den 03.11.2023

durch Veröffentlichung auf der Internetseite der Stadt Tann (Rhön) unter

https://tann-rhoen.de/leben-und-arbeiten-in-tann/bauen-und-wohnen/bauleitplanung-/-fn-plan- online zu jedermanns Einsicht bereitgestellt. Ergänzend hierzu können die o.a. Unterlagen auch über das Bauleitplanungsportal des Landes Hessen, https://bauleitplanung.hessen.de/ eingesehen und heruntergeladen werden.

Zusätzlich zur Veröffentlichung im Internet erfolgt die öffentliche Auslegung der Entwurfsunterlagen in der Stadtverwaltung Tann (Rhön), Bauamt, Raum DG 01, Marktplatz 9, 36142 Tann (Rhön), während den folgenden Dienstzeiten zur Einsichtnahme aus.

Montag bis Mittwoch

8.00 Uhr bis 12.00 Uhr und 14.00 Uhr

bis 15.30 Uhr

Donnerstag

8.00 Uhr bis 12.00 Uhr und 14.00 Uhr

bis 18.00 Uhr

Freitag

8.00 Uhr bis 12.00 Uhr

Während der Auslegungsdauer können gem. § 3 Abs. 2 Baugesetzbuch (BauGB) von jedermann Anregungen vorgebracht werden. Diese sollen elektronisch per E-Mail an bauabteilung@tann-rhoen.de gesendet und können darüber hinaus auch auf dem Postweg an die Stadtverwaltung Tann (Rhön), Bauamt, Marktplatz 9, 36142 Tann (Rhön) abgegeben werden.

Die Abgabe einer Stellungnahme zur Niederschrift ist nach telefonischer Vereinbarung außerdem möglich (Telefonnummer 06682/ 9611-33).

Es wird ferner gemäß § 3 Abs. 2 Nr. 3 Baugesetzbuch (BauGB) darauf hingewiesen, dass nicht fristgerecht abgegebene Stellungnahmen bei der Beschlussfassung über den Bebauungsplan unberücksichtigt bleiben können, sofern die Stadt Tann (Rhön) deren Inhalt nicht kannte und nicht hätte kennen müssen und deren Inhalt für die Rechtmäßigkeit nicht von Bedeutung ist.

Hinweise zum Datenschutz: Im Rahmen der Beteiligung werden personenbezogene Daten erhoben und verarbeitet. Die Datenverarbeitung erfolgt auf der rechtlichen Grundlage des § 3 BauGB in Verbindung mit Artikel 6 Abs. 1 Satz 1 Buchstabe c und e Datenschutz-Grundverordnung (DSGVO) und § 3 Hessisches Datenschutz- und Informationsfreiheitsgesetz (HDSIG). Mit der Abgabe von Stellungnahmen im Rahmen des Bauleitplanverfahrens werden die personenbezogenen Daten (Name, Adresse, E-Mail-Adresse) für die gesetzlich bestimmten Dokumentations- und Informationspflichten genutzt und bis zur Rechtskraft/ Bestandskraft der Satzung gespeichert.

Die Daten werden benötigt, um den Umfang Ihrer Betroffenheit oder Ihrsonstiges Interesse hinsichtlich des Bauleitplanverfahrens beurteilen zu können. Die Daten werden darüber hinaus verwendet, um Sie über das Ergebnis der Prüfung und dessen Berücksichtigung zu informieren. Es besteht die Möglichkeit, eine Stellungnahme ohne die Angaben personenbezogener Daten abzugeben. In diesem Fall kann jedoch keine Mitteilung an Sie erfolgen.

Tann (Rhön), den 25.09.2023

Der Magistrat der Stadt Tann (Rhön)
Gez. Mario Dänner, Bürgermeister