Titel Logo
Waldsolmser Nachrichten
Ausgabe 19/2023
Amtliche Bekanntmachung
Zurück zur vorigen Seite
Zurück zur ersten Seite der aktuellen Ausgabe
-

Bauleitplanung der Gemeinde Waldsolms

hier: Öffentliche Auslegung des Entwurfes zum Bebauungsplan „Fahrrad- und Wanderscheune“, OT Brandoberndorf

Die Gemeindevertretung hat in ihrer Sitzung am 29.03.2023 dem Entwurf des Bebauungsplanes „Fahrrad- und Wanderscheune“ sowie der Begründung zugestimmt und die öffentliche Auslegung gemäß § 3 (2) BauGB beschlossen.

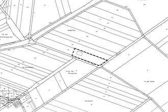
Der Geltungsbereich des Bebauungsplanes befindet sich am nordöstlichen Siedlungsrand des Ortsteils Brandoberndorf östlich der Cleeberger Straße und nördlich der Straße „Drosselweg“. Er umfasst in der Gemarkung Brandoberndorf der Gemeinde Waldsolms, Flur 5, das Flurstück 29/1 teilweise mit dem bereits bestehenden Gebäude und einer Größe von 4.142 m².

Geltungsbereich ohne Maßstab

Der Entwurf des Bebauungsplanes liegt mit Begründung gemäß § 3 (2) BauGB in der Zeit vom 22.05.2023 bis 26.06.2023 im Bauamt der Gemeinde Waldsolms, Bauverwaltung, Lindenplatz 1, 35647 Waldsolms-Brandoberndorf, während der allgemeinen Dienstzeiten sowie nach Vereinbarung öffentlich aus und kann von jedermann eingesehen werden. Gemäß § 4a (4) BauGB werden die Planunterlagen zusätzlich in das Internet eingestellt und können auf der Homepage www.waldsolms.de unter der Rubrik „Bauen, Wirtschaft und Wohnen à laufende Bauleitplanverfahren“ eingesehen und heruntergeladen werden.

Es liegen folgende umweltbezogene Informationen vor:

1) Fachplanungen in Form des Landschaftsplanerischen Beitrages (Biotoptypenkartierung) sowie eines Faunistischen Kurzgutachtens;

2) Fachplanung in Form des Umweltberichts mit Informationen und Aussagen zu den Schutzgütern Mensch, Boden und Wasser, Klima und Luft, Fläche, Kultur- und Sachgüter, Pflanzen, Tiere und biologische Vielfalt sowie Landschaftsbild und deren Wechselwirkungen untereinander – gegliedert nach den Punkten Beschreibung und Bewertung;

a.

Pflanzen

Beschreibung und Bewertung der Biotop- und Nutzungstypen mit der Feststellung, dass beim Umbau des Bestandsgebäudes keine weiteren Biotopstrukturen verloren gehen.

b.

Tiere und biologische Vielfalt

Der Planungsraum übernimmt für die Tierwelt insgesamt eine mittlere Bedeutung ein.

c.

Boden und Wasser

Beschreibung der Geologie, natürlichen Funktion, Archivfunktion, Empfindlichkeiten und Vorbelastungen. Daraus resultiert, dass dem Plangebiet überwiegend eine geringe bis mittlere Bedeutung zukommt.

d.

Klima und Luft

Beschreibung und Bewertung der klimatischen Funktionen des Plangebietes, mit dem Ergebnis, dass aufgrund der Kleinflächigkeit die Bedeutung des Plangebietes für den Klimahaushalt als nachrangig einzustufen ist.

e.

Landschaftsbild

Beschreibung und Bewertung des Schutzgutes mit dem Resultat, dass von Westen, Osten und Norden eine gute Einsehbarkeit besteht, die jedoch bereits jetzt durch die bestehende Halle gegeben ist.

f.

Schutzgut Mensch

Auf den Menschen haben sowohl wohnumfeldabhängige Faktoren wie die Wohn-, Erholungs- und Freizeitfunktionen sowie Aspekte des Immissionsschutzes als auch wirtschaftliche Funktionen wie z.B. die Land- und Forstwirtschaft Auswirkungen. Im Ergebnis weist das Plangebiet eine geringe bis mittlere Bedeutung auf.

g.

Kultur- und Sachgüter

Beschreibung, dass Kultur- und Sachgüter im Plangebiet von untergeordneter Bedeutung sind.

h.

Fläche

Aufgrund des bereits bestehenden Gebäudes sowie der noch hinzukommenden geringen Flächenbeanspruchung und der Kleinräumigkeit des Plangebietes sind die Auswirkungen auf das Schutzgut Fläche gering.

3) naturschutzfachliche Eingriffs-Ausgleichs-Bilanzierung und Maßnahmenbeschreibung;

4) Umweltbezogene Stellungnahmen von Behörden und sonstigen Trägern öffentlicher Belange sowie von Privatpersonen zu folgenden Themenkomplexen:

a. Kompensation

Die Unterlagen können während der Offenlegung eingesehen werden.

Während der Auslegungsfrist können Stellungnahmen zu dem Entwurf von jedermann schriftlich oder zur Niederschrift bei der Gemeindeverwaltung abgegeben werden. Nicht fristgerecht abgegebene Stellungnahmen können gemäß § 4 a Abs. 6 BauGB bei der Beschlussfassung über den Bebauungsplan unberücksichtigt bleiben. Die zur Bebauungsplanaufstellung abgegebenen Stellungnahmen werden in öffentlichen Sitzungen beraten und somit personenbezogene Daten, soweit sie für das Verfahren der Bebauungsplanaufstellung erforderlich sind, der Gemeindevertretung und mithin der Öffentlichkeit zur Verfügung gestellt. Die einschlägigen personenbezogenen Daten werden gesondert verarbeitet. Die Verarbeitung erfolgt von der übrigen Verwaltung der Gemeinde Waldsolms personell und organisatorisch getrennt. Es erfolgt keine Nutzung dieser personenbezogenen Daten durch eine andere Stelle für andere Verwaltungszwecke oder eine Übermittlung an eine andere Stelle bis auf das beauftragte Planungsbüro.

Die Gemeinde Waldsolms hat gemäß § 4b BauGB für die Vorbereitung und Durchführung von Verfahrensschritten nach den §§ 2a bis 4a BauGB das Planungsbüro Koch aus Aßlar beauftragt.

Waldsolms, den 05.05.2023

Der Gemeindevorstand
der Gemeinde Waldsolms
gez. Bernd Heine, Bürgermeister