Titel Logo
Amtsblatt der VG Hagenbach
Ausgabe 14/2025
Amtlicher Teil
Zurück zur vorigen Seite
Zurück zur ersten Seite der aktuellen Ausgabe

Bekanntmachung

Vollzug des BauGB

Bekanntmachung des Aufstellungsbeschlusses

zur 2. Änderung des Bebauungsplanes

„Ehemaliges Sägewerk an der K 19“

der Stadt Hagenbach

in Kombination mit der öffentlichen Auslegung

Der Stadtrat Hagenbach hat in seiner Sitzung am 16.05.2024 den Aufstellungsbeschluss für die 2. Änderung des Bebauungsplanes „Ehemaliges Sägewerk an der K 19“ gefasst. Ferner hat der Stadtrat Hagenbach in der Sitzung am 13.03.2025 den hierzu ausgearbeiteten Bebauungsplanentwurf mit Begründung gebilligt und dessen öffentliche Auslegung beschlossen.

Anlass / Ziel:

Im Rahmen eines derzeit laufenden Bauantragsverfahrens für die Grundstücke Plannummer 3585/34 und 3585/60 wurde festgestellt, dass ein Bürocontainer, der auch bereits bei der Aufstellung des Bebauungsplanes bestanden hatte, die festgesetzte Baugrenze mit seiner nordöstlichen Gebäudeecke um jeweils 2 m Länge überschreitet. Da die Festlegung bei der erstmaligen Aufstellung des Bebauungsplanes so nicht gewollt war, wird eine Anpassung der Baugrenze in diesem Bereich vorgenommen.

Im Zuge dieser Änderung soll auch eine Regelung zur ausnahmsweisen Zulässigkeit von betriebsbedingtem Wohnen aufgenommen werden. Zur Stärkung der gewerblichen Nutzung hatte die Stadt Hagenbach bei der erstmaligen Aufstellung die Ausnahme für betriebsbedingtes Wohnen für unzulässig festgesetzt. Zwischenzeitlich zeigt sich jedoch ein Bedarf der dort ansässigen Gewerbetreibenden zur Überwachung bei ihrem Betrieb mit bei zu wohnen.

Dadurch wird die 2. Änderung des Bebauungsplanes „Ehemaliges Sägewerk an der K 19“ erforderlich.

Verfahren:

Die Aufstellung des Bebauungsplanes erfüllt die Voraussetzungen, um im beschleunigten Verfahren nach § 13 a BauGB durchgeführt zu werden. Eine Vorprüfung des Einzelfalls gemäß § 13 a Abs. 1 S. 2 Nr. 2 BauGB ist erfolgt und hat keine erheblichen Umweltauswirkungen ergeben, die nach § 2 Abs. 4 S. 4 BauGB in der Abwägung zu berücksichtigen wären. § 13 Abs. 2 und 3 BauGB gelten daher entsprechend. Es wird darauf hingewiesen, dass gem. § 13 Abs. 3 BauGB von einer Umweltprüfung nach § 2 Abs. 4 BauGB, von dem Umweltbericht nach § 2a BauGB, von der Angabe nach § 3 Abs. 2 S. 2 BauGB, welche Arten umweltbezogener Informationen verfügbar sind, der zusammenfassenden Erklärung nach § 10a Abs. 1 BauGB und gem. § 13 Abs. 2 BauGB und § 13a Abs. 3 BauGB von der frühzeitigen Unterrichtung und Erörterung nach §§ 3 Abs. 1 und 4 Abs. 1 BauGB abgesehen wird.

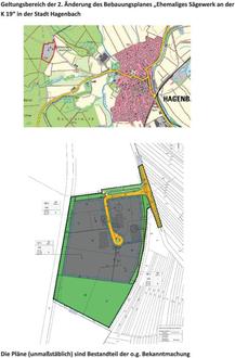
Geltungsbereich:

Der Geltungsbereich der 2. Änderung umfasst den Geltungsbereich des rechtskräftigen Bebauungsplanes „Ehemaliges Sägewerk an der K 19“ in der Fassung der 1. Änderung. Der Geltungsbereich ist aus den beigefügten Planauszügen ersichtlich.

Gemäß §§ 13a, 13 und 3 Abs. 2 BauGB wird der Entwurf zur 2. Änderung des Bebauungsplanes „Ehemaliges Sägewerk an der K 19“ bestehend aus der Planzeichnung, dem Textteil und der Begründung (in Papierform) in der Zeit von Montag, 07.04.2025 bis einschließlich Dienstag, 06.05.2025 bei der Verbandsgemeindeverwaltung Hagenbach, Ludwigstraße 20, 76767 Hagenbach, Zimmer-Nr. 207, während der üblichen Sprechzeiten (Montag bis Donnerstag 08:00 Uhr - 12:00 Uhr; Dienstag und Mittwoch 14:30 Uhr - 16:00 Uhr sowie Donnerstag 14:30 Uhr - 18:00 Uhr und Freitag 08:00 Uhr - 12:30 Uhr) für jedermanns Einsicht öffentlich ausgelegt.

Die offen gelegten Unterlagen zum Bebauungsplanentwurf und die Bekanntmachung können auch auf der Homepage der Verbandsgemeinde unter http://www.vg-hagenbach.de/rathaus-politik/oeffentliche-auslegung/ eingesehen werden.

Stellungnahmen zum Bebauungsplanentwurf können bis zum 06.05.2025 abgegeben werden. Sie sind möglichst elektronisch an die E-Mail-Adresse Bauverwaltung@vg-hagenbach.de zu übermitteln, können aber auch schriftlich, mündlich zur Niederschrift (nach Terminvereinbarung), per Fax oder in sonstiger Weise bei der oben angegebenen Dienststelle abgegeben werden. Da das Ergebnis der Behandlung der Stellungnahmen mitgeteilt wird, ist die Angabe der Anschrift des Verfassers zweckmäßig.

Es wird darauf hingewiesen, dass nicht rechtzeitig abgegebene Stellungnahmen nach § 4 a Abs. 5 BauGB bei der Beschlussfassung über die 2. Änderung des Bebauungsplanes „Ehemaliges Sägewerk an der K 19“ unberücksichtigt bleiben können.

Im Zusammenhang mit dem Datenschutz wird ausdrücklich darauf hingewiesen, dass ein Bauleitplanverfahren ein öffentliches Verfahren ist und daher in der Regel alle dazu eingehenden Stellungnahmen in öffentlichen Sitzungen beraten und entschieden werden, sofern sich nicht aus der Art der Einwände oder der betroffenen Personen ausdrückliche oder offensichtliche Einschränkungen ergeben. Laut den Vorgaben der Datenschutz-Grundverordnung (DSGVO) Art. 6 I a), e), f) sowie § 3 des Landesdatenschutzgesetzes Rheinland-Pfalz (LDSG RLP), werden personenbezogene Daten von Bürgerinnen und Bürgern wie Vor- und Familienname sowie Kontaktdaten (Anschrift, Telefon- und Faxnummer, E-Mailadresse) zur Bearbeitung der vorgebrachten Anregungen gespeichert und in den Drucksachen für die öffentlichen Sitzungen des Gemeinderats und der Ausschüsse anonymisiert aufgeführt. Grundsätzlich wird auf die Datenschutzerklärung der Verbandsgemeindeverwaltung Hagenbach verwiesen.

Hagenbach, den 01.04.2025
Christian Hutter
Stadtbürgermeister