Titel Logo
Amtsblatt der VG Hagenbach
Ausgabe 7/2026
Amtlicher Teil
Zurück zur vorigen Seite
Zurück zur ersten Seite der aktuellen Ausgabe

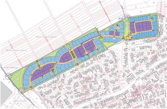
Neubaugebiet Nord V: Ausschreibung der Erschließungsarbeiten gestartet

Hagenbach wächst im Norden. Ende Mai 2026 könnten die Arbeiten zur Erschließung beginnen. Es ist mit einer Bauzeit von mindestens 1,5 Jahren zu rechnen.

Der europaweite Ausschreibungsprozess zur Vergabe der Erschließungsarbeiten des Neubaugebiets Nord V ist gestartet. Mit dem Beginn der Bauarbeiten wird Ende Mai, Anfang Juni 2026 gerechnet, wobei als erstes mit der Kampfmittelerkundung gestartet wird. Unverbindliche Interessenbekundungen für den Erwerb von Bauplätzen aus städtischer Hand können bei der Verbandsgemeindeverwaltung abgegeben werden. Ansprechpartnerin ist Frau Christina Kupper, erreichbar per E-Mail unter christina.kupper@vg-hagenbach.de. Ein Vergabeverfahren wird der Stadtrat in den kommenden Monaten festlegen. Grundstückspreise und die weiteren Bedingungen können vom Rat erst festgelegt werden, wenn die endgültigen Kosten für die Erschließung bekannt sind.