Titel Logo
Wochenspiegel Dom- und Kaiserstadt Fritzlar
Ausgabe 11/2025
Gestaltung Innenteil
Zurück zur vorigen Seite
Zurück zur ersten Seite der aktuellen Ausgabe
-

Allgemein

Liebe Mitbürgerinnen und Mitbürger,

ich informiere Sie zu den wichtigsten gefassten Beschlüssen aus der vergangenen Stadtverordnetenversammlung.

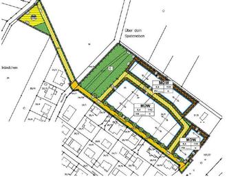
1. Neue Bauplätze „Am Spateneisen“ in Geismar

In Geismar soll das Baugebiet „Am Spateneisen“ um 14 Bauplätze erweitert werden. Die Stadtverordnetenversammlung stimmte einstimmig für den Beschluss der frühzeitigen Beteiligung der Bevölkerung sowie Behörden, für die Anpassung der Entwurfsplanung im Zuge der Umweltprüfungsergebnisse, für die Ausgleichsfläche im Bereich „Lohrberg“ und den Auslegungsbeschluss. Die Umweltprüfung hatte ergeben, dass am westlichen Rand des Planungsgebiets ein Zauneidechsen-Habitat vorhanden ist. Diese Art steht unter strengem Schutz. Da eine Umsiedlung mit großem Aufwand verbunden ist, wird davon abgesehen und die betroffene Fläche nicht bebaut. Die Umplanung ergibt sogar 2 zusätzliche Bauplätze und den Vorteil, dass die bereits im ersten Bauabschnitt gelegten Anschlüsse weitestgehend genutzt werden können.

2. Neufestsetzung der Verkaufspreise für Erbbaugrundstücke in Züschen, Ungedanken und der Kernstadt

Die Stadtverordnetenversammlung beschließt die Erhöhung der Grundstückskaufpreise für Erbbaugrundstücke. Ab dem 01.07.2025 beträgt der Verkaufspreis in der Kernstadt 130 Euro pro Quadratmeter (bisher 50 €/m²), in Ungedanken 40 Euro/m² (bisher 30 €/m²) und in Züschen 50 Euro/m² (bisher 40 €/m²).

3. Windelmüllbeutel

Die Stadtverordnetenversammlung beschließt, das in 2024 eingeführte Angebot von kostenlosen Windelmüllbeutel für Kleinkinder bis zum 3. Lebensjahr weiterzuführen.

Die Windelbeutel können gegen Vorlage des Personalausweises von Mutter oder Vater in der Bürgerinfo im Rathaus abgeholt werden.

4. Finanzen: Jahresabschluss 2023

Der Jahresabschluss 2023 weist eine Bilanzsumme von 113.852.562,14 Euro auf und somit gegenüber 2022 eine Erhöhung um 10,2 Mio. Euro. Der Bestand an Zahlungsmitteln beträgt 10,76 Mio. Euro. Der Schuldenstand reduziert sich um rund 1 Mio. Euro.

Über die weiteren Beschlüsse und Maßnahmen werde ich wieder zeitgerecht informieren.

Mit freundlichen Grüßen

Hartmut Spogat