Titel Logo
Kirkeler Nachrichten
Ausgabe 12/2026
Amtliche Bekanntmachungen
Zurück zur vorigen Seite
Zurück zur ersten Seite der aktuellen Ausgabe

Gemeinde veräußert ein Baugrundstück in Kirkel, Ortsteil Altstadt

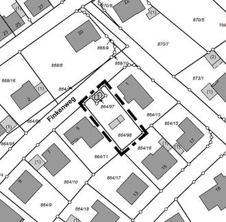
Die Gemeinde Kirkel, Hauptstr. 10, 66459 Kirkel, bietet folgendes Grundstück in der Gemarkung Altstadt für eine Wohnbebauung meistbietend zum Kauf an:

Flur 4 Flurstück 864/98, Finkenweg 3, 421 m² groß, 66459 Kirkel, mit aufstehender ehemaliger Trafostation.

Das Mindestangebot beträgt 70.700,00 €.

Im Nachgang anfallende Nebenkosten (z. B. Vermessungs- und Notarkosten, Abrisskosten ehemalige Trafostation etc.) gehen zu Lasten des Käufers.

Das Grundstück befindet sich im Geltungsbereich des Bebauungsplanes „Auf dem Lerchesberg“ im Ortsteil Altstadt mit der Festsetzung „Flächen für Versorgungsanlagen: Trafostation“. Zur Ausweisung einer Wohnbaufläche wurde eine vereinfachte Änderung des Bebauungsplanes durchgeführt. Das Grundstück kann mit einem Wohnhaus mit maximal 1 Vollgeschoss bebaut werden. Die Trafostation im vorderen Bereich ist nicht Teil des Flurstücks und somit nicht Teil der Veräußerung und bleibt erhalten. Das Grundstück ist innerhalb von zwei Jahren zu bebauen und darf nicht unbebaut weiterveräußert werden.

Interessenten werden gebeten, ihr Kaufangebot in einem verschlossenen, auffällig gekennzeichneten Umschlag mit der Aufschrift „Achtung Grundstücksangebot – nicht öffnen!“ bis zum 31.07.2026, 12:00 Uhr, an die Gemeinde Kirkel, Hauptstr. 10, 66459 Kirkel, zu senden bzw. den Umschlag im Rathaus II, Fachbereich 3 - Bauen und Umwelt -, Zimmer R.2.1.02, abzugeben.

Weitere Auskünfte erteilt die Gemeinde Kirkel, Frau Seibert, 06841/8098-52 oder k.seibert@kirkel.de.

Kirkel, 13.03.2026
gez.
Dominik Hochlenert, Bürgermeister