Titel Logo
Kirkeler Nachrichten
Ausgabe 17/2024
Amtliche Bekanntmachungen
Zurück zur vorigen Seite
Zurück zur ersten Seite der aktuellen Ausgabe

Bekanntmachung

Aufstellung und öffentliche Auslegung der
18. Teiländerung des Bebauungsplanes „Am Mühlenweiher“
in der Gemeinde Kirkel, Ortsteil Kirkel-Neuhäusel

Gemäß § 2 Abs. 1 Baugesetzbuch (BauGB) wird hiermit öffentlich bekannt gemacht, dass der Rat der Gemeinde Kirkel in seiner Sitzung am 21.03.2024 die Einleitung des Verfahrens zur 18. Teiländerung des Bebauungsplanes „Am Mühlenweiher“ beschlossen hat.

In der gleichen Sitzung hat der Rat der Gemeinde Kirkel den Entwurf der 18. Teiländerung des Bebauungsplanes „Am Mühlenweiher“, bestehend aus der Planzeichnung und dem Textteil, gebilligt und die öffentliche Auslegung gem. § 13 a Abs. 2 Nr. 1 i.V.m. § 13 Abs. 2 Nr. 2 BauGB und § 3 Abs. 2 BauGB in der derzeit gültigen Fassung beschlossen.

Die Gemeinde Kirkel plant eine Nutzungserweiterung im Bereich des Sportheims des SV-Kirkel, welches an die Mehrzweckhalle „Burghalle Kirkel“ und den angrenzenden Sportplatz angegliedert ist. Geplant ist eine Erweiterung der bestehenden baulichen Anlagen. Unter anderem soll ein Unterstand im Bereich der Tribüne des Sportplatzes errichtet werden. Des Weiteren sollen im Gebäude des Sportheims Räume zur Kinderbetreuung genutzt werden.

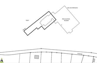
Das ca. 0,1 ha große Plangebiet liegt im Süden des Ortsteils Kirkel-Neuhäusel der Gemeinde Kirkel und hier innerhalb des Freizeitzentrums „Mühlenweiher“.

Der Geltungsbereich des Bebauungsplanes „Am Mühlenweiher“ umfasst Teile der Parzelle Nr. 759/21 in Flur 4 der Gemarkung Kirkel-Neuhäusel.

Die genaue Abgrenzung des Geltungsbereiches ist der untenstehenden Abbildung zu entnehmen.

Der Bebauungsplan soll im beschleunigten Verfahren gemäß § 13 a BauGB ohne Durchführung einer Umweltprüfung nach § 2 Abs. 4 BauGB sowie ohne Durchführung der frühzeitigen Beteiligung der Öffentlichkeit und der Behörden und Träger öffentlicher Belange gem. § 3 Abs. 1 und § 4 Abs. 1 BauGB aufgestellt werden. Im beschleunigten Verfahren können Bebauungspläne aufgestellt werden, die der Wiedernutzbarmachung von Flächen, der Nachverdichtung oder anderen Maßnahmen der Innenentwicklung (Bebauungspläne der Innenentwicklung) dienen.

Gemäß § 3 Abs. 2 BauGB wird hiermit öffentlich bekannt gemacht, dass der Entwurf des Planes und die dazugehörige Begründung in der Zeit

vom 29.04.2024 bis einschließlich 31.05.2024

während der allgemeinen Dienststunden (Montag - Dienstag: 08:00 Uhr – 12:00 Uhr und 13:30 Uhr – 16:00 Uhr, Mittwoch: 08:00 Uhr - 12:00 Uhr, Donnerstag: 08:00 Uhr - 12:00 Uhr und 13:30 Uhr - 16:00 Uhr, Freitag: 08:00 Uhr - 12:00 Uhr) im Rathaus der Gemeinde Kirkel, Fachbereich Bauen und Umwelt, Zimmer R2.1.02, zu jedermanns Einsicht öffentlich ausliegt.

Gleichzeitig wird der Bebauungsplan im Internet auf der Homepage der Gemeinde Kirkel (https://www.kirkel.de/aktuelles-termine/oeffentliche-bekanntmachungen/) zum Download bereitgestellt.

Es ist davon auszugehen, dass der Zeitraum der Auslegung der Komplexität der Planungsaufgabe angemessen ist.

Folgende Unterlagen liegen vor:

  • Diese öffentliche Bekanntmachung nach § 3 Abs. 2 BauGB
  • Planzeichnung des Bebauungsplanes (Teil A)
  • Textteil des Bebauungsplanes (Teil B)
  • Begründung des Bebauungsplanes

Zusätzlich besteht die Möglichkeit zur Teilnahme am elektronischen Beteiligungsverfahren. Unter der Internetadresse

https://argusconcept.planungsbeteiligung.de.

kann jedermann Einsicht in die vollständigen Unterlagen zum Verfahren nehmen. Dieser Dienst steht nur während der Beteiligungsfristen vom 29.04.2024 bis einschließlich 31.05.2024 zur Verfügung.

Während der Auslegungsfrist können gemäß § 3 Abs. 2 BauGB von jedermann Stellungnahmen schriftlich, zur Niederschrift oder elektronisch per Email an die Adresse: gemeinde@kirkel.de vorgebracht werden. Über die Beteiligungsplattform des Planungsbüros können zudem Stellungnahmen direkt beim Planungsbüro eingereicht werden. Nicht fristgerecht abgegebene Stellungnahmen können bei der Beschlussfassung über die Ergänzungssatzung unberücksichtigt bleiben.

Hinweis zum Datenschutz

Die Verarbeitung personenbezogener Daten erfolgt auf Grundlage des § 3 BauGB in Verbindung mit Art. 6 Abs. 1 Buchst. e DSGVO und dem Landesdatenschutzgesetz Saarland.

Im Rahmen der Abgabe einer Stellungnahme werden personenbezogene Daten, insbesondere Namen, Anschrift, Telefonnummer, die allein zur Information über das durchgeführte Verfahren dienen, verarbeitet. Mit Abgabe einer Stellungnahme erklärt sich die abgebende Person mit dieser Verarbeitung einverstanden. Sie willigt ein, dass die Gemeinde Kirkel oder ein von der Gemeinde Kirkel eingeschalteter Dritter (hier ein externes Planungsbüro) ihr postalisch oder per E-Mail Informationen zum durchgeführten Verfahren zukommen lässt. Sie ist gemäß § 15 der Datenschutz-Grundverordnung (DSGVO) jederzeit berechtigt, die Gemeinde Kirkel oder den von der Gemeinde eingeschalteten Dritten um umfangreiche Auskunftserteilung zu den zu ihrer Person gespeicherten Daten zu ersuchen. Gemäß § 17 DSGVO kann sie jederzeit gegenüber der Gemeinde Kirkel oder dem von der Gemeinde einschalteten Dritten die Berichtigung, Löschung und Sperrung einzelner personenbezogener Daten verlangen.

Sofern Sie ihre Stellungnahme ohne Absenderangaben abgeben, erhalten Sie keine Mitteilung über das Ergebnis der Prüfung. Weitere Informationen entnehmen Sie bitte dem Formblatt: Informationspflichten bei der Erhebung von Daten im Rahmen der Öffentlichkeitsbeteiligung nach BauGB (Art. 13 DSGVO), welches mit ausliegt.

Im Zusammenhang mit dem Datenschutz weist die Gemeinde Kirkel ausdrücklich darauf hin, dass ein Bauleitplanverfahren ein öffentliches Verfahren ist und daher in der Regel alle dazu eingehenden Stellungnahmen in öffentlichen Sitzungen beraten und entschieden werden. Soll eine Stellungnahme nur anonym behandelt werden, ist dies auf derselben eindeutig zu vermerken.

Kirkel, 26.04.2024
gez.
Frank John, Bürgermeister