Titel Logo
Lebach Mittelpunkt des Saarlandes
Ausgabe 16/2024
Amtliche Bekanntmachungen
Zurück zur vorigen Seite
Zurück zur ersten Seite der aktuellen Ausgabe

Vorkaufsrechtssatzung der Stadt Lebach für Neubau einer Kindertagesstätte im Stadtteil Lebach

Der Stadtrat von Lebach hat in seiner Sitzung vom 21. März 2024 die Vorkaufsrechtssatzung „Neubau Kindertagesstätte Lebach“ beschlossen.

Aufgrund des § 25 Abs. 1 Satz 1 Nr.2 des Baugesetzbuches (BauGB) in der Fassung der Bekanntmachung vom 23.09.2004 (BGBl. I S. 2414), zuletzt geändert durch Gesetz vom 20.12.2023 (BGBl. I S. 394) m.W.v. 01.01.2024 in Verbindung mit § 12 Kommunalselbstverwaltungsgesetz (KSVG) in der Fassung der Bekanntmachung vom 27. Juni 1997 (Amtsbl. S. 682), zuletzt geändert durch Gesetz vom 12.12.2023 (Amtsbl. I S. 1119), erlässt die Stadt Lebach folgende Satzung:

§ 1 Zweck der Satzung

Im nachfolgend näher beschriebenen Gebiet zieht die Stadt Lebach städtebauliche Maßnahmen in Betracht. Sie beabsichtigt den Neubau einer Kindertagesstätte im Stadtteil Lebach. Zur planerischen Vorbereitung dieser Maßnahmen und zur Sicherung einer geordneten städtebaulichen Entwicklung innerhalb des Gebietes sowie für die dazu notwendigen Ausgleichsmaßnahmen im Sinne von §1a BauGB wird ein besonderes Vorkaufsrecht gemäß § 25 Abs. 1 Satz 1 Nr. 2 BauGB festgesetzt.

§ 2 Räumlicher Geltungsbereich

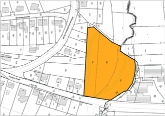
Die Satzung erhält die Kennzeichnung „Neubau Kindertagesstätte Lebach“. Sie umfasst alle Grundstücke und Grundstücksteile innerhalb der im Lageplan abgegrenzten Fläche im Stadtteil Lebach. Dieser Lageplan ist Bestandteil dieser Satzung und als Anlage beigefügt. Werden innerhalb des Satzungsgebietes durch Grundstückszusammenlegungen Flurstücke aufgelöst und neue Flurstücke gebildet oder entstehen durch Grundstücksteilungen neue Flurstücke, sind auf diese insoweit die Bestimmungen dieser Satzungen ebenfalls anzuwenden.

§ 3 Rechtswirkung des Vorkaufsrechtes

Neben dem der Gemeinde nach § 24 des BauGB zustehenden allgemeinen Vorkaufsrecht steht der Stadt Lebach in dem unter § 2 bezeichneten Gebiet das besondere Vorkaufsrecht nach § 25 Abs. 1 Satz 1 Nr. 2 BauGB für alle Grundstücke zu. Die Stadt Lebach kann in begründeten Ausnahmefällen von der Regelung absehen, wenn die Veräußerung der geordneten städtebaulichen Maßnahme nicht entgegensteht.

§ 4 Inkrafttreten

Die Satzung über das besondere Vorkaufsrecht tritt am Tage nach der öffentlichen Bekanntmachung in Kraft.

Lebach, den 15.04.2024
Klauspeter Brill, Bürgermeister

Hinweise:

Auf die Voraussetzungen für die Geltendmachung der Verletzung von Verfahrens- und Formvorschriften und von Mängeln der Abwägung sowie die Rechtsfolgen des § 215 Abs. 1 BauGB wird hingewiesen. Unbeachtlich werden demnach

1.

eine Verletzung der in § 214 Abs. 1 Nr. 1 und 2 BauGB bezeichneten Verfahrens- und Formvorschriften und

2.

Mängel der Abwägung, wenn sie nicht in Fällen der Nr. 1 innerhalb eines Jahres, in Fällen der Nr. 2 innerhalb von sieben Jahren seit Bekanntmachung der Satzung schriftlich gegenüber der Gemeinde gelten gemacht worden sind; der Sachverhalt, der die Verletzung oder den Mangel begründen soll, ist darzulegen.

Die Satzung und die einschlägigen Vorschriften können während der allgemeinen Dienstzeit von jedermann im Rathaus, Bauamt eingesehen werden. Dort erhalten Betroffene und Interessierte weitere Auskünfte.