Titel Logo
Vom Kuckuck und Esel (Guxhagen-Körle)
Ausgabe 49/2023
Aktuelles aus Körle
Zurück zur vorigen Seite
Zurück zur ersten Seite der aktuellen Ausgabe

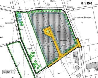
Gewerbegebiet An der Eiche wird erweitert

Der nun beschlossene Bebauungsplan ist die Basis für eine Erweiterung des Gewerbegebiets. Die benachbarte Streuobstwiese wird erhalten und sogar noch erweitert.

Jetzt ist es beschlossene Sache: Das Gewerbegebiet An der Eiche wird um etwa 2,2 Hektar erweitert. In ihrer jüngsten Sitzung gaben die Körler Gemeindevertreter Grünes Licht zur Änderung des Flächennutzungsplanes und fassten den Satzungsbeschluss zum Bebauungsplan. „Wir sind jetzt an einem Punkt, an dem es genügend Möglichkeiten zur Abgabe von Stellungnahmen gab“, sagte Bürgermeister Mario Gerhold. Bereits im Mai 2022 befanden sich die Planungen für die Gewerbegebietserweiterung mit der Öffentlichen Auslegung und der Beteiligung der Behörden im ersten Verfahrensschritt. Jedoch musste der erste Planungsentwurf noch einmal angepasst werden, weil die Bewirtschaftung der Flächen falsch beschrieben war, erklärte Bürgermeister Mario Gerhold.

Anschließend erfolgte eine Untersuchung der Fläche durch einen Diplombiologen, der über ein Jahr hinweg die Entwicklung und das Vorkommen von Pflanzen- und Tierarten auf der landwirtschaftlichen Fläche dokumentierte. Da es sich um eine biologisch bewirtschaftete Fläche handele, sind die Anforderungen an den naturschutzrechtlichen Ausgleich, den die Gemeinde für den Flächenverbrauch leisten muss, gestiegen. Südwestlich angrenzend an die Erweiterungsfläche soll die vorhandene Streuobstwiese ausgeweitet und ergänzt und eine Verbindung zu „Wilkes Streuobstwiese“ geschaffen werden. Kaufen will die Gemeinde außerdem eine rund 7000 Quadratmeter große Fläche südwestlich der Erweiterungsfläche und diese mit heimischem Saatgut in eine Grünlandfläche umwandeln.

Die Tatsache, dass der Gemeinde für die Schaffung weiterer Gewerbegrundstücke eine landwirtschaftliche Fläche verloren geht, die durch 25-jährige biologische Bewirtschaftung eine hohe Wertigkeit für den Naturschutz aufweist, machte der Gemeindevertretung die Entscheidung für die Erweiterung des Gewerbegebiets deutlich schwerer. „Ja, es ist für uns eine schwierige Entscheidung gewesen“, sagte SPD-Fraktionschef Michael Oetzel. Denn die Einwendungen seien alle gut begründet gewesen. „Aber am Ende hat das Interesse der Gesamtgemeinde schwerer gewogen.“ So argumentierte auch Gemeindevertreter Achim Erbeck für die CDU-Fraktion. Es handele sich um eine Fläche, in die 25 Jahre Herzblut reingesteckt worden sei – daher sei der Einwand des Landwirtes mehr als nachvollziehbar. „Aber wir müssen das Gesamtinteresse der Gemeinde höher bewerten.“ Bei den Einwendungen zur verkehrlichen Situation könne man Lösungen finden. Die Gewerbesteuer sei mittlerweile eine wichtige Einnahmequelle für die Gemeinde, sagte Bürgermeister Mario Gerhold. „Und wir haben leider nicht die Möglichkeit, x-beliebige Flächen für Gewerbe auszuweisen.“ Jenseits der Bahnlinie beginne direkt die Fulda-Aue, das CBI-Gelände bilde in Richtung Melsungen das Ende der Bebauungsgrenze und oberhalb der Berglandhalle lasse die Erschließungssituation auch keine Gewerbeansiedlung zu. Gerade im Hinblick auf die Finanzsituation im Bundeshaushalt seien eigene Einkommensquellen der Kommunen noch einmal wichtiger, sagte auch Gemeindevertreter Bernd Rohleder (SPD). Man könne nicht nur auf Zuschüsse warten, um künftige Projekte zu bewerkstelligen. „Und ja, es tut einem immer weh, wenn man in einem schönen Ort wie Körle landwirtschaftliche Fläche abgeben muss.“

Nach den Erschließungsarbeiten, die nicht vor 2025 starten werden, stehen etwa 17.000 Quadratmeter für Gewerbe zur Verfügung, sagte Mario Gerhold. Er geht derzeit von einer Teilung in vier Grundstücke á rund 4000 Quadratmeter aus. Wie hoch der Quadratmeterpreis ausfallen wird, könne man derzeit noch nicht sagen – jedoch bewege man sich wohl deutlich über den 70 Euro (inkl. Straßenendausbau), die in den Jahren 2018/19 für die Gewerbeflächen im Kitzwinkel fällig waren. Die Kosten für den hohen naturschutzrechtlichen Ausgleich fielen schließlich auch ins Gewicht.

Die Gemeindevertreter fassten die erforderlichen Beschlüsse jeweils einstimmig mit einer Enthaltung.