Titel Logo
Waldecker Nachrichten
Ausgabe 11/2026
Aus dem Rathaus wird berichtet
Zurück zur vorigen Seite
Zurück zur ersten Seite der aktuellen Ausgabe

Aus dem Rathaus wird berichtet

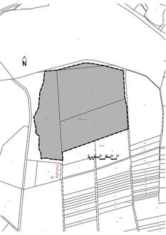
Lageplan Geltungsbereich (unmaßstäblich)

Öffentliches Protokoll

über die 34. Sitzung der Stadtverordnetenversammlung

am Donnerstag, 19.02.2026, Stadthalle Freienhagen

Sitzungsbeginn: 20:01 Uhr

Stadtverordnetenvorsteherin Berthold begrüßt die Anwesenden und stellt die ordnungsgemäße Einladung sowie die Beschlussfähigkeit fest.

Finanzausschussvorsitzender Schanner beantragt analog zu den Ausschusssitzungen die Vertagung des Tagesordnungspunktes 8 „Einleitungs- und Aufstellungsbeschluss für den vorhabenbezogenen Bebauungsplan „PV-FFA Waldeck“

Abstimmungsergebnis über die Vertagung: Zustimmung wurde erteilt

Stadtverordnetenvorsteherin Berthold teilt mit, dass sich das Bauleitverfahren zu TOP 7 geändert habe und der Punkt daher ausgetauscht werden müsse. Sie stellt daher den Antrag, den bisherigen TOP 7 „Bauleitplanung der Nationalparkstadt Waldeck; 1. Änderung des Bebauungsplans Nr. 16 „Freiflächenphotovoltaik Am Reiherbacher Mühlenwege“; Gemarkung Waldeck, vereinfachtes Verfahren nach § 13 Baugesetzbuch (BauGB) zu ersetzen durch folgenden neuen TOP 7: „Bauleitplanung der Nationalparkstadt Waldeck; 1. Änderung des Bebauungsplans Nr. 16 „Freiflächenphotovoltaik Am Reihenbacher Mühlenwege“; Gemarkung Waldeck“

Bürgermeister Havel gibt dazu nähere Erläuterungen.

Abstimmungsergebnis: Zustimmung wurde erteilt

Somit geänderte

TAGESORDNUNG:

1.

Kleine Anfragen

2.

Kenntnisnahme des letzten STVO-Protokolls vom 11.12.2025

3.

Bericht aus dem Magistrat

4.

"Letter of Intent" zur Stärkung und zum Ausbau der interkommunalen Zusammenarbeit der Kommunen Vöhl, Lichtenfels, Edertal und Waldeck

5.

Entwurf der Maßnahmenliste für den Programmantrag 2026 im Programm "Lebendige Zentren" für den Förderstandort "Doppelkern Sachsenhausen-Waldeck"

6.

Verabschiedung Haushaltssatzung und Investitionsplan 2026

7.

Bauleitplanung der Nationalparkstadt Waldeck1. Änderung des Bebauungsplans Nr. 16 "Freiflächenphotovoltaik Am Reiherbacher Mühlenwege", Gemarkung Waldeck

Beratung und Beschlussfassung

a) Aufstellungsbeschluss nach § 2 Abs. 1 BauGB

b) Durchführung der Beteiligung der Öffentlichkeit gemäß § 3 Abs. 1 BauGB und der Beteiligung der Behörden und sonstigen Träger öffentlicher Belange nach § 4 Abs. 1 BauGB

8.

Absichtserklärung zur Flächenentwicklung rund um das Umspannwerk Netze

9.

Verschiedenes

Zu Punkt 1.: Kleine Anfragen

Es liegen keine Kleine Anfragen vor.

Zu Punkt 2.: Kenntnisnahme des letzten STVO-Protokolls vom 11.12.2025

Das Protokoll der Stadtverordnetensitzung vom 11.12.2025 wird zur Kenntnis genommen.

Zu Punkt 3.: Bericht aus dem Magistrat

Bürgermeister Havel berichtet zunächst über verschiedene Presseartikel u. a. zu folgenden Themen:

-

Eingang Förderbescheid für den barrierefreien Zugang zu den Fahrgastschiffen am Edersee

-

Neue Ausstellung im Rathaus „Fotografie verbindet Heimat“

-

Zusammenarbeit zwischen Edertal und Waldeck für eine zukunftsfähige Wasserversorgung

-

Bau eines neuen Funkmastes auf Scheid

-

Auszeichnung der städtischen Kitas als Nationalpark-Kitas

-

Optimierung der städtischen Kläranlagen im Hinblick auf Effizienz, Digitalisierung und Eigenstromerzeugung

-

Glasfaserausbau in Waldeck

-

Nahwärmelösung für den städtischen Bauhof

-

Strom- und Nahwärmenetz in Selbach

-

Rathaussturm am Rosenmontag

-

Eröffnung des Freischießenjahres in Sachsenhausen

-

Stadtjugendfeuerwehrtag in Sachsenhausen

Anschließend gibt er folgenden aktuellen Bautenstandsbericht ab:

- Kläranlage Scheid

Mängelbeseitigungen laufen

- Lebendige Zentren

Projekt Rathaus

- Weitere Freilegungen im Dachgeschoss laufen

- Vorentwurf- bzw. Entwurfsplanungen laufen

Projekt Kindergarten Sachsenhausen

EU-weite Ausschreibung der Planungsleistungen ist in Vorbereitung

- EKVO 2023/2024

Restbefahrungen werden vorbereitet

- Altes Rathaus Freienhagen
Restarbeiten
- DGH Selbach

Innenausbauarbeiten laufen,

Fliesenarbeiten werden durchgeführt

- Freibad Freienhagen, Kiosk Nutzungsoptimierung

Bauarbeiten laufen ab Januar 2026

- Dorferneuerung

DGH Ober-Werbe – Ausschreibung in Vorbereitung

- Kanalsanierungsplan Scheid

Ausführung ab KW 08/26 bis März 2026

- Kanalsanierung Netze Naumburger Straße u. a.

Ausführung Oktober 2025 bis März 2026

Arbeiten ruhen witterungsbedingt

- Erneuerung OD Naumburger Straße

Verwaltungsvereinbarung mit Hessen Mobil abgeschlossen

Grunderwerbsverhandlungen durch HLG

BA 1 mit Rest der freien Strecke L 3215 bis Viadukt in 2026

Ausschreibung inkl. Wasserleitungserneuerung veröffentlicht

- Bauhof

Beantragung für Halle im Außenbereich gestellt

- Quartierskonzept / Energetisches Sanierungsmanagement

Förderanträge gestellt

Zu Punkt 4. "Letter of Intent" zur Stärkung und zum Ausbau der interkommunalen Zusammenarbeit der Kommunen Vöhl, Lichtenfels, Edertal und Waldeck – VL-23/2026

Sachdarstellung:

Die Kommunen Vöhl, Lichtenfels, Edertal und Waldeck stehen – wie viele ländlich geprägte Kommunen – vor wachsenden Herausforderungen. Dazu zählen insbesondere der demografische Wandel, der zunehmende Fachkräftemangel, steigende Anforderungen an Digitalisierung, Nachhaltigkeit und Klimaschutz sowie begrenzte finanzielle und personelle Ressourcen.

Vor diesem Hintergrund haben die vier Kommunen Gespräche aufgenommen mit dem Ziel, ihre bereits bestehende Zusammenarbeit – unter anderem in den Bereichen Digitalisierung und Umsetzung des Onlinezugangsgesetzes – weiter zu vertiefen und strategisch auszubauen.

Als Grundlage für diese vertiefte interkommunale Zusammenarbeit soll ein gemeinsamer Letter of Intent (LOI) verabschiedet werden. Dieser dient als politische Willensbekundung der beteiligten Kommunen, künftig enger, partnerschaftlich und auf Augenhöhe zusammenzuarbeiten. Der LOI begründet ausdrücklich keine rechtlich bindenden Verpflichtungen, sondern schafft einen gemeinsamen Orientierungs- und Handlungsrahmen.

In dem Letter of Intent sollen Zielsetzungen der Zusammenarbeit benannt werden. Konkrete Maßnahmen, Organisationsformen und Kostenregelungen bleiben davon unberührt und sollen – sofern erforderlich – in gesonderten Vereinbarungen und durch entsprechende Gremienbeschlüsse geregelt werden.

Wortmeldungen:

Finanzausschussvorsitzender Schanner und der stellv. Bauausschussvorsitzende Hankel berichten aus den Ausschüssen und teilen die Abstimmungsergebnisse mit.

Bürgermeister Havel gibt nähere Erläuterungen zur Beschlussvorlage.

Die Fraktionsvorsitzenden Schanner, Keller, Hamamiyeh Al-Homssi und Stadtverordneter Baureis geben die Stellungnahmen ihrer Fraktionen ab und befürworten den Beschlussvorschlag.

Beschluss:

Die Nationalparkstadt Waldeck erklärt ihre grundsätzliche Bereitschaft, mit der Stadt Lichtenfels sowie den Gemeinden Edertal und Vöhl eine vertiefte interkommunale Zusammenarbeit (IKZ) aufzubauen.

Ziel ist es, die Region nachhaltig zu stärken und gemeinsame Handlungsfelder zu entwickeln.

Als Absichtserklärung und Grundlage für weitere Gespräche und Beschlüsse soll ein Letter of Intent unterzeichnet werden.

Abstimmungsergebnis: Zustimmung wurde erteilt

Zu Punkt 5. Entwurf der Maßnahmenliste für den Programmantrag 2026 im Programm "Lebendige Zentren" für den Förderstandort "Doppelkern Sachsenhausen-Waldeck" – VL-20/2026

Sachdarstellung:

Die Nationalparkstadt Waldeck wurde mit Mail der WI-Bank vom 04. Dezember 2025 aufgefordert, im Programm „Lebendige Zentren“ für den Förderstandort „Doppelkern Sachsenhausen-Waldeck“ für das Jahr 2026 einen Förderantrag zu stellen.

Dieser Antragsaufforderung kommt die Stadt Waldeck nach. Es wird auf den Entwurf des Programmantrags im Anhang verwiesen.

Unter Berücksichtigung des Bewilligungs- und Planungsstandes sowie mit Blick auf die vom Fördermittelgeber im Zuge der Richtlinienüberarbeitung hervorgehobene Bedeutung von Freiraum- und Klimaschutzmaßnahmen ergibt sich für die Stadt Waldeck folgende Auswahl an Projekten, die mit Hilfe des Programms „Lebendige Zentren“ umgesetzt werden sollen.

Sanierung Rathaus

Die Sanierung des Rathauses ist bereits in der Maßnahmenauswahl des beschlossenen ISEK enthalten. Nach Abstimmung mit dem hessischen Wirtschaftsministerium erfolgt eine Förderung aus dem Programm „Lebendige Zentren“ nur im Zuge einer umfassenden baulichen Sanierung mit Funktionsertüchtigung. Aus Sicht des Fördermittelgebers ist die umfassende Sanierung des Hauses im Zusammenhang mit der Umfeldaufwertung eine Schlüsselmaßnahme im Rahmen des Förderprogramms, ohne die der Standort Waldeck nicht in das Programm Lebendige Zentren aufgenommen worden wäre. Dementsprechend wurde die Maßnahme bereits in den Bewilligungen 2023, 2024 und 2025 positiv beschieden. Mit der vorliegenden Anmeldung werden die noch erforderlichen Restmittel für die Maßnahmenumsetzung angemeldet.

Neubau Kindergarten Sachsenhausen

Für den Neubau der Kindergartens Sachsenhausen wurden in der Bewilligung 2025 der Fördermittelensatz für den Grunderwerb und für Planungskosten genehmigt.

Mit der vorliegenden Anmeldung werden weitere Mittel für Planungsleistungen und eine erste Tranche für Bauleistungen angemeldet. Aufgrund der Veränderungen in der Mittelbereitstellung ist eine frühzeitige Anmeldung von investiven Maßnahmen erforderlich.

Marktplatz 5

Die Sanierung des Objektes ist für die Gestaltung des Ortskerns in Verbindung mit dem neu gestalteten Marktplatz eine wesentliche Aufwertung. Das Haus ist das erste, welches man vom Ortskern wahrnimmt, wenn man die Sachsenhäuser Straße heraufkommt. Die private Sanierungsmaßnahme würde die öffentliche Maßnahme in idealtypischer Weise ergänzen.

Umgestaltung Stadtbalkon Elsterberg

Durch die Umgestaltung des Aussichtspunktes am Elsterberg soll ein Beitrag zur Aufwertung des innerörtlichen Freiraumangebotes sowohl für die Bewohner des Stadtteils als auch für die Besucher erreicht werden.

Anreizförderung und flankierende Unterstützung durch Quartiersarchitektin

Für die laufende Anreizförderung mit dem bestehenden flankierenden Beratungsangebot durch eine Quartiersarchitektin soll eine weitere Tranche an Mitteln zur Fortsetzung der Unterstützung privater Sanierungsmaßnahmen angemeldet werden.

Fördergebietsmanagement

Es werden Mittel für die Fortsetzung des Fördergebietsmanagements durch die

ProjektStadt aus Kassel angemeldet.

Leerstandsmanagement

Nachdem die Stadt Waldeck mit der Bewerbung um ein Leerstandsmanagement für die Gesamtstadt im Rahmen des Programms „Zukunft Innenstadt“ nicht berücksichtigt werden konnte, soll die Leistung im Rahmen der Städtebauförderung mit dem Fokus auf die Fördergebiete in Waldeck und Sachsenhausen zur Anmeldung gebracht werden.

Öffentlichkeitsarbeit

Durch die angemeldeten Mittel werden die Maßnahmen zur Information und Beteiligung der Öffentlichkeit an dem Stadtumbauprozess finanziert.

Netzwerk/Zentrum Nachhaltige Stadtentwicklung in Hessen

Es wird der laufende Beitrag für die Mitgliedschaft im Netzwerk angemeldet.

Wortmeldungen:

Finanzausschussvorsitzender Schanner und der stellv. Fraktionsvorsitzende Hankel berichten aus den Ausschüssen und teilen die Abstimmungsergebnisse mit.

Fraktionsvorsitzender Keller lobt die Vorarbeit von den Mitgliedern der LOPA und dankt ihnen für deren Vorbereitung in mehreren Sitzungen.

Fraktionsvorsitzender Schanner bittet darum, für die beiden anstehenden Anträge im Sommer nochmals eine Bürgerbeteiligung zu initiieren.

Bauausschussvorsitzender Litschel berichtet von der stattgefundenen Ortsbesichtigung des Bauausschusses im Rathaus Sachsenhausen, in der man sich von der Notwendigkeit der Rathaussanierung überzeugt habe.

Die Fraktionsvorsitzenden Keller, Schanner und Germann und Stadtverordneter Litschel geben die Stellungnahmen ihrer Fraktionen ab und befürworten den Beschlussvorschlag.

Beschluss:

Es wird beschlossen, den Programmantrag in der vorliegenden Form anzunehmen und die Verwaltung zu beauftragen, den Programmantrag entsprechend der vorgesehenen Maßnahmen dem Fördermittelgeber vorzulegen.

Abstimmungsergebnis: Zustimmung wurde erteilt

Zu Punkt 6. - Verabschiedung Haushaltssatzung und Investitionsplan 2026 – VL-7/2026

Sachdarstellung:

Nach den Vorberatungen des Haushaltsentwurfes 2026 im Magistrat schließt der Entwurf der Haushaltssatzung 2026 mit folgenden Beträgen ab:

Im Ergebnishaushalt

im ordentlichen Ergebnis

mit dem Gesamtbetrag der Erträge auf

23.859.290,00 EUR

mit dem Gesamtbetrag der Aufwendungen auf

24.050.850,00 EUR

mit einem Saldo von

- 191.560,00 EUR

im außerordentlichen Ergebnis

mit dem Gesamtbetrag der Erträge

500,00 EUR

mit dem Gesamtbetrag der Aufwendungen

0,00 EUR

mit einem Saldo von

500,00 EUR

mit einem Fehlbetrag von

191.060,00 EUR

im Finanzhaushalt

mit dem Saldo aus den Einzahlungen und Auszahlungen

aus laufender Verwaltungstätigkeit auf

1.333.450,00 EUR

und dem Gesamtbetrag der

Einzahlungen aus Investitionstätigkeit auf

2.317.050,00 EUR

Auszahlungen aus Investitionstätigkeit auf

5.964.950,00 EUR

mit einem Saldo von

- 3.647.900,00 EUR

Einzahlungen aus Finanzierungstätigkeit auf

3.647.900,00 EUR

Auszahlungen aus Finanzierungstätigkeit auf

1.670.950,00 EUR

mit einem Saldo von

1.976.950,00 EUR

mit einem Zahlungsmittelfehlbetrag

des Haushaltsjahres von

337.500,00 EUR

festgesetzt.

Finanzielle Auswirkungen:

Gemäß Haushaltsplan

Wortmeldungen:

Finanzausschussvorsitzender Schanner und der stellv. Bauausschussvorsitzende Hankel berichten aus den Ausschüssen.

Für die einzelnen Fraktionen tragen die Fraktionsvorsitzenden Keller, Hamamiyeh Al-Homssi Schanner, Germann und Merhof ihre ausführlichen Haushaltsreden vor. Sie gehen dabei insbe-

sondere auf die aktuelle Haushaltslage und die anstehenden Aufgaben und die erforderlichen Investitionen ein.

Da es die letzte Stadtverordnetensitzung in der laufenden Wahlzeit ist, danken alle dem Bürgermeister, dem Magistrat, der Verwaltung, den Ortsbeiräten und den anderen Fraktionen für die gute und konstruktive Zusammenarbeit und das harmonische Miteinander über die Parteigrenzen hinweg. Ein besonderer Dank gilt der FDP, die nach 55 Jahren ununterbrochener Parlamentsarbeit für die Kommunalwahl keine Kandidatenliste mehr aufgestellt hat. Fraktionsvorsitzender Merhof erläutert dazu die Gründe und dankt allen für das entgegengebrachte Vertrauen.

Stadtverordnetenvorsteherin Berthold dankt allen für die Haushaltsreden und trägt die Änderungsanträge punkteweise vor. Finanzausschussvorsitzender Schanner und der stellv. Bauausschussvorsitzende Hankel teilen die Abstimmungsergebnisse dazu mit.

Die Zusammenfassung der Änderungsanträge und der Abstimmungsergebnisse ist dem Protokoll als Anlage beigefügt.

Im Anschluss verliest Stadtverordnetenvorsteherin Berthold die Haushaltssatzung 2026.

Beschluss:

Die Stadtverordnetenversammlung stimmt der Haushaltssatzung für das Haushaltsjahr 2026 mit Haushaltsplan, aufgeteilt in Ergebnis- und Finanzhaushalt, den Teilhaushalten und dem Vorbericht, dem Stellenplan sowie dem Investitionsplan 2026 sowie der Finanzplanung der Haushaltsjahre bis 2029 zu.

Die Haushaltssatzung für das Haushaltsjahr 2026 mit Haushaltsplan und Anlagen wird beschlossen.

Abstimmungsergebnis: Zustimmung wurde erteilt

Zu Punkt 7. Bauleitplanung der Nationalparkstadt Waldeck1. Änderung des Bebauungsplans Nr. 16 "Freiflächenphotovoltaik Am Reiherbacher Mühlenwege", Gemarkung Waldeck – VL-35/2026

Beratung und Beschlussfassung

a) Aufstellungsbeschluss nach § 2 Abs. 1 BauGB

b) Durchführung der Beteiligung der Öffentlichkeit gemäß § 3 Abs. 1 BauGB und der Beteiligung der Behörden und sonstigen Träger öffentlicher Belange nach § 4 Abs. 1 BauGB

Sachdarstellung:

Anlass und Ziel:

Über eine Änderung des Bebauungsplans soll ermöglicht werden, zukünftig auch Energiespeicher auf der Fläche zuzulassen.

Hierzu ist eine entsprechende Aufnahme unter Art der baulichen Nutzung sowie die Erhöhung des zulässigen Maßes der baulichen Nutzung (max. zulässige Grundfläche) erforderlich.

Erläuterung:

Die Aufstellung des Bebauungsplanes erfolgt im zweistufigen Regelverfahren. Die Bauleitplanung erfordert insofern eine Umweltprüfung im Sinne des § 2 Abs. 4 BauGB, in der die voraussichtlichen, erheblichen Umweltauswirkungen ermittelt und in einem Umweltbericht bewertet werden. Der Umweltbericht ist der Begründungen zum Bebauungsplan beizufügen.

Räumlicher Geltungsbereich:

Der Geltungsbereich umfasst die Flurstücke 2/16 (teilw.), 2/17 und 2/9 von Flur 16 in der Gemarkung Waldeck, vgl. Lageplan Geltungsbereich, siehe oben.

Finanzielle Auswirkungen:

Keine.

Wortmeldungen:

Finanzausschussvorsitzender Schanner und der stellv. Bauausschussvorsitzende Hankel berichten aus den Ausschüssen und teilen die Abstimmungsergebnisse mit.

Bürgermeister Havel gibt nähere Erläuterungen zur Beschlussvorlage.

Über die Unterpunkte a) und b) wird zusammen abgestimmt.

Beschluss:

Zu a) Aufstellungsbeschluss nach § 2 Abs. 1 (BauGB)

Die Stadtverordnetenversammlung der Nationalparkstadt Waldeck beschließt die Aufstellung der 1. Änderung des Bebauungsplans Nr. 16 „Freiflächenphotovoltaik Am Reiherbacher Mühlenwege", Gemarkung Waldeck nach § 2 Abs. 1 BauGB.

Der Beschluss ist öffentlich bekannt zu machen.

Beschluss:

Zu b) Durchführung der Beteiligung der Öffentlichkeit gemäß § 3 Abs. 1 BauGB und der Beteiligung der Behörden und sonstigen Träger öffentlicher Belange nach § 4 Abs. 1 BauGB

Die Stadtverordnetenversammlung der Nationalparkstadt Waldeck beschließt die Durchführung der frühzeitigen Beteiligung der Öffentlichkeit sowie der Behörden und sonstigen Stellen, die Träger öffentlicher Belange sind, nach § 3 Abs. 1 BauGB und § 4 Abs. 1 BauGB.

Der Beschluss ist öffentlich bekannt zu machen.

Es ist darauf hinzuweisen, dass die Vorbereitung und Durchführung von Verfahrensschritten gemäß § 4 b BauGB einem Dritten übertragen worden ist.

Abstimmungsergebnis: Zustimmung wurde erteilt

Zu Punkt 8. Absichtserklärung zur Flächenentwicklung rund um das Umspannwerk Netze – VL-38/2026

Sachdarstellung:

Mit dem Bundesprojekt der Tennet „UW Netze“ kommt ein großes Infrastrukturprojekt der Energiewende in die Region Waldeck. Dieses ist als Bundesmaßnahme als Projekt im übergeordneten öffentlichen Interesse deklariert. Laut Tennet wird weiterhin der Standort 3.5 MOD favorisiert.

Die Stadt Waldeck steht somit vor wachsenden Anforderungen im Bereich der Energie- und Infrastrukturentwicklung. Netzausbau, Speichertechnologien, erneuerbare Energieerzeugung sowie die kommunale Wärmeplanung greifen zunehmend ineinander und erfordern eine frühzeitige, integrierte und kommunal gesteuerte Betrachtung.

Mit diesem Beschluss schafft die Stadt einen klaren politischen Handlungs- und Orientierungsrahmen, um ihre Planungshoheit zu sichern, Entwicklungen geordnet zu begleiten und gleichzeitig die örtliche Verträglichkeit sowie die Interessen der betroffenen Ortsteile zu wahren.

Die Einbindung der kommunalen Wärmeplanung ermöglicht es, zukünftige Energie- und Wärmebedarfe strategisch mitzudenken, Synergien zu nutzen und langfristig tragfähige Lösungen für den ländlichen Raum zu entwickeln. Gleichzeitig wird sichergestellt, dass vorbereitete Flächen genutzt und zusätzliche Belastungen für Landschaft, Landwirtschaft und Ortslagen vermieden werden.

Der Beschluss stellt keine Vorfestlegung für Einzelprojekte dar, sondern dient der politischen Leitplanke für weitere Entscheidungen der städtischen Gremien.

Finanzielle Auswirkungen:

Der Beschluss hat keine unmittelbaren finanziellen Auswirkungen.

Auswirkungen auf Umwelt, Klima und Nachhaltigkeit:

Positiv durch Flächenschonung, Umnutzung bestehender Strukturen, koordinierte Energie- und Wärmeplanung sowie regionale Wertschöpfung.

Wortmeldungen:

Bürgermeister Havel gibt umfangreiche Erläuterungen zur Beschlussvorlage.

Die Fraktionsvorsitzenden Schanner, Keller, Hamamiyeh Al-Homssi und Germann geben die Stellungnahmen ihrer Fraktionen ab und befürworten den Beschlussvorschlag.

Beschluss:

Die Stadtverordnetenversammlung der Nationalparkstadt Waldeck beschließt:

  1. Die Nationalparkstadt Waldeck bekennt sich ausdrücklich zur aktiven Wahrnehmung ihrer kommunalen Selbstverwaltung, insbesondere im Rahmen der Bauleitplanung, der räumlichen Entwicklung sowie der kommunalen Wärmeplanung.

  2. Vorhaben der Energie-, Netz- und Infrastrukturentwicklung sollen geordnet, vorausschauend und demokratisch legitimiert gesteuert werden. Dabei sind die örtliche Verträglichkeit, die Belange der betroffenen Ortsteile sowie eine möglichst hohe lokale und regionale Wertschöpfung prioritär zu berücksichtigen.

  3. Die kommunale Wärmeplanung wird als strategischer Orientierungsrahmen herangezogen, um Energieerzeugung, Speicherlösungen, Netzinfrastruktur und zukünftige Wärmebedarfe sinnvoll aufeinander abzustimmen und langfristige Entwicklungsperspektiven für die Stadt zu sichern.

  4. Die Stadt verfolgt dabei insbesondere einen Ansatz, der

    • vorbereitete und bereits vorbelastete Flächen nutzt,

    • zusätzlichen Flächenverbrauch, zusätzliche Versiegelung sowie den Verlust landwirtschaftlicher Nutzflächen möglichst vermeidet,

    • die Umnutzung und Weiterentwicklung bestehender Strukturen priorisiert und

    • auf verlässliche, möglichst regionale und lokale Projektpartnerschaften setzt.

  5. Der Magistrat wird beauftragt, diesen Orientierungsrahmen bei laufenden und zukünftigen Verfahren anzuwenden und kooperative Lösungen mit Netzbetreibern, Fachbehörden und weiteren Beteiligten im Sinne der Stadt Waldeck zu verfolgen.

Abstimmungsergebnis: Zustimmung wurde erteilt

Zu Punkt 9.: Verschiedenes

Edersee Marketing GmbH

Stadtverordneter Keller berichtet über die kürzlich stattgefundene Aufsichtsratssitzung der Edersee Marketing GmbH. Eine Machbarkeitsstudie sei ausgeschrieben und in der letzten Sitzung vergeben worden. Zudem seien erste Maßnahmenideen vorgestellt worden, die in der nächsten Sitzung beraten würden.

Telefonanschluss DGH Ober-Werbe

Stadtverordneter Litschel dankt für die Umsetzung des Telefonanschlusses im DGH Alraft.

Schlusswort Stadtverordnetenvorsteherin

In ihrem Schlusswort dankt Stadtverordnetenvorsteherin Berthold allen Mandatsträgern für das gemeinsame Ringen um sachliche Lösungen und den respektvollen Umgang in der vergangenen Wahlperiode. Des Weiteren spricht sie ihren Dank aus an den Bürgermeister, die Mitarbeiter der Stadt Waldeck und auch an ihren Vorgänger im Amt, Herrn Werner Pilger, sowie allen ausscheidenden Mitstreitern, vor allem den Mitgliedern der FDP-Fraktion in Magistrat und Stadtverordnetenversammlung.

Sie wünscht allen antretenden Kandidaten eine fairen und sachlichen Wahlkampf sowie politischen und persönlichen Erfolg.

Abschließend wirbt sie eindringlich dafür, das persönliche Wahlrecht aktiv zu nutzen.

Am Ende der Sitzung teilt Stadtverordnetenvorsteherin Berthold mit, dass die konstuierende Sitzung des neu gewählten Parlamentes am 16. April 2026 stattfinden wird.

Sitzungsende: 21:56 Uhr
34513 Waldeck, 10.03.2026
gez. Anni Maria Berthold, Stadtverordnetenvorsteherin
gez. Dagmar Lohaus, Schriftführerin