Titel Logo
Waldecker Nachrichten
Ausgabe 30/2024
Amtliche Bekanntmachungen
Zurück zur vorigen Seite
Zurück zur ersten Seite der aktuellen Ausgabe

Amtliche Bekanntmachung der Nationalparkstadt Waldeck

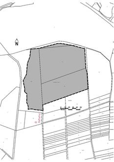
Geltungsbereich des Bebauungsplans Nr. 16 „Freiflächenphotovoltaik Am Reiherbacher Mühlenwege", Gemarkung Waldeck. Der Geltungsbereich umfasst die Flurstücke 2/13 (teilw.), 2/16 (teilw.), 2/17 (teilw.) und 2/9 von Flur 16 in der Gemarkung Waldeck

Bebauungsplan Nr. 16 „Freiflächenphotovoltaik Am Reiherbacher Mühlenwege ", Gemarkung Waldeck

Hier: Bekanntmachung der erneuten, verkürzten und eingeschränkten Beteiligung der Öffentlichkeit gemäß § 3 Abs. 2 BauGB i.V.m. § 4a Abs. 3 BauGB in der Zeit vom 29.07.2024 bis einschließlich 13.08.2024
I Anlass und Ziel

Die Stadt Waldeck beabsichtigt, die bauleitplanerischen Voraussetzungen zu schaffen, um einem privaten Vorhabenträger auf ca. 20 ha die Nutzung von bislang landwirtschaftlich genutzten Flächen für eine Freiflächenphotovoltaikanlage zu ermöglichen und damit zur Steigerung des Anteils der erneuerbaren Energien an der Stromversorgung beizutragen.

Geplant ist eine Nutzung für Freiflächenphotovoltaik für eine Zeitspanne von 30 Jahren.

Als Folgenutzung soll die landwirtschaftliche Nutzung gem. § 9 Abs. 1 Nr. 18a BauGB festgesetzt werden.

Die verkehrliche Erschließung des Geltungsbereiches kann über bestehende Wirtschaftswege erfolgen.

Mit der Errichtung und dem Betrieb der Freiflächen-Photovoltaikanlage soll eine nachhaltige Entwicklung, die die wirtschaftlichen, umweltspezifischen und vor allem die klimaverändernden Anforderungen miteinander in Einklang bringt, gewährleistet werden (vgl. § 1 Abs. 5 BauGB).

Auf Grund nicht gegebener Flächenverfügbarkeit wurde die vorgezogene Ausgleichsmaßnahme zum Artenschutz („CEF-Maßnahme“, vertraglich gesichert) geändert.

II Bekanntmachung der öffentlichen Auslegung des Planentwurfs mit Begründung gemäß § 3 Abs. 2 BauGB

Nach § 4a Abs. 3 BauGB erfolgt auf Grund der geänderten Planung der Artenschutzmaßnahmen, welche auch eine Teilkompensation der Eingriffe darstellen, eine erneute, verkürzte Beteiligung der Öffentlichkeit. Es wird bestimmt, dass gem. § 4a Abs. 3 BauGB Gelegenheit zur Stellungnahme ausschließlich zu den geänderten oder ergänzten Teilen und ihren möglichen Auswirkungen gegeben wird.

Der 2. Entwurf des Bebauungsplans Nr. 16, bestehend aus der Planzeichnung mit den textlichen Festsetzungen und der Begründung samt Umweltbericht kann in der Zeit vom 29.07.2024 bis einschließlich 13.08.2024 auf der Internetseite der Stadt Waldeck (https://www.waldeck-stadt.de/) unter der Rubrik ‚Bauen & Planen — Aktuelle Bauleitplanverfahren‘ eingesehen und auch heruntergeladen werden. Die Planunterlagen liegen als zusätzliches Angebot im o. g. Zeitraum (sofern auf die genannten Tage kein gesetzlicher Feiertag fällt) beim Magistrat der Nationalparkstadt Waldeck (Stadtverwaltung, Rathaus), Erdgeschoss, Bauamt, Ansprechpartner: Herr Tepel, Am Rathaus 1, 34513 Waldeck, während der Dienststunden

Montag - Freitag

07:00 Uhr - 12:00 Uhr

Montag - Dienstag

13:00 Uhr - 15:00 Uhr

Donnerstag

13:00 Uhr - 18:00 Uhr

oder nach Vereinbarung zu jedermanns Einsicht öffentlich aus.

Während des o.g. Zeitraumes können Stellungnahmen zu den geänderten Teilen in elektronischer Form an stadt@waldeck.de oder alternativ schriftlich oder mündlich zur Niederschrift beim Magistrat der Nationalparkstadt Waldeck (Stadtverwaltung), Bauamt, Am Rathaus 1, 34513 Waldeck oder vorgebracht werden.

Da das Ergebnis der Behandlung der Stellungnahmen mitgeteilt wird, ist die Angabe der Anschrift des Verfassers erforderlich.

Im Zusammenhang mit dem Datenschutz weisen wir ausdrücklich darauf hin, dass ein Bebauungsplanverfahren ein öffentliches Verfahren ist und daher in der Regel alle dazu eingehenden Stellungnahmen in öffentlichen Sitzungen beraten und entschieden werden, sofern sich nicht aus der Art der Einwände oder der betroffenen Personen ausdrückliche oder offensichtliche Einschränkungen ergeben. Soll eine Stellungnahme nur anonym behandelt werden, ist dies auf derselben eindeutig zu vermerken.

Auch Kinder und Jugendliche sind Teil der Öffentlichkeit.

III Hinweise

Gem. § 4a Abs. 4 BauGB wird darauf hingewiesen, dass der Inhalt dieser ortsüblichen Bekanntmachung nach § 3 Abs. 2 Satz 2 BauGB auch auf der Internetseite der Stadt Waldeck unter der Rubrik ‘Presse — Amtliche Bekanntmachungen‘ öffentlich bekannt gemacht wird.

Es wird zudem darauf hingewiesen, dass nicht fristgerecht abgegebene Stellungnahmen bei der Beschlussfassung über den Bebauungsplan und die örtlichen Bauvorschriften nach § 3 Abs. 2 BauGB und § 4a Abs. 6 BauGB unberücksichtigt bleiben können. Den Beteiligten wird nach Prüfung der fristgerecht vorgebrachten Anregungen das Ergebnis der Entscheidung mitgeteilt. Es wird des Weiteren darauf hingewiesen, dass die Vorbereitung und Durchführung von Verfahrensschritten nach §§ 2a bis 4a BauGB einem Dritten (Planungsbüro) übertragen wurde.

Hinweis zur 9. Änderung des Flächennutzungsplanes: Es wird darauf hingewiesen, dass eine Vereinigung im Sinne des § 4 Absatz 3 Satz 1 Nummer 2 des Umwelt-Rechtsbehelfsgesetzes in einem Rechtsbehelfsverfahren nach § 7 Absatz 2 des Umwelt-Rechtsbehelfsgesetzes gemäß § 7 Absatz 3 Satz 1 des Umwelt-Rechtsbehelfsgesetzes mit allen Einwendungen ausgeschlossen ist, die sie im Rahmen der Veröffentlichungsfrist nicht oder nicht rechtzeitig geltend gemacht hat, aber hätte geltend machen können.

IV. Umweltbezogene Informationen

Zum Bebauungsplan Nr. 16 „Freiflächenphotovoltaik Am Reiherbacher Mühlenwege“, Gemarkung Waldeck sind folgende umweltbezogenen Informationen verfügbar und abrufbar.

1. Begründung mit Umweltbericht Wesentliche Inhalte der Umweltberichte sind:

a)

Bestandsaufnahme der einschlägigen Aspekte des derzeitigen Umweltzustandes

b)

Prognose über die Entwicklung des Umweltzustandes bei Durchführung der Planung und bei Nichtdurchführung der Planung

c)

Prüfung der Maßnahmen zur Vermeidung und Verringerung der nachteiligen Auswirkungen

d)

Prüfung anderweitiger Planungsmöglichkeiten

Der Umweltbericht beinhaltet die verfügbaren umweltrelevanten Informationen zu den in § 1 Abs. 6 Nr. 7 BauGB aufgeführten Schutzgütern.

Eine Beschreibung und Bewertung einschließlich der Beurteilung der Eingriffswirkungen durch das Planungsvorhaben erfolgt bezüglich der nachfolgenden Schutzgüter:

  • Schutzgut Fläche: Flächenverbrauch (landwirtschaftlich genutzte Fläche), Rückbauverpflichtung nach Ende der Nutzungszeit für Photovoltaik
  • Schutzgut Boden: Überdachung durch Module, Veränderung Bodenwasserhaushalt, Verlust von Bodenfunktionen durch kleinflächige Versiegelung mit baulichen Anlagen, Hinweis auf Bodendenkmäler: notwendige Baubeobachtung
  • Schutzgut Wasser: keine negativen Auswirkungen
  • Schutzgut Klima/Luft: Veränderung der kleinklimatischen Situation durch Verschattung unter den Modulen, Reduzierung Kaltluftproduktion
  • Schutzgut Pflanzen/Tiere/biologische Vielfalt: Avifauna: Betroffenheit Feldvogel- bzw. Offenlandarten, Vermeidungs- und CEF-Maßnahmen erforderlich

Gemäß artenschutzrechtlicher Einschätzung (Cloos, T., 25.08.2022) kann die Frage nach dem Eintreffen der Verbotstatbestände nach § 44 Abs. 1 BNatSchG für alle geprüften Arten/Artengruppen ausgeschlossen werden, sofern die im Gutachten genannten Maßnahmen umgesetzt werden (Abstand zu Gehölzen, je nach Bauzeit ev. Vergrämungsmaßnahmen,, Ausweichfläche als CEF-Maßnahme). Eine Prüfung der Ausnahmevorrausetzungen gemäß § 45 Abs. 7 BNatSchG ist aus diesem Grund nicht notwendig.

  • Schutzgut Landschaftsbild/Erholung: Im Nahbereich abgeschwächte Beeinträchtigung des Landschaftsbildes, Wegeverbindungen bleiben erhalten
  • Schutzgut Mensch / Bevölkerung: Verlust von landwirtschaftlich genutzter Fläche, geringe Auswirkung auf Erholungsnutzung, keine Blendwirkungen, kein Eingriff in Schutzgut Wohnen
  • Schutzgut Kultur- und Sachgüter: Es ist mit dem Auftreten von Bodendenkmälern zu rechnen (mittelalterliche Wüstung), Baubeobachtung erforderlich
  • Wechselwirkungen zwischen den Schutzgütern: Wechselwirkungen bestehen insbesondere zwischen den Schutzgütern Landschaftsbild – Mensch/Erholung, Boden – Wasser und Biotope – Tiere, Pflanzen. Eine besondere Bedeutung wird der Beeinflussung des Schutzgutes Boden zugemessen, da Wechselwirkungen mit fast allen anderen Schutzgütern bestehen.
  • Kumulative Wirkungen: keine

Der Umweltbericht beinhaltet zudem Maßnahmen zur Vermeidung und Minimierung von Beeinträchtigungen, Ausgleichsbedarf, Maßnahmen zur Berücksichtigung des Bodenschutzes, faunistische bzw. artenschutzrechtliche Beurteilung, CEF-Maßnahmen (Anlage Buntbrache).

2. Umweltrelevante Informationen aus den Stellungnahmen von Behörden und sonstigen Trägern öffentlicher Belange sowie der Öffentlichkeit zu folgenden Themengebieten:

  • Stellungnahme des BUND Landesverband Hessen e. V. über den Kreisverband bzgl. der Konkretisierung der CEF-Maßnahmen, Art der Grünlandnutzung, Quantifizierung von Wegeflächen, max. Flächen Modulbereiche, Forderung Festlegung lichter Mindesthöhe der Module, Empfehlung Anlage Heckenkörper an Ost- und Südgrenze
  • Stellungnahme des Forstamtes Vöhl zum Wirkungsbereich des Waldes / erhöhten Anforderungen an die Verkehrssicherheit, Regelungsbedarf Haftung im Schadensfall und Kontrolle Verkehrssicherheit, Waldabstandsempfehlung und Rücksichtnahmeerfordernis in Bezug auf Waldboden und Baumbestand bei Baumaßnahmen
  • Stellungnahme des Landkreises Waldeck-Frankenberg, FD Wasser- und Bodenschutz mit Anregung Mindestreihenabstände der Modulreihen festzusetzen Anregung bodenkundlicher Baubegleitung
  • Stellungnahme des Landkreises Waldeck-Frankenberg, Untere Naturschutzbehörde zur Einschätzung des Kompensationsbedarfes, Anregung den bestehenden Gehölzbereich zu verlängern, erforderlichem Umfang von CEF-Maßnahmen, Modulreihenabständen, Anregung randlicher Eingrünung, Erfordernis städtebaulicher Vertrag zur Sicherung von CEF-Maßnahmen, Anregung, Festsetzung der Hecken mit T-Linie, Bewertung der Anzulegenden Buntbrach nach Hessischer Kompensationsverordnung
  • Stellungnahme des Landkreises Waldeck-Frankenberg, Fachdienst Landwirtschaft zur Bedeutung der Flächen für die landwirtschaftliche Nutzung,
  • Stellungnahme des Kreisbauernverbandes zur Bedeutung der Flächen für die landwirtschaftliche Nutzung,
  • Stellungnahme des Landesamtes für Denkmalpflege mit Hinweis auf möglicherweise betroffene Bodendenkmäler (mittelalterliche Wüstung) und erforderliche Baubegleitung
  • Stellungnahme des Regierungspräsidiums Kassel, Obere Naturschutzbehörde mit Anregung zur Anwendung der Hess. Kompensationsverordnung zur Bewertung naturschutzrechtlicher Eingriffe, Empfehlung eines ökologischen Pflegeplans mit Pflegezielen im Sinne der Förderung der Biodiversität, Eingrünung der Fläche nach Westen, Abstand zu Feldgehölzen, Präzisierung der CEF-Maßnahme, Ausführung der Module (Größe, Abstände der Reihen, Abstand zum Boden
  • Stellungnahme des Regierungspräsidiums Kassel, Landwirtschaft zur Bedeutung der Fläche für die Landwirtschaft, Folgenutzung, Alternativenprüfung, Wertminderung der Fläche
3. Weitere Pläne und Gutachten mit umweltbezogenen Informationen, die in die Bauleitplanung eingeflossen sind:

8.2 Obst & Hamm GmbH (08.09.2023) Blendgutachten Prüfberichtsnummer: 23K5323-PV-BG-Waldeck-R00-JBS_LBE-2023: Auf der Bundesstraße B485 und der Landstraße L3388 sind keine Reflexionen an den Modulen der Photovoltaikanlage Waldeck zu erwarten.

Waldeck, den 23.07.2024
Der Magistrat der Stadt Waldeck
gez. Jürgen Vollbracht, Bürgermeister