Titel Logo
Rund um die Saarschleife Gemeinde Mettlach
Ausgabe 14/2024
Amtliche Bekanntmachungen
Zurück zur vorigen Seite
Zurück zur ersten Seite der aktuellen Ausgabe

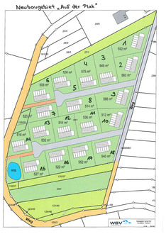
Verkauf von Gemeindebaustellen

im Ortsteil Saarhölzbach, Neubaugebiet „Auf der Plak“

- Kaufinteressenten mögen sich melden -

Es ist beabsichtigt im o.g. Neubaugebiet max. 18 Baustellen zum Preis von 130 €/qm zu veräußern. Die Ermittlung der endgültigen Grundstücksgröße erfolgt mit der Schluss-Vermessung.

Wer Interesse am Kauf eins dort gelegenen Baugrundstücks bekunden möchte, wird gebeten sich bei der Gemeinde Mettlach, Freiherr-vom-Stein-Straße 64, 66693 Mettlach, oder unter der E-Mail Adresse liegenschaften@mettlach.de zu bewerben. Die Bewerbungsunterlagen können unter www.mettlach.de/auf-der-plak heruntergeladen werden.

Weitere Informationen erteilt das Liegenschaftsamt der Gemeinde Mettlach, Tel. 06864-83-19.

Zwecks Aktualisierung der vorliegenden Kaufinteressenten, die bereits ihr Interesse bekundet haben, werden diese gebeten, sich nochmals zu melden.

Mettlach, 25.03.2024

Der Bürgermeister

Daniel Kiefer