Titel Logo
Rund um die Saarschleife Gemeinde Mettlach
Ausgabe 4/2024
Veranstaltungen "Rund um die Saarschleife"
Zurück zur vorigen Seite
Zurück zur ersten Seite der aktuellen Ausgabe

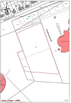
Hotelneubau in Orscholz verzögert sich weiter

Bereits im Jahr 2017 wurde auf Initiative von Bürgermeister Daniel Kiefer ein Interessenbekundungsverfahren zur Findung eines Investors und Betreibers für ein dringend benötigtes Hotel in Orscholz initiiert. Hatte man sich damals noch auf einen Standort in unmittelbarer Nähe des Cloef-Atriums konzentriert, wurde dieser aus städtebaulichen Gesichtspunkten nicht weiterverfolgt und auf die Fläche oberhalb des Gesundheitszentrums Saarschleife und Kurpark verlagert. War man dann im zweiten Verfahren froh, mit dem Betreiber eines Glamping-Resorts aus dem Saarland in Verbindung mit einem Naturhotel, einen erfahrenen Protagonisten gefunden zu haben, hatte dieser aber sodann aus Umstrukturierungsgründen im Jahr 2020 sich vom Projekt verabschiedet, sodass ein drittes Interessenbekundungsverfahren initiiert werden musste. Dieses brachte dann im Jahr 2021 einen neuen lokalen Investor sowie ebenfalls eine lokale Betreibergesellschaft hervor, die auf der ca. 24.000 qm großen Fläche ein Hotel-Garni mit Appartementhäusern an einem künstlichen Natursee sowie einen Wohnmobilstellplatz geplant hatten. Durch die Auswirkungen der Corona-Pandemie und des auch damit teils verbundenen massiven Fachkräftemangels, hat nun aber auch dieser Interessent im Dezember vergangenen Jahres leider Abstand vom Projekt genommen.

Das Sparkassen-Tourismusbarometer 2023 hat aber wiederum gezeigt, dass der Tourismus im Grünen-Kreis weiter im Aufwärtstrend ist, wir aber im Bereich der Übernachtungszahlen anderen Regionen hinterherhinken.

Aus diesem Grund hat der Hauptausschuss auf Vorschlag von Bürgermeister Daniel Kiefer beschlossen, professionelle Hilfe im Bereich der Hotelentwicklung zu akquirieren, um eine erneute Ausschreibung für ein Hotel vorzubereiten und anschließend durch deren bestehende Kontakte die Betreibersuche auch durchzuführen.

Hierzu Bürgermeister Daniel Kiefer: „Die Gemeinde Mettlach ist der touristische Hotspot des Saarlandes. Hierzu gehört natürlich auch eine ausreichende Ausstattung an Übernachtungsmöglichkeiten, weshalb die Neuansiedlung eines Hotels dringend notwendig ist, um unsere Stellung auch saarlandweit nochmals herauszustellen. Ich würde mich indes aber auch freuen, wenn wir auch weitere private Zimmeranbieter finden würden, die sich gerne jederzeit an unsere Saarschleife-Touristik im Cloef-Atrium wenden können.“