Titel Logo
Primsbote Gemeinde Nalbach
Ausgabe 3/2026
Amtl. Bekanntmachungen
Zurück zur vorigen Seite
Zurück zur ersten Seite der aktuellen Ausgabe

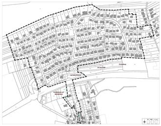
Bekanntmachung Aufhebung der Bebauungspläne: „Greifelsberg 1. BA“, „Greifelsberg 2. BA“, „Greifelsberg 3. BA“, „Greifelsberg 5. BA“, „Greifelsberg 6. BA“ sowie „Greifelsberg 7. BA“

„Greifelsberg 1. BA“, „Greifelsberg 2. BA“, „Greifelsberg 3. BA“, „Greifelsberg 5. BA“, „Greifelsberg 6. BA“ sowie „Greifelsberg 7. BA“

Der Rat der Gemeinde Nalbach hat gemäß § 10 Abs. 1 Baugesetzbuch (BauGB) in der aktuell gültigen Fassung in seiner Sitzung am 18.12.2025 die Aufhebung der Bebauungspläne „Greifelsberg 1. BA“, „Greifelsberg 2. BA“, „Greifelsberg 3. BA“, „Greifelsberg 5. BA“, „Greifelsberg 6. BA“ sowie „Greifelsberg 7. BA“ als Satzung beschlossen.

Dieser Beschluss wird hiermit gem. § 10 Abs. 3 BauGB ortsüblich bekannt gemacht.

Mit dieser Bekanntmachung tritt die Aufhebung in Kraft.

Die Aufhebung der Bebauungspläne: „Greifelsberg 1. BA“, „Greifelsberg 2. BA“, „Greifelsberg 3. BA“, „Greifelsberg 5. BA“, „Greifelsberg 6. BA“ sowie „Greifelsberg 7. BA“ kann im Rathaus der Gemeinde Nalbach, Rathausplatz 1, 66809 Nalbach, Zimmer 1.03, während der allgemeinen Öffnungszeiten eingesehen werden, über den Inhalt wird auf Verlangen Auskunft gegeben.

Gemäß § 44 Abs. 3 Satz 1 und 2 und Abs. 4 BauGB wird darauf hingewiesen, dass ein Entschädigungsberechtigter Entschädigung verlangen kann, wenn die in den §§ 39-42 Baugesetzbuch bezeichneten Vermögensnachteile durch die Aufhebung dieser Bebauungspläne eingetreten sind. Er kann die Fälligkeit dieses Anspruchs dadurch herbeiführen, dass er die Leistung der Entschädigung schriftlich bei dem Entschädigungspflichtigen beantragt. Ein Entschädigungsanspruch erlischt, wenn nicht innerhalb von 3 Jahren nach Ablauf des Kalenderjahres, in dem die oben bezeichneten Vermögensnachteile eingetreten sind, die Fälligkeit des Anspruchs herbeigeführt wird.

Gemäß § 215 Baugesetzbuch werden Verletzungen der in § 214 Baugesetzbuch bezeichneten Verfahrens- und Formvorschriften, der Vorschriften über das Verhältnis des Bebauungsplans und des Flächennutzungsplans und Mängel der Abwägung unbeachtlich, wenn sie nicht innerhalb eines Jahres seit Bekanntmachung dieser Satzung schriftlich gegenüber der Gemeinde unter Darlegung des die Verletzung begründenden Sachverhalts geltend gemacht worden sind.

Es wird weiter darauf hingewiesen, dass die Aufhebung der Bebauungspläne gem. § 12 Abs. 6 KSVG im Fall einer Verletzung von Verfahrens- oder Formvorschriften des Kommunalselbstverwaltungsgesetzes (KSVG) ein Jahr nach der öffentlichen Bekanntmachung als von Anfang an gültig zustande gekommen gilt, sofern nicht vor Ablauf der Frist der Bürgermeister dem Beschluss widersprochen oder die Kommunalaufsichtsbehörde den Beschluss beanstandet hat oder der Verfahrens- oder Formmangel gegenüber der Gemeinde unter Bezeichnung der Tatsache, die den Mangel ergibt, schriftlich gerügt worden ist.

Übersichtskarte mit dem Geltungsbereich des Bebauungsplans, genordet, ohne Maßstab

Nalbach, den 08. Januar 2025
Der Bürgermeister
Jörg Laub