Titel Logo
Primsbote Gemeinde Nalbach
Ausgabe 38/2025
Amtl. Bekanntmachungen
Zurück zur vorigen Seite
Zurück zur ersten Seite der aktuellen Ausgabe

Bekanntmachung

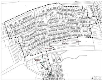
Aufhebung der Bebauungspläne „Greifelsberg 1. BA“, „Greifelsberg 2. BA“, „Greifelsberg 3.

BA“, „Greifelsberg 5. BA“, „Greifelsberg 6. BA“ sowie „Greifelsberg 7. BA“

hier: Bekanntmachung Aufstellungsbeschluss und Beteiligung der Öffentlichkeit (Öffentliche Auslegung)

Der Rat der Gemeinde Nalbach hat in seiner Sitzung am 28.08.2025 gem. § 1 Abs. 3 und § 2 Abs. 1 des Baugesetzbuches in der derzeit gültigen Fassung die Aufhebung der Bebauungspläne „Greifelsberg 1. BA“, „Greifelsberg 2. BA“, „Greifelsberg 3. BA“, „Greifelsberg 5. BA“, „Greifelsberg 6. BA“ sowie „Greifelsberg 7. BA“ gemäß § 13a BauGB ohne Umweltbericht und ohne Durchführung einer Umweltprüfung nach § 2 Abs. 4 BauGB beschlossen.

Der Aufstellungsbeschluss der o.g. Bebauungspläne wird hiermit gem. § 2 Abs. 1 BauGB öffentlich bekannt gemacht.

Mit den Bebauungsplänen „Greifelsberg“ wurden die planungsrechtlichen Voraussetzungen zur Entwicklung eines größeren, zusammenhängenden Wohngebietes geschaffen. In den vergangenen Jahrzehnten wurden insgesamt 7 Bauabschnitte realisiert. Die Entwicklung des Wohngebietes ist inzwischen abgeschlossen, womit auch das Planungsziel der verschiedenen Bebauungspläne erreicht wurde. Die städtebauliche Ordnung kann nun auch ohne Bebauungsplan gewährleistet werden. Das Planungserfordernis für die Bebauungspläne ist damit nicht mehr gegeben.

Lediglich die 4. Änderung wurde nicht rechtskräftig und braucht daher folglich auch nicht aufgehoben zu werden.

Das Gebiet ist baulich so vorgeprägt, dass eine Beurteilung von zukünftigen Bauvorhaben im Plangebiet nach § 34 BauGB vorgenommen werden kann. Dabei ist die gemeindliche Planungsabsicht, welche sich

aus dem Flächennutzungsplan ergibt, das Plangebiet für die Wohnnutzung zu entwickeln, auch bei einer Beurteilung nach § 34 gegeben.

Der Rat der Gemeinde Nalbach hat in gleicher Sitzung (28.08.2025) den Entwurf der Aufhebung der o.g. Bebauungspläne angenommen und die Öffentliche Auslegung beschlossen.

Da keine frühzeitige Beteiligung der Öffentlichkeit stattfindet, kann sich die Öffentlichkeit über die allgemeinen Ziele und Zwecke sowie die wesentlichen Auswirkungen der Planung im Rahmen der öffentlichen Auslegung informieren und zur Planung äußern.

Gemäß § 3 Abs. 2 BauGB, in der Fassung der Bekanntmachung vom 03. November 2017 (BGBl. I S.3634), unter Berücksichtigung der aktuell gültigen Änderungen, wird hiermit öffentlich bekannt gemacht, dass der Entwurf des Bebauungsplanes, bestehend aus der Planzeichnung (Teil A), dem Textteil (Teil B) sowie der Begründung in der Zeit

von Montag, 22.09.2025 bis einschließlich Freitag, 24.10.2025

auf der Homepage der Gemeinde Nalbach unter www.nalbach.de veröffentlicht und zur Ansicht und zum Herunterladen bereitgehalten wird. Der Inhalt der Bekanntmachung ist ebenfalls eingestellt.

Die oben genannten Unterlagen können während des genannten Zeitraums zusätzlich im Rathaus der Gemeinde Nalbach, Rathausplatz 1, 66809 Nalbach, Zimmer 1.03 zu jedermanns Einsicht eingesehen

werden. Die allgemeinen Öffnungszeiten sind wie folgt: Mo, Di und Do von 08:30 bis 12:30 Uhr und von 13:30 bis 16:00 Uhr, Mi und Fr von 08:30 bis 12:30 Uhr.

Der Inhalt der ortsüblichen Bekanntmachung nach § 3 Abs. 2 Satz 4 BauGB und die nach § 3 Abs. 2 Satz 1 BauGB auszulegenden Unterlagen sind zusätzlich über das zentrale Internetportal des Landes (https://www.uvp-verbund.de/kartendienste) elektronisch abrufbar.

Während der zuvor genannten Frist können von jedermann Stellungnahmen elektronisch per Mail an die E-Mail-Adresse bauamt@nalbach.de, bei Bedarf auch schriftlich oder zur Niederschrift vorgebracht werden. Nicht fristgerecht vorgebrachte Stellungnahmen können bei der Beschlussfassung über den Bebauungsplan unberücksichtigt bleiben.

Die Verarbeitung personenbezogener Daten erfolgt auf Grundlage des § 3 BauGB in Verbindung mit Art.

6 Abs. 1 Buchst. e DSGVO und dem Saarländisches Datenschutzgesetz. Sofern Sie ihre Stellungnahme ohne Absenderangaben abgeben, erhalten Sie keine Mitteilung über das Ergebnis der Prüfung. Weitere Informationen entnehmen Sie bitte dem Formblatt: Informationspflichten bei der Erhebung von Daten im Rahmen der Öffentlichkeitsbeteiligung nach BauGB (Art. 13 DSGVO), welches mit ausliegt.

Nalbach, den 09.09.2025
Der Bürgermeister
Peter Lehnert