Titel Logo
Namborner Nachrichten
Ausgabe 43/2023
Nachrichten aus dem Rathaus
Zurück zur vorigen Seite
Zurück zur ersten Seite der aktuellen Ausgabe
-

Bürgerbrief



Sehr geehrte Bürgerinnen und Bürger,

ich möchte Ihnen gerne noch einige Informationen aus der vergangenen Gemeinderatssitzung vom 18. Oktober 2023 mitteilen.

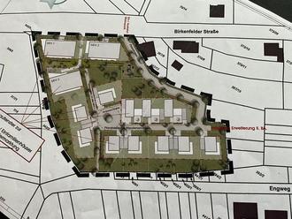
In dieser Sitzung wurden die Aufstellung von zwei Bebauungsplänen „Im Engweg“ in Hirstein und in der „Trierer Straße“ in Baltersweiler vom Gemeinderat beschlossen.

In Hirstein soll ein Neubaugebiet mit aktuell insgesamt 16 bebaubaren Grundstücken und in Baltersweiler ein Neubaugebiet mit insgesamt 11 bebaubaren Grundstücken entstehen.

Die frühzeitige Beteiligung der Öffentlichkeit, sowie die Beteiligung der Behörden und der Nachbargemeinden mit paralleler Teiländerung des Flächennutzungsplanes konnten auch beschlossen werden.

Wir können somit bauwilligen Bürgerinnen und Bürgern eine Bleibeperspektive in der Gemeinde Namborn anbieten und dem besonders stark wirkendem demografischen Wandel des Einwohnerrückganges entgegenwirken.

Des Weiteren stimmte der Gemeinderat für die Erstellung einer kommunalen Wärmeplanung. Sie ist ein zentraler Bestandteil der sich abzeichnenden Wärmewende in Deutschland. Der Landkreis St. Wendel stellt sich gemeinsam mit sieben Kreisgemeinden dieser Herausforderung und erstellt in Kooperation miteinander eine kommunale Wärmeplanung.

Ziel der kommunalen Wärmeplanung ist eine Planungssicherheit für Investitionen im öffentlichen und privaten Bereich, welche sich direkt oder indirekt auf die Wärmeversorgung vor Ort auswirkt.

Der Bund stellt Fördergelder für die Erstellung einer kommunalen Wärmeplanung bereit, in unserer Falle wäre dies eine Förderung von 48.050,- Euro = 100 Prozent für finanzschwache Kommunen.

Ein Zuschussantrag kann somit nun beim Bundesministerium für Wirtschaft und Klimaschutz eingereicht werden.

Ich wünsche Ihnen ein schönes Wochenende.

Ihr Bürgermeister
Sascha Hilpüsch