Titel Logo
Nohfelder Nachrichten
Ausgabe 46/2023
Amtliche Bekanntmachungen
Zurück zur vorigen Seite
Zurück zur ersten Seite der aktuellen Ausgabe

Amtliche Bekanntmachung

1. Änderung und Erweiterung des Bebauungsplanes

„Betriebshof Freizeitzentrum Bostalsee“

in Flur 10 u. 11 der Gemarkung Bosen

hier: Bekanntmachung über die Einleitung des Verfahrens und

formelle Beteiligung der Öffentlichkeit (öffentliche Auslegung)

Der Gemeinderat hat in seiner Sitzung am 09.11.2023 – öffentlicher Sitzungsteil - gemäß § 1 Abs. 3 und § 2 Abs. 1 BauGB in der Fassung der Bekanntmachung vom 03. November 2017 (BGBI. I S. 3634) - unter Berücksichtigung der aktuell gültigen Änderungen – die Einleitung des Verfahrens zur 1. Änderung und Erweiterung des Bebauungsplanes „Betriebshof Freizeitzentrum Bostalsee“ in Flur 10 u. 11 der Gemarkung Bosen im beschleunigten Verfahren beschlossen.

Der Beschluss des Gemeinderates vom 09.11.2023 zur Einleitung des Verfahrens wird gemäß § 2 Abs. 1 BauGB hiermit öffentlich bekannt gemacht.

Die Gemeinde Nohfelden hat mit dem Bebauungsplan „Betriebshof Freizeitzentrum Bostalsee“ im Jahr 2013 die planungsrechtlichen Voraussetzungen zur Errichtung eines Betriebshofes / einer Solarhalle für das Freizeitzentrum Bostalsee im Ortsteil Bosen geschaffen. Auf Grund der steigenden Attraktivität des Bostalsees als Freizeit- und Erholungsort wächst auch die Notwendigkeit der Bereitstellung einer geeigneten Rettungswache durch die erhöhte Gefahr von Badeunfällen. Um die Nutzung des Sees weiterhin sicher zu gestalten, bedarf es daher der Errichtung einer zentralen Unterkunft der Wasserrettung.

Aus diesem Grund soll eine DLRG-Unterkunft im Bereich der Straße „Am Seehafen“, auf einem bisher unbebauten Grundstück, angrenzend zum Betriebshof errichtet werden.

Aktuell beurteilt sich die planungsrechtliche Zulässigkeit teilweise nach dem Bebauungsplan „Betriebshof Freizeitzentrum Bostalsee“ (2013) sowie nach § 34 BauGB (Zulässigkeit von Vorhaben der im Zusammenhang bebauten Ortsteile) bzw. § 35 BauGB (Bauen im Außenbereich). Danach ist die Planung nicht realisierungsfähig. Es bedarf daher der 1. Änderung und Erweiterung eines Bebauungsplanes.

Das Plangebiet erstreckt sich über nachfolgende Grundstücke:

Gemarkung Bosen,

Flur 10, Parz.-Nr. 100 TF u.

Flur 11, Parz.- Nr. 32/3 TF

(TF = Teilflächen)

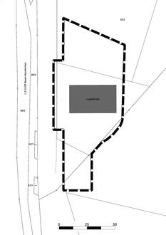
Die genauen Grenzen des Geltungsbereiches der 1. Änderung u. Erweiterung des Bebauungsplanes „Betriebshof Freizeitzentrum Bostalsee“ sind dem beigefügten Lageplan zu entnehmen. Er umfasst insgesamt eine Fläche von ca. 6.500 qm.

Der Bebauungsplan wird im beschleunigten Verfahren gem. § 13a BauGB i. V. m. § 13 BauGB geändert und erweitert.

Dieser Bebauungsplan ersetzt in seinem Geltungsbereich den Bebauungsplan „Betriebshof Freizeitzentrum Bostalsee“ aus dem Jahr 2013.

Der Flächennutzungsplan sieht für das Plangebiet ein Sondergebiet für Erholung und Tourismus vor. Der vorliegende Bebauungsplan entspricht somit dem Entwicklungsgebot gem. § 8 Abs. 2 BauGB, wonach Bebauungspläne aus dem Flächennutzungsplan zu entwickeln sind.

Der Bebauungsplan erfüllt die Vorgaben, um gemäß § 13a BauGB i. V. m. § 13 BauGB im beschleunigten Verfahren geändert und erweitert zu werden. § 13 Abs. 2 und 3 BauGB gelten entsprechend.

Es wird darauf hingewiesen, dass gemäß § 13 Abs. 3 BauGB von einer Umweltprüfung nach § 2 Abs. 4 BauGB, von dem Umweltbericht nach § 2 a BauGB, von der Angabe nach § 3 Abs. 2 Satz 4 BauGB, welche Arten umweltbezogener Informationen verfügbar sind, der zusammenfassenden Erklärung nach § 10a Abs. 1 BauGB und gem. § 13 Abs. 2 BauGB und § 13a Abs. 3 BauGB von der frühzeitigen Unterrichtung und Erörterung nach §§ 3 Abs. 1 und 4 Abs. 1 BauGB abgesehen wird.

In seiner Sitzung am 09.11.2023 hat der Gemeinderat – in öffentlichem Sitzungsteil - die Entwurfsplanung der 1. Änderung und Erweiterung des Bebauungsplanes „Betriebshof Freizeitzentrum Bostalsee“, bestehend aus der Planzeichnung (Teil A), dem Textteil (Teil B) und der Begründung gebilligt und die formelle öffentliche Auslegung gem. § 3 Abs. 2 BauGB beschlossen.

Gemäß §§ 13a, 13 BauGB und 3 Abs. 2 BauGB i. V. m. § 4 Abs. 2 BauGB in der Fassung der Bekanntmachung vom 03. November 2017 (BGBI. I S. 3634) - unter Berücksichtigung der aktuell gültigen Änderungen - wird hiermit öffentlich bekannt gemacht, dass die formelle Beteiligung der Öffentlichkeit in Form einer Offenlage des Entwurfs 1. Änderung und Erweiterung des Bebauungsplanes „Betriebshof Freizeitzentrum Bostalsee“ in der Zeit vom 22.11.2023 bis einschließlich 22.12.2023 durchgeführt wird. Die Entwurfsplanung des Bebauungsplanes, bestehend aus Planzeichnung (Teil A) und dem Textteil (Teil B) und der Begründung, ist während der Dienststunden (Montag bis Freitag von 08.00 Uhr bis 12.00 Uhr sowie Montag bis Donnerstag von 13.30 Uhr bis 15.00 Uhr) im Rathaus der Gemeinde Nohfelden, Bauamt, Zimmer 1.13 einsehbar.

Der Inhalt der ortsüblichen Bekanntmachung und die auszulegenden Unterlagen sind gemäß § 3 Abs. 2 BauGB zusätzlich über das Internetportal der Gemeinde Nohfelden (https://www.nohfelden.de/rathaus-service/) elektronisch abrufbar. Dieser Dienst steht nur während der Beteiligungsfrist vom 22.11.2023 bis einschließlich 22.12.2023 zur Verfügung. Der Inhalt der Bekanntmachung ist ebenfalls im Internet eingestellt.

Während der Auslegungsfrist können von jedermann Stellungnahmen schriftlich, zur Niederschrift oder elektronisch per Mail an die E-Mail-Adresse info@nohfelden.de vorgebracht werden. Nicht fristgerecht vorgebrachte Stellungnahmen können bei der Beschlussfassung über die Bebauungsplanaufstellung unberücksichtigt bleiben.

Hinweise zum Datenschutz

Die Verarbeitung personenbezogener Daten erfolgt auf Grundlage des § 3 BauGB in Verbindung mit Art. 6 Abs. 1 Buchst. e DSGVO i. V. m. dem Saarländischen Datenschutzgesetz.

Es wird ausdrücklich darauf hingewiesen, dass ein Flächennutzungsplan-/Bebauungsplanverfahren ein öffentliches Verfahren ist und daher in der Regel alle dazu eingehenden Stellungnahmen in öffentlichen Sitzungen beraten und entschieden werden. Soll eine Stellungnahme nur anonym behandelt werden, ist dies auf derselben eindeutig zu vermerken.

Sofern Sie Ihre Stellungnahme ohne Absenderangaben abgeben, erhalten Sie keine Mitteilung über das Ergebnis der Prüfung. Weitere Informationen entnehmen Sie bitte dem Formblatt: Informationspflichten bei der Erhebung von Daten im Rahmen der Öffentlichkeitsbeteiligung nach BauGB (Art. 13 DSGVO), welches mit ausliegt.

Nohfelden, den 14.11.2023
gez.
Andreas Veit
-Bürgermeister-

Lageplan, ohne Maßstab

Geltungsbereich der 1. Änderung und Erweiterung des Bebauungsplanes „Betriebshof Freizeitzentrum Bostalsee“ in der Gemeinde Nohfelden, Gemarkung Bosen

Datengrundlage: LVGL; Stand: 20.09.2023; Bearbeitung: Kernplan, Stand: 05.10.2023

Quelle: ZORA, Z – 026/05 LVGL; Stand: September 2023; Bearbeitung: Kernplan