Titel Logo
Mosella Perl
Ausgabe 45/2023
Amtliche Bekanntmachungen und Mitteilungen der Gemeinde Perl
Zurück zur vorigen Seite
Zurück zur ersten Seite der aktuellen Ausgabe

Vorhabenbezogener Bebauungsplan „Brunnenstraße“

in der Gemeinde Perl, im Ortsteil Besch

Bekanntmachung des Aufstellungsbeschlusses gem. § 2 Abs. 1. Satz 2 Baugesetzbuch (BauGB) sowie der Beteiligung der Öffentlichkeit gem. § 3 Abs. 2 BauGB

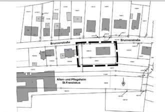
Der Gemeinderat Perl hat in seiner Sitzung am 23.10.2023 den Beschluss zur Aufstellung des vorhabenbezogenen Bebauungsplans „Brunnenstraße“ in der Gemeinde Perl im Ortsteil Besch gefasst (Geltungsbereich siehe Abbildung). Gem. § 2 Abs. 1. Satz 2 Baugesetzbuch (BauGB) wird der Beschluss zur Aufstellung des Bebauungsplans hiermit öffentlich bekannt gemacht. Das Planungsziel des vorhabenbezogenen Bebauungsplans „Brunnenstraße“ liegt in der Errichtung eines Mehrfamilienwohnhauses. Mit dem Bau des Wohngebäudes wird ein Beitrag zur Schaffung von Wohnraum in der Gemeinde geleistet.

Der Geltungsbereich des Bebauungsplans befindet sich im südlichen Bereich der Brunnenstraße und hat eine Fläche von ca. 0,13 ha.

Abbildung des Geltungsbereichs des vorhabenbezogenen Bebauungsplans „Brunnenstraße“ in Besch, ohne Maßstab, genordet.

Weiterhin hat der Gemeinderat Perl in seiner Sitzung am 23.10.2023 den Entwurf des vorhabenbezogenen Bebauungsplans "Brunnensatraße" gebilligt und die öffentliche Auslegung gem. § 3 Abs. 2 BauGB beschlossen.

Der Bebauungsplan wird gem. BauGB § 13 a (Bebauungspläne der Innenentwicklung) i.V.m. § 13 BauGB im vereinfachten Verfahren entwickelt. Entsprechend wird bekannt gemacht:

1.

dass der Bebauungsplan im vereinfachten Verfahren ohne Durchführung einer Umweltprüfung nach BauGB § 2 Abs. 4 aufgestellt wird; vom Umweltbericht nach § 2 a BauGB, von der Angabe nach § 3 Abs. 2 Satz 2, welche Arten umweltbezogener Informationen verfügbar sind, sowie von der zusammenfassenden Erklärung nach § 6 Abs. 5 Satz 3 und § 10 Abs. 4 wird gem. § 13 Abs. 3 BauGB abgesehen;

2.

dass der betroffenen Öffentlichkeit Gelegenheit zur Stellungnahme im Rahmen der Auslegung nach § 3 Abs. 2 BauGB gegeben wird.

Gemäß § 3 Abs. 2 BauGB wird hiermit öffentlich bekannt gemacht, dass die Entwürfe von Bebauungsplan und Begründung in der Zeit vom 17.11.2023 bis 18.12.2023 (jeweils einschließlich) während der Dienststunden im Rathaus der Gemeinde Perl, Bauamt, Zimmer 2.06., zu jedermanns Einsicht öffentlich ausliegen.

Ferner stellt die Gemeinde Perl die Unterlagen inkl. des Inhaltes der ortsüblichen Bekanntmachung auf ihrer Homepage unter folgendem Link

https://perl.saarland/offenlage-bplan.html zur Verfügung.

Im Rahmen der öffentlichen Auslegung gemäß § 3 Abs. 2 BauGB kann sich die Öffentlichkeit über die allgemeinen Ziele und Zwecke sowie die wesentlichen Auswirkungen der Planung unterrichten lassen und sich zu dem Entwurf und der Niederschrift schriftlich äußern oder elektronisch per Mail an die E-Mail-Adressen vorzimmer@perl-mosel.de, bzw. r.lauer@perl-mosel.de

Es wird darauf hingewiesen, dass nicht fristgemäß abgegebene Stellungsnahmen bei der Beschlussfassung über den Bebauungsplan unberücksichtigt bleiben können.

Perl, den 03.11.2023

Der Bürgermeister

Ralf Uhlenbruch