Titel Logo
Öffentlicher Anzeiger - Stadt Püttlingen
Ausgabe 7/2025
Amtliche Bekanntmachungen
Zurück zur vorigen Seite
Zurück zur ersten Seite der aktuellen Ausgabe

Bekanntmachung

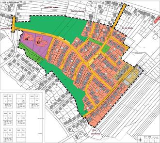
Datenlizenz Deutschland – Namensnennung – Version 2.0 (www.govdata.de/dl-de/by-2-0) Quelle: © GeoBasis DE/LVGL-SL (2018)“

betreffend die Rechtswirksamkeit des Bebauungsplans „Oberwies III. Bauabschnitt, 2. Änderung“ im Stadtteil Köllerbach

Der Rat der Stadt Püttlingen hat gemäß § 10 Abs. 1 Baugesetzbuch (BauGB) in der Fassung der Bekanntmachung vom 3. November 2017 (BGBl. I S. 3634), das zuletzt durch Artikel 3 des Gesetzes vom 20. Dezember 2023 (BGBl. 2023 I Nr. 394) geändert worden ist, in öffentlicher Sitzung am 11.12.2024 den Bebauungsplan „Oberwies III. Bauabschnitt, 2. Änderung“, bestehend aus der Planzeichnung (Teil A), dem Textteil (Teil B) und der Begründung unter Berücksichtigung der Abwägungsergebnisse (§ 1 Abs. 7 BauGB) aus den Beteiligungsschritten nach § 3 Abs. 2 BauGB i.V. mit § 4 Abs. 2 BauGB als Satzung beschlossen.

Der Satzungsbeschluss wird hiermit gem. § 10 Abs. 3 BauGB ortsüblich bekannt gemacht. Mit dieser Bekanntmachung tritt der Bebauungsplan „Oberwies III. Bauabschnitt, 2. Änderung“ in Kraft und ersetzt die bisherigen Satzungen (Bebauungspläne und Örtliche Bauvorschriften).

Der Bebauungsplan „Oberwies III. Bauabschnitt, 2. Änderung“ einschließlich Begründung und Dokumentation Vorgärten kann bei der Stadt Püttlingen, Fachbereich 4 – Planen und Umwelt, Rathaus im Stadtteil Köllerbach, In der Schäferei 8, Zimmer 25 oder 27, während der allgemeinen Öffnungszeiten eingesehen werden. Über den Inhalt wird auf Verlangen Auskunft gegeben.

Gemäß § 44 Abs. 3 Satz 1 und 2 und Abs. 4 BauGB wird darauf hingewiesen, dass ein Entschädigungsberechtigter Entschädigung verlangen kann, wenn die in den §§ 39-42 BauGB bezeichneten Vermögensnachteile durch die Festsetzungen dieses Bebauungsplanes eingetreten sind. Er kann die Fälligkeit dieses Anspruchs dadurch herbeiführen, dass er die Leistung der Entschädigung schriftlich bei dem Entschädigungspflichtigen beantragt. Ein Entschädigungsanspruch erlischt, wenn nicht innerhalb von 3 Jahren nach Ablauf des Kalenderjahres, in dem die oben bezeichneten Vermögensnachteile eingetreten sind, die Fälligkeit des Anspruchs herbeigeführt wird.

Gemäß § 215 Baugesetzbuch werden Verletzungen der in § 214 Baugesetzbuch bezeichneten Verfahrens- und Formvorschriften, der Vorschriften über das Verhältnis des Bebauungsplans und des Flächennutzungsplans und Mängel der Abwägung unbeachtlich, wenn sie nicht innerhalb eines Jahres seit Bekanntmachung dieser Satzung schriftlich gegenüber der Stadt unter Darlegung des die Verletzung begründenden Sachverhalts geltend gemacht worden sind. Dies gilt entsprechend, wenn Fehler nach § 214 Abs. 2a BauGB beachtlich sind.

Es wird weiter darauf hingewiesen, dass der Bebauungsplan gem. § 12 Abs. 6 KSVG im Fall einer Verletzung von Verfahrens- oder Formvorschriften des Kommunalselbstverwaltungsgesetzes (KSVG) ein Jahr nach der öffentlichen Bekanntmachung als von Anfang an gültig zustande gekommen gilt, sofern nicht die Vorschriften über die Genehmigung oder die öffentliche Bekanntmachung der Satzung verletzt worden sind bzw. vor Ablauf der Frist der/die Bürgermeister/in dem Beschluss widersprochen oder die Kommunalaufsichtsbehörde den Beschluss beanstandet hat oder der Verfahrens- oder Formmangel gegenüber der Stadt unter Bezeichnung der Tatsache, die den Mangel ergibt, schriftlich gerügt worden ist.

Der Geltungsbereich des Bebauungsplans ist im nachfolgenden Kartenausschnitt dargestellt:

Püttlingen den 10.02.2025

Die Bürgermeisterin

Denise Klein