Titel Logo
Amtsblatt der Stadt Artern und Gemeinden
Ausgabe 13/2024
Amtliche Bekanntmachungen der Stadt Artern im Kyffhäuserkreis
Zurück zur vorigen Seite
Zurück zur ersten Seite der aktuellen Ausgabe

Amtliche Bekanntmachungen der Stadt Artern im Kyffhäuserkreis

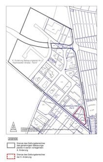
Veröffentlichung des Entwurfes der 5. Änderung des Bebauungsplanes Nr. 1 „Kachstedter Straße-Nord“ in Artern nach § 3 Abs. 2 BauGB

Der Stadtrat der Stadt Artern hat in öffentlicher Sitzung am 22.04.2024 die Aufstellung der 5. Änderung des Bebauungsplanes Nr. 1 „Kachstedter Straße- Nord“ in Artern beschlossen. Das Aufstellungsverfahren der 5. Planänderung wird als Planverfahren der Innenentwicklung gem. § 13 a BauGB i. V. m. § 13 BauGB im vereinfachten Verfahren durchgeführt.

Der Planentwurf soll nun veröffentlicht werden. Für den Planbereich ist der Planentwurf von August 2024 maßgebend.

Anlass der Planung:

Mit der Aufstellung der 5. Änderung des Bebauungsplanes sollen die planungsrechtlichen Voraussetzungen für die angestrebte Entwicklung des am Standort ansässigen Edeka-Marktes geschaffen werden. Für die Entwicklung wird innerhalb der sonstigen geltenden Festsetzungen nur die Erhöhung / Anpassung der Verkaufsflächenzahlen über das bisher festgesetzte Maß erforderlich.

Eine Auswirkungsanalyse liegt vor.

Geltungsbereich des Plangebietes:

Der Geltungsbereich des rechtswirksamen Bebauungsplanes wird durch die Änderung nicht berührt (keine Änderung des Geltungsbereiches).

Der Geltungsbereich der 5. Planänderung besitzt eine Fläche von ca. 0,7 ha und beinhaltet folgende Flurstücke der Gemarkung Artern:

- Flur 2

die Flurstücke 13/119, 13/122 und 13/124

Für den räumlichen Geltungsbereich des Bebauungsplans ist der als Anlage enthaltene Lageplan maßgebend.

Öffentlichkeitsbeteiligung gemäß § 3 Abs. 2 BauGB

Der Entwurf zur 5. Änderung des Bebauungsplanes Nr. 1 „Kachstedter Straße-Nord“ in Artern und die Begründung (Stand August 2024) sowie die vorliegenden Auswirkungsanalyse werden im Zeitraum

vom 23.09.2024 bis einschließlich 28.10.2022

auf der Website der Stadt Artern unter

https://www.artern.de/rathaus/amtliche-bekanntmachung25.html

veröffentlicht.

Zusätzlich können die Planunterlagen im Bau- und Ordnungsamt der Stadtverwaltung, Brauereistraße 3, 06556 Artern während der Öffnungszeiten

Montag

08:00 - 12.00 Uhr

Dienstag

08.00 - 12.00 Uhr und 13.00 - 18:00 Uhr

Donnerstag

08.00 - 12.00 Uhr und 13.00 - 15.30 Uhr

Freitag

08.00 - 12.00 Uhr

eingesehen werden.

Während der Veröffentlichungsfrist können von jedermann Anregungen zum Entwurf vorgebracht werden.

Die Stellungnahmen sind elektronisch per E-Mail an bauamt@artern.de zu übermitteln. Bei Bedarf besteht die Möglichkeit der schriftlichen oder zur Niederschrift vorgebrachten Stellungnahme zu den o.g. Öffnungszeiten.

Nicht fristgerecht abgegebene Stellungnahmen können bei der Beschlussfassung über die 5. Bebauungsplanänderung unberücksichtigt bleiben.

Hinweise:

Bei der Abgabe von Stellungnahmen ist die Angabe der Anschrift des Verfassers zweckmäßig. Eine Mitteilung des Abwägungsergebnisses ist andernfalls nicht möglich. Ohne Zuordnung der Stellungnahme kann die Einschätzung der Betroffenheit privater Belange erschwert sein. Mit der Abgabe der Stellungnahme wird in die Erhebung, Verarbeitung und Nutzung personenbezogener Daten zum Zwecke der Durchführung des Bauleitplanverfahrens eingewilligt. Über die eingegangenen Stellungnahmen wird in öffentlicher Sitzung des Stadtrates anonymisiert beraten und entschieden.

Beteiligung der Träger öffentlicher Belange:

Die betroffenen Behörden und sonstige Träger öffentlicher Belange werden elektronisch beteiligt und erhalten innerhalb einer einmonatigen Frist die Möglichkeit zur Abgabe einer Stellungnahme (§ 4 Abs. 2 BauGB).

Umweltprüfung

Das Verfahren zur Aufstellung der 5. Änderung des Bebauungsplanes wird im vereinfachten Verfahren gem. § 13 a BauGB i. V. m. § 13 BauGB durchgeführt. Von der Umweltprüfung nach § 2 Abs. 4, von dem Umweltbericht nach § 2a und von der Angabe nach § 3 Abs. 2 Satz 2 (welche Art umweltrelevanter Informationen verfügbar sind) wird abgesehen.

Folgendes Gutachten liegt zum Entwurf vor und kann ebenfalls eingesehen werden:

  • Auswirkungsanalyse zum geplanten Neubau (inkl. Erweiterung) eines Edeka-Marktes am Standort Kachstedter Straße in Artern (Stand 26.04.2024)

Datenschutz:

Die Verarbeitung personenbezogener Daten erfolgt auf der Grundlage der Art. 6 Abs. 1 Buchstabe e DSGVO i. V. mit § 3 BauGB und der ThürDSGVO. Sofern Sie Ihre Stellungnahme ohne Absenderangaben abgeben (Mail-Adresse bzw. Anschrift), erhalten Sie keine Mitteilung über das Ergebnis der Prüfung.

Die Veröffentlichung wird hiermit entsprechend § 3 Abs. 2 BauGB ortsüblich bekannt gemacht.

Blümel

Bürgermeister  —  -Siegel-

Anlage: