Titel Logo
Werratal-Kurier
Ausgabe 10/2025
Amtlicher Teil
Zurück zur vorigen Seite
Zurück zur ersten Seite der aktuellen Ausgabe

Amtliche Bekanntmachungen

über den Beschluss zur Öffentlichkeits- und Behördenbeteiligung gemäß § 3 Abs. 1 und § 4 Abs. 1 Baugesetzbuch (BauGB)

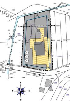
Der Gemeinderat von Roßdorf hat am 14.10.2025 mit Beschluss-Nr. 661/0150 in öffentlicher Sitzung den Beschluss zur frühzeitigen Öffentlichkeits- und Behördenbeteiligung zum Vorentwurf des Bebauungsplans „Unter der Mühle“ in der Gemarkung Roßdorf gefasst.

Der Vorentwurf des Bebauungsplans „Unter der Mühle“ in der Gemarkung Roßdorf, bestehend aus der Planzeichnung im Maßstab 1: 1.000 sowie der Begründung, wurde in der vorliegenden Fassung mit Stand von 25.09.2025 gebilligt.

Die Öffentlichkeit ist gemäß § 3 Abs. 1 BauGB möglichst frühzeitig über die allgemeinen Ziele und Zwecke der Planung, sich wesentlich unterscheidende Lösungen, die für die Neugestaltung oder Entwicklung eines Gebiets in Betracht kommen und die voraussichtlichen Auswirkungen der Planung öffentlich zu unterrichten. Ihr wird Gelegenheit zur Äußerung und Erörterung zu geben. Die Behörden und sonstigen Träger öffentlicher Belange, deren Aufgabenbereich durch die Planung berührt werden kann, sind entsprechend § 4 Absatz 1 BauGB zu unterrichten und zur Äußerung auch im Hinblick auf den erforderlichen Umfang und Detaillierungsgrad der Umweltprüfung nach § 2 Absatz 4 BauGB aufzufordern. Der Vorentwurf des Bebauungsplans „Unter der Mühle“ in der Gemarkung Roßdorf, bestehend aus der Planzeichnung im Maßstab 1: 1.000 sowie der Begründung wird öffentlich ausgelegt und die beteiligten Behörden von der Auslegung benachrichtigt.

Der Vorentwurf des Bebauungsplans „Unter der Mühle“ in der Gemarkung Roßdorf, bestehend aus der Planzeichnung im Maßstab 1: 1.000 sowie der Begründung werden gemäß § 3 Abs. 1 BauGB in der Erfüllenden Gemeinde Breitungen, Rathausstraße 24, 98597 Breitungen, während der Öffnungszeiten zu jedermanns Einsicht öffentlich ausgelegt.

Öffnungszeiten:

In der Zeit vom

03.11.2025 bis 05.12.2025

kann jedermann dazu Äußerungen und Anregungen abgeben. Diese senden Sie an die Erfüllende Gemeinde Breitungen, Rathausstraße 24, 98597 Breitungen oder elektronisch an info@breitungen.de

Die Unterlagen (Bebauungsplan und Begründung) und der Inhalt der ortsüblichen Bekanntmachung können während der öffentlichen Auslegung auch auf der Internetseite der Gemeinde Breitungen unter https://www.breitungen.de/seite/389947/flächennutzungs-bebauungspläne.html eingesehen werden.

Roßdorf, den 15.10.2025  — -Siegel-

Pfaff

Bürgermeisterin