Titel Logo
Werratal-Kurier
Ausgabe 2/2023
Amtlicher Teil
Zurück zur vorigen Seite
Zurück zur ersten Seite der aktuellen Ausgabe

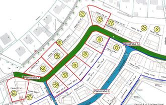
Verkauf von 8 Bauplätzen im Wohngebiet "Hinter den Höhen II“ 3. BA

Die Gemeinde Breitungen beabsichtigt den Verkauf von 8 Bauplätzen im neuen Wohngebiet „Hinter den Höhen II“, 3. BA. Zum Verkauf stehen die unten aufgeführten Bauplätze (rot markiert).

Nr. 12 mit 705 m²

Nr. 26 mit 569 m²

Nr. 30 mit 685 m²

Nr. 14 mit 703 m²

Nr. 29 mit 767 m²

Nr. 32 mit 877 m²

Nr. 24 mit 717 m²

Die Bauplätze sind voll erschlossen, das heißt die Versorgungsleitungen: Strom, Trinkwasser, Abwasser, Gas und Telekom liegen auf dem Grundstück an.

Der Kaufpreis beträgt 53,00 €/m², zuzüglich 250,00 €/Bauplatz für einen Gasanschluss, der durch die Gemeinde vorfinanziert und mit Kaufpreiszahlung fällig wird.

Nach derzeitiger Rechtslage muss im Zuge der Bebauung des Grundstücks mit Beiträgen des Abwasserzweckverband „Schmalkalden und Umgebung“ für leitungsgebundene Einrichtungen gerechnet werden.

Für das Baugebiet liegt ein Bodengrundgutachten vor, dass zu den Sprechzeiten im Bauamt der Gemeinden Rathausstraße 24, 98597 Breitungen, nach Voranmeldung unter Tel. 036848-88220, eingesehen werden kann.

Auflagen für den Käufer:

1.

Die bezugsfertige Herstellung eines Wohnhauses zur Eigennutzung hat innerhalb von 2 Jahren ab Kaufvertragsabschluss entsprechend den Festsetzungen des Bebauungsplanes Nr. 7 „Hinter den Höhen II“ zu erfolgen.

2.

Ein Wiederkaufsrecht für die Gemeinde Breitungen bei Nichterfüllung der Bauverpflichtung nach Pkt. 1 wird im Grundbuch gesichert.

Die Festsetzungen des Bebauungsplanes können auf der Homepage der Gemeinde Breitungen unter:

Rathaus - Flächennutzungs- & Bebauungspläne - Breitungen -

09 - Gemeinde Breitungen - kl - Bebauungsplan Nr. 7- Hinter den Höhen II 1. Änderung 2008

eingesehen werden.

Weitere Bedingungen:

1.

Der Bewerber versichert, dass er alle Angaben wahrheitsgemäß gemacht hat. Sollte sich herausstellen, dass dies nicht der Fall ist, wird er vom Verfahren ausgeschlossen.

2.

Nicht eindeutig gekennzeichnete Bewerbungen können keine Berücksichtigung finden.

3.

Ein Rechtsanspruch auf Zuteilung eines Baugrundstückes besteht nicht.

4.

Der Verkauf erfolgt ausschließlich an natürliche Personen.

5.

Der Verkauf mehrerer Bauplätze an einen Bewerber ist ausgeschlossen. Personenmehrheiten (wie Ehepaare oder Partnerschaften) werden dabei wie ein Antragsteller behandelt.

6.

Der Verkauf an Bauträger ist ausgeschlossen.

Je Antragsteller ist nur der Ankauf von jeweils einem Grundstück zulässig.

Die Bewerbung sollte folgende Angaben enthalten:

1.

Name und Alter der Bewerber/der Bewerberin/des Bewerbers, Kontaktdaten: Telefon und Mailadresse

2.

Anzahl und Alter der im Haushalt lebenden Kinder

3.

Wohn- und Arbeitsort der Bewerber/der Bewerberin/des Bewerbers

Ihr Schriftliches Kaufangebot senden Sie bitte bis zum 03.03.2023 inkl. der geforderten Unterlagen in einem verschlossenen Briefumschlag mit der Aufschrift „Ausschreibung Bauplatz Hinter den Höhen II“ an die

Gemeinde Breitungen

Abt. Liegenschaften

Rathausstraße 24

98597 Breitungen