Titel Logo
Inselberg-Journal
Ausgabe 1/2023
Amtliche Bekanntmachungen der Stadt Brotterode-Trusetal
Zurück zur vorigen Seite
Zurück zur ersten Seite der aktuellen Ausgabe

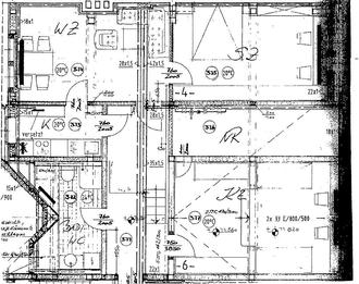
Kommunale Wohnung zu vermieten

Die Stadt Brotterode-Trusetal vermietet ab dem 01.05.2023 eine kommunale Wohnung in dem Gebäude Bad Vilbeler Platz 4 (Haus des Gastes) im Ortsteil Brotterode.

Die Wohnung befindet sich im Dachgeschoss links und hat eine Größe von 87 m².

Sie verfügt über drei Zimmer, Küche, Bad und sonstigen Nebenraum. Die Aufteilung der Räume ist dem Grundriss zu entnehmen.

Bei bestehenden Interesse können die Angaben zu den Maßen der Wohnräume in der Liegenschaftsverwaltung (036840-401934) erfragt werden.

Die Kaltmiete beträgt 350,00 €.

Es ist eine Kaution in Höhe von zwei Monatskaltmieten zu hinterlegen.

Die monatliche Nebenkostenvorauszahlung beträgt 250,00 €.

Eine Besichtigung der Wohnung vor dem 01.05.2023 wäre nur in Abstimmung mit der derzeit noch dort wohnenden Mieterin möglich.

Sollte ein Interesse an der Mietung dieser Wohnung bestehen, richten Sie Ihre schriftliche Bewerbung an die Stadtverwaltung Brotterode-Trusetal, Rathausstraße 7, 98596 Brotterode-Trusetal.