Titel Logo
Südeichsfeld Bote
Ausgabe 7/2023
Amtlicher Teil
Zurück zur vorigen Seite
Zurück zur ersten Seite der aktuellen Ausgabe

Bekanntmachung der Gemeinde Schimberg

Frühzeitige Beteiligung der Öffentlichkeit zum Entwurf

Vorhabenbezogener Bebauungsplan Nr. 11 „Neubau Edeka Provinzialstraße“ der Gemeinde Schimberg OT Ershausen

Nach § 3 Abs. 1 Baugesetzbuch (BauGB)

Die Gemeinde Schimberg hat in seiner öffentlichen Sitzung am 04.07.2023 den Auslegungsbeschluss Nr. 131-23/23 zum Vorhabenbezogenen Bebauungsplan Nr. 11 „Neubau Edeka Provinzialstraße“ der Gemeinde Schimberg OT Ershausen gefasst. Ziel des Bebauungsplanes ist der Neubau eines Lebensmittelmarktes (Vollsortiment).

Die frühzeitige Öffentlichkeitsbeteiligung gemäß § 3 Abs.1 BauGB erfolgt vom 27.07.2023 bis 29.08.2023 im Bauamt der VG Ershausen/Geismar.

Die frühzeitige Beteiligung der Träger öffentlicher Belange gemäß § 4 Abs. 1 BauGB am Verfahren erfolgt parallel.

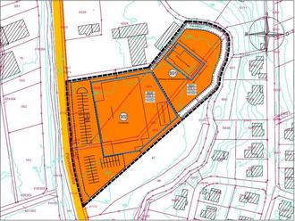
Der räumliche Geltungsbereich des Bebauungsplanes und die Lage sind aus nachstehender Planskizze, welche Bestandteil der Bekanntmachung ist, zu ersehen.

Der Entwurf des Bebauungsplans und die Begründung können in der Zeit

vom 27.07.2023 bis einschließlich 29.08.2023

während der Dienst-/Sprechzeiten in der Verwaltungsgemeinschaft Ershausen/Geismar im Bauamt, Kreisstraße 4, 37308 Schimberg

Sprechzeiten:

Montag:

9.00 – 12.00 Uhr

Dienstag:

9.00 – 12.00 13.00 – 15.30 Uhr

Mittwoch:

geschlossen

Donnerstag:

9.00 – 12.00 u. 14.00 – 17.00 Uhr

Freitag:

9.00 – 12.00 Uhr

eingesehen werden.

Darüber hinaus erfolgt entsprechend § 4a Abs. 4 BauGB während dieses Zeitraumes die Veröffentlichung auf der Internetpräsenz der Verwaltungsgemeinschaft Ershausen/Geismar unter: https://www.ershausen-geismar.de/seite/366737/bauleitplanung.html

Während der Auslegungsfrist können von jedermann Stellungnahmen schriftlich, zur Niederschrift oder elektronisch per Mail an die E-Mail-Adresse: bau@ershausen-geismar.de vorgebracht werden.

Stellungnahmen, die im Verfahren der Öffentlichkeits- und der Behördenbeteiligung nicht rechtzeitig abgegeben worden sind, können bei der Beschlussfassung über den Vorhabenbezogenen Bebauungsplan Nr. 11 „Neubau Edeka Provinzialstraße“ der Gemeinde Schimberg OT Ershausen unberücksichtigt bleiben, sofern die Gemeinde Schimberg deren Inhalt nicht kannte und nicht hätte kennen müssen und deren Inhalt für die Rechtmäßigkeit des Bebauungsplanes nicht von Bedeutung ist. (§ 4a, Abs. 6, Satz 1, BauGB).

Hinweis:

Bei der Abgabe der Stellungnahmen ist die Angabe der Anschrift des Verfassers zweckmäßig. Eine Mitteilung des Abwägungsergebnisses ist anderenfalls nicht möglich. Ohne Zuordnung der Stellungnahme kann die Einschätzung der Betroffenheit privater Belange erschwert sein.

Mit der Abgabe der Stellungnahme wird in die Verarbeitung personenbezogener Daten zum Zwecke der Durchführung des Bebauungsplanverfahrens eingewilligt.

Über die eingegangenen Stellungnahmen wird in öffentlicher Sitzung des Gemeinderates beraten und entschieden.

Schimberg, 18.07.2023

Doreen Mathias-Fromm

Bürgermeisterin