Titel Logo
Amtsblatt der Landgemeinde am Ohmberg
Ausgabe 12/2024
Amtlicher Teil (AT)
Zurück zur vorigen Seite
Zurück zur ersten Seite der aktuellen Ausgabe

Aktuelle Pachtausschreibung für gewerbliche Nutzflächen der Gemeinde Am Ohmberg auf dem Wege der öffentlichen Ausschreibung gemäß § 31 Abs. 1 Satz 2 der Thüringer Gemeindehaushaltsverordnung (ThürGemHV)

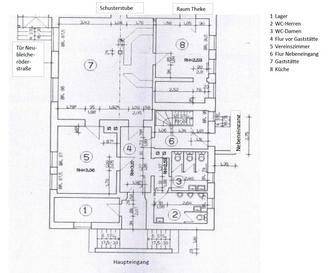
Die Gemeinde Am Ohmberg als Eigentümer beabsichtigt, auf dem Wege der öffentlichen Ausschreibung Räumlichkeiten der Gaststätte „Hauröder Klippen“ im OT Hauröden, Am Breiten Born 1 in 37345 Am Ohmberg für eine gastronomische Nutzung zu verpachten.

Vorortbesichtigungen können nach Terminvereinbarung durchgeführt werden.

Die Räumlichkeiten verfügen über eine Flächengröße von insgesamt ca. 112 m².

Die Kellerräume sowie die Außenanlagen dürfen mitgenutzt werden.

Angebote sind bis zum 28.02.2025 (12.00 Uhr) mit der deutlichen Kennzeichnung

„Pachtausschreibung - Gaststätte Hauröder Klippen“

bei der Gemeinde Am Ohmberg, OT Großbodungen, Fleckenstr. 49 in 37345 Am Ohmberg einzureichen. Bestandteil des Angebotes soll ein Nutzungskonzept sein.

Die Entscheidung über die Verpachtung trifft die Gemeindeverwaltung. Die Gemeinde ist nicht verpflichtet an den Höchstbietenden, einen bestimmten Bieter oder überhaupt zu verpachten.

Weitergehende Informationen können unter vorgenannter Anschrift erbeten werden.

Ansprechpartner:

Frau Hartmann

Telefon: 036077/939021

E-Mail: liegenschaften@lg-am-ohmberg.de

Am Ohmberg, 04.12.2024

gez. Karl-Josef Wand

Bürgermeister