Titel Logo
Amtsblatt der Stadt An der Schmücke
Ausgabe 12/2024
Amtliche Bekanntmachungen
Zurück zur vorigen Seite
Zurück zur ersten Seite der aktuellen Ausgabe

Stadt An der Schmücke

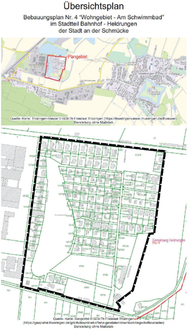
Planverfahren zur Aufstellung des Bebauungsplanes Nr. 4 „Wohngebiet - Am Schwimmbad“, Stadtteil Bahnhof Heldrungen der Stadt An der Schmücke

hier: Bekanntmachung der Öffentlichkeitsbeteiligung gemäß § 3 (2) BauGB

Der Stadtrat der Stadt An der Schmücke hat in seiner Sitzung am 29.04.2024 das bisherige Planverfahren zur Aufstellung des Bebauungsplanes Nr. 4 „Wohngebiet-Am Schwimmbad“, Stadtteil Bahnhof Heldrungen der Stadt An der Schmücke eingestellt und die Neuaufstellung mit geändertem Geltungsbereich beschlos- sen. Damit wurde das gesetzlich erforderliche Planverfahren gemäß BauGB neu eingeleitet. Der aktuelle räumliche Geltungsbereich des Bebauungsplanes ist aus der mitveröffentlichten Planskizze ersichtlich.

Wesentliches Ziel der Planung

ist die planungsrechtliche Sicherung der bereits vorhandenen Wohnnutzung im Bereich „Am Schwimmbad“.

In seiner Sitzung am 25.11.2024 hat der Stadtrat der Stadt An der Schmücke dem Planentwurf des Bebauungsplanes mit Begründung und Umweltbericht sowie Anlagen zugestimmt und die Veröffentlichung der Planunterlagen zur Öffentlichkeitsbeteiligung gem. § 3 (2) BauGB beschlossen.

Der Entwurf des Bebauungsplanes Nr. 4 „Wohngebiet-Am Schwimmbad“, Stadtteil Bahnhof Heldrungen der Stadt An der Schmücke (Stand Oktober 2024) bestehend aus der Planzeichnung, der Begründung sowie dem Umweltbericht mit Grünordnungsplan und Artenschutzfachbeitrag und alle wesentlichen, bereits vorliegenden umweltbezogenen Stellungnahmen des Planverfahrens werden gemäß § 3 (2) BauGB im Zeitraum

vom 02.01.2025 bis 07.02.2025

im Internet als Download unter der Adresse www.stadtanderschmuecke.de veröffentlicht.

https://www.stadtanderschmuecke.de/seite/404860/heldrungen.html

Als zusätzliches Informationsangebot werden die o.g. Planungsunterlagen im gleichen Zeitraum an nachfolgender Stelle innerhalb der Dienstzeiten zur Einsichtnahme öffentlich ausgelegt und können von jedermann eingesehen werden. Fachliche und inhaltliche Erläuterungen und Auskünfte zur o.a. Planung sind innerhalb der Öffnungszeiten oder nach gesonderter Terminabsprache möglich:

Ort:

Bauamt der Stadt An der Schmücke, Am Bahnhof 43, 06577 An der Schmücke (Heldrungen)

Montag:

geschlossen

Dienstag:

9:00 - 12:00 Uhr und 14:00 bis 18:00 Uhr

Mittwoch:

geschlossen

Donnerstag:

9:00 - 12:00 Uhr und 13:00 bis 15:00 Uhr

Freitag:

9:00 - 11:00 Uhr

Stellungnahmen können während der o.g. Frist von jedermann abgegeben werden. Die Übermittlung der Stellungnahmen sollte vorrangig auf elektronischem Wege an info@anderschmuecke.de erfolgen. Bei Bedarf können Stellungnahmen auch schriftlich an die Stadt An der Schmücke, Am Bahnhof 43, 06577 An der Schmücke (Heldrungen) gesandt oder während der Öffnungszeiten bzw. nach gesonderter Terminabsprache mündlich oder zur Niederschrift vorgebracht werden.

Es wird ausdrücklich darauf hingewiesen, dass nicht fristgerecht abgegebene Stellungnahmen bei der Beschlussfassung der Stadt An der Schmücke unberücksichtigt bleiben können.

Folgende umweltbezogene Informationen und Stellungnahmen des Planverfahrens sind verfügbar und liegen ebenfalls öffentlich aus:

Umweltbericht zum Bebauungsplan Nr. 4 „Wohngebiet-Am Schwimmbad“, Stadtteil Bahnhof Heldrungen mit Aussagen zu den Schutzgütern Mensch, Tiere, Pflanzen, Boden, Wasser, Luft, Klima, Landschaft, Kultur- und sonstigen Sachgüter sowie Grünordnungsplan und Artenschutzfachbeitrag; sowie die wesentlichen, bereits vorliegenden umweltbezogenen Stellungnahmen von Behörden und sonsti- gen Trägern öffentlicher Belange zu den Themen Bodenschutz/Altlasten, Geologie, Arten- und Naturschutz, Immissionsschutz, Wasserrecht, verkehrliche Erschließung, Ver- und Entsorgung.

Anlage: Übersichts- und Lageplan

gez. Schäffer

Bürgermeisterin