Titel Logo
Rhöner Nachrichten
Ausgabe 1/2026
Stadt Kaltennordheim
Zurück zur vorigen Seite
Zurück zur ersten Seite der aktuellen Ausgabe

Bekanntmachung über den Beschluss zur 2. Behörden- und Öffentlichkeits- beteiligung gemäß § 3 Abs. 2 und § 4 Abs. 2 Baugesetzbuch (BauGB)

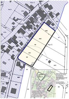
Der Stadtrat der Stadt Kaltennordheim hat am 16.12.2025 in öffentlicher Sitzung den Beschluss zur 2. Behörden- und Öffentlichkeitsbeteiligung zum Entwurf der Ergänzungssatzung „Am Kies“ in der Gemarkung Klings gefasst.

Der Entwurf der Ergänzungssatzung „Am Kies“ in der Gemarkung Klings, bestehend aus der Planzeichnung im Maßstab 1: 1.000 sowie der Begründung, wurde in der vorliegenden Fassung mit Stand von 14.11.2025 gebilligt.

Entsprechend § 34 Absatz 6 BauGB sind bei der Aufstellung einer Ergänzungssatzung, die einzelne Außenbereichsflächen in die im Zusammenhang bebauten Ortsteile einbezieht, wenn die einbezogenen Flächen durch die bauliche Nutzung des angrenzenden Bereichs entsprechend geprägt sind, die Vorschriften über die Öffentlichkeits- und Behördenbeteiligung nach § 13 Absatz 2 Satz 1 Nummer 2 und 3 sowie Satz 2 BauGB (vereinfachtes Verfahren) entsprechend anzuwenden.

Im vereinfachten Verfahren wurde von der frühzeitigen Unterrichtung und Erörterung nach § 3 Abs. 1 und § 4 Abs. 1 BauGB abgesehen.

Von einer Umweltprüfung wurde gemäß § 13 Abs. 3 Satz 2 BauGB abgesehen.Der Entwurf der Ergänzungssatzung „Am Kies“ in der Gemarkung Klings, bestehend aus der Planzeichnung im Maßstab 1: 1.000 sowie der Begründung werden gemäß § 3 Abs. 2 Satz 4 BauGB

vom 30.01.2026 bis 06.03.2026 im Internet unter www.vghoherhoen.de

veröffentlicht.

Zusätzlich zur Veröffentlichung im Internet erfolgt die Auslegung des Entwurfs der Ergänzungssatzung sowie der Begründung in der Verwaltungsgemeinschaft „Hohe Rhön“, Bauverwaltung (1.OG), Zimmer 13, Hauptstraße 18, 36452 Kaltennordheim, während der Öffnungszeiten sowie nach besonderer Vereinbarung zu jedermanns Einsicht.

Öffnungszeiten:

Montag

08.30 Uhr - 12.00 Uhr

Dienstag

08.30 Uhr - 12.00 Uhr und 13.30 Uhr - 16.00 Uhr

Mittwoch

geschlossen

Donnerstag

08.30 Uhr - 12.00 Uhr und 13.30 Uhr - 18.00 Uhr

Freitag

08.30 Uhr - 12.00 Uhr

In der Zeit vom 30.01.2026 bis 06.03.2026 kann jedermann dazu Äußerungen und Anregungen abgeben.

Stellungnahmen sollen während dieser Frist elektronisch an h.buettner@vghoherhoen.de und bei Bedarf in Textform an die Stadt Kaltennordheim über die Verwaltungsgemeinschaft „Hohe Rhön“, Hauptstraße 18, 36452 Kaltennordheim oder während der o.g. Dienststunden zur Niederschrift abgegeben werden.

Nicht fristgerecht abgegebene Stellungnahmen können bei der Beschlussfassung über die Ergänzungssatzung unberücksichtigt bleiben, wenn die Stadt Kaltennordheim den Inhalt nicht kannte und nicht hätte kennen müssen und deren Inhalt für die Rechtmäßigkeit der Ergänzungssatzung nicht von Bedeutung ist.

Die nach § 4 Absatz 2 BauGB Beteiligten sollen von der Veröffentlichung im Internet auf elektronischem Weg benachrichtigt werden.

Datenschutz:

Die Verarbeitung personenbezogener Daten erfolgt auf der Grundlage der Art. 6 Abs. 1 Buchstabe e Datenschutzgrundverordnung (DSGVO) i. V. mit § 3 BauGB und dem § 16 ThürDSG. Sofern Sie Ihre Stellungnahme ohne Absenderangaben abgeben, erhalten Sie keine Mitteilung über das Ergebnis der Prüfung.

Kaltennordheim, 20.01.2026

Erik Thürmer

Bürgermeister