Titel Logo
Mitteilungsblatt VG Thaleischweiler-Wallhalben
Ausgabe 3/2024
Amtlicher Teil
Zurück zur vorigen Seite
Zurück zur ersten Seite der aktuellen Ausgabe

Bekanntmachung

Ortsgemeinde Winterbach

Einbeziehungssatzung „Hinterm Kauengarten“

hier: Beteiligung der Öffentlichkeit

Öffentliche Auslegung gem. § 3 Abs. 2 BauGB

Der Ortsgemeinderat Winterbach hat in seiner Sitzung am 20.12.2023 aufgrund § 2 Abs. 1 i.V.m. § 1 Abs. 3 BauGB und § 34 Abs. 4 Nr. 3 BauGB die Aufstellung der Einbeziehungssatzung „Hinterm Kauengarten“ beschlossen. Der Vorentwurf des Plans wurde in der Gemeinderatssitzung angenommen.

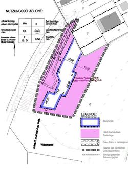
Gegenstand der Satzung ist die Einbeziehung der Teilfläche eines Grundstückes im Ortsteil Niederhausen in die Grenzen des im Zusammenhang bebauten Gebietes der Gemeinde Winterbach, Ortsteil Niederhausen, im Bereich der Gewanne „Unterhalb des Battweiler Weges“in Verlängerung der Gartenstraße. Folgendes Grundstück wird in den im Zusammenhang bebauten Ortsteil der Gemeinde

einbezogen: Gemarkung Niederhausen Gewanne Unterhalb des Battweiler Weges, Teilfläche aus demFlurst. Nr. 475/9. Die Gemeinde Winterbach sieht mit dieser Satzung die Möglichkeit, den Innenbereich zu erweitern, ohne den gesetzlichen Rahmen zu überschreiten. Mit dieser Satzung wird ein bereits verkehrlich voll erschlossenes Grundstück an einer vorhandenen Straße, der Gartenstraße, dem Innenbereich nach § 34 BauGB zugeordnet, so dass mit der Einbeziehung der unter § 2 dieser Satzung genannten Grundstücke zum Innenbereich eine Abrundung vorliegt. Um den Neubau von maximal 2 Wohngebäudes zu ermöglichen, ist beabsichtigt, einen Teilbereich des Grundstückes Plan-Nr. 475/9 als zulässige Baufläche festzusetzen.

Die Abgrenzung ist aus beiliegender Planzeichnung ersichtlich.

Zu der Aufstellung des Bebauungsplanes wird der Öffentlichkeit gem. § 3 Abs. 2 BauGB Gelegenheit gegeben, den Entwurf der Satzung mit Begründung in der Zeit vom

25.01.2024 bis einschließlich 26.02.2024

bei der Verbandsgemeindeverwaltung Thaleischweiler-Wallhalben, im Verwaltungsgebäude Thaleischweiler-Fröschen, Hauptstr. 52, Fachbereich 3, Natürliche Lebensgrundlagen und Bauen, während den allgemeinen Dienststunden,

Montag, Mittwoch und Freitag

von 8.30 - 12.00 Uhr

Mittwoch

von 14.00 - 18.00 Uhr

Montag und Donnerstag

von 14.00 - 16.00 Uhr

einzusehen.

Während der Auslegungsfrist können Stellungnahmen abgegeben werden. Es wird darauf hingewiesen, dass nicht fristgerecht abgegebene Stellungnahmen bei der Beschlussfassung über den Bauleitplan unberücksichtigt bleiben können. Die Stellungnahmen können schriftlich oder zur Niederschrift abgegeben werden. Auch eine Abgabe in elektronischer Form per E-Mail ist in diesem Zeitraum möglich, unter: nico.eichert@vgtw.de

Gem. § 4a Abs. 2 BauGB wird der Inhalt dieser Bekanntmachung und die öffentlich ausliegenden Unterlagen zusätzlich in das Internet auf der Homepage der Verbandsgemeinde Thaleischweiler-Wallhalben unter www.vgtw.de {{gt}}Ortsgemeinde Winterbach{{gt}}Bebauungspläne{{gt}}laufende Bauleitplanverfahren, eingestellt.

Die Einsichtnahme in die ausgelegten Planunterlagen ist im Anschluss nach vorheriger Terminabsprache mit den Mitarbeitern der Bauverwaltung während der Dienststunden unter der Telefonnummer 06334/441-275 oder per E-Mail nico.eichert@vgtw.de jederzeit möglich.

3/610-13/Ei

66987 Thaleischweiler-Fröschen, den 11.01.2024
Verbandsgemeindeverwaltung:
Eichert, Fachdienstleiter