Titel Logo
Amtsblatt der Stadt Mühlhausen Thüringen
Ausgabe 12/2023
Amtlicher Teil
Zurück zur vorigen Seite
Zurück zur ersten Seite der aktuellen Ausgabe

Allgemeinverfügung zum Jahreswechsel

Verbot Silvesterfeuerwerk in der Mühlhäuser Innenstadt

Mühlhausen ist mit seinem Reichtum an historischen Gebäuden, der fast vollständig erhaltenen Stadtmauer, den historischen Kirchen sowie alten Fachwerkhäusern das zweitgrößte Flächendenkmal in Thüringen. Das Abbrennen von Feuerwerkskörpern stellt eine große Gefahr für die historische Bausubstanz dar. Aus diesem Grund hat der Mühlhäuser Stadtrat im Juli 2023 mit großer Mehrheit zugestimmt, dass sich die Stadt Mühlhausen für ein Abbrennverbot von pyrotechnischen Gegenständen der Kategorie F2 einsetzt - dazu gehören z.B. Silvesterraketen, Raketenbatterien, Knallkörper und Fontänen. Ein entsprechender Antrag an das zuständige Thüringer Landesamt für Verbraucherschutz wurde gestellt, das daraufhin folgende Allgemeinverfügung erlassen hat:

Freistaat Thüringen, Landesamt für Verbraucherschutz, Abteilung Gesundheitlicher und technischer Verbraucherschutz, Dezernat 21 - EF, Tennstedter Str. 8/9, 99947 Bad Langensalza

Durchführung des Gesetzes über explosionsgefährliche Stoffe (Sprengstoffgesetz - SprengG) i.V. mit der Ersten Verordnung zum Sprengstoffgesetz (1. SprengV) Anordnung eines Abbrennverbotes für pyrotechnische Gegenstände der Kategorie F2 für den Bereich der historischen Altstadt in der Stadt Mühlhausen zum Jahreswechsel 2023 / 2024

Allgemeinverfügung

1.

Es wird angeordnet, dass am 31.12.2023 und am 01.01.2024 in der Stadt Mühlhausen im Bereich der historischen Altstadt und der unmittelbar angrenzenden Pufferzone pyrotechnische Gegenstände der Kategorie F2 nicht abgebrannt werden dürfen.

2.

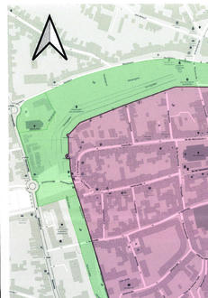
Das Gebiet der Allgemeinverfügung wird in dieser Anordnung entsprechend dem beigefügten Lageplan wie folgt eingegrenzt:

im Südwesten/Westen:

-

von der Einmündung der Jakobistraße in die Wanfrieder Straße entlang der östlichen und nördlichen Gebäudefront Wanfrieder Straße 3 zum Hoher Graben

-

entlang Hoher Graben bis zur nördlichen Bebauungsgrenze der Berufsfeuerwehr Mühlhausen weiterführend an der nördlichen Gebäudefront bis zur Straße Bastmarkt

-

am östlichen Straßenrand Bastmarkt in nördliche Richtung über den Kreisverkehr und den östlichen Straßenrand Petristeinweg bist zum Kreisverkehr Petristeinweg/Petriteich

im Nordwesten/Norden:

-

vom Kreisverkehr Petristeinweg/Petriteich entlang dem südlichen Straßenrand Petriteich, Pfortenteich, An der Burg, Kreuzgraben bis zur Einmündung Kreuzgraben/ Kiliansgraben

im Nordosten/Osten:

-

von der Einmündung Kreuzgraben/ Kiliansgraben entlang des westlichen Straßenrandes der Straße Kiliansgraben bis zur Straße Lindenbühl

im Südosten/Süden:

-

entlang des nördlichen Straßenrandes Lindenbühl bis zur Einmündung in die Wanfrieder Straße

-

weiterführend entlang des nördlichen Straßenrandes der Wanfrieder Straße bis zur Einmündung der Jakobistraße in die Wanfrieder Straße

Der Lageplan mit der Darstellung der Verbotszone (Anlage) ist Bestandteil dieser Anordnung.

3.

Die sofortige Vollziehung der Ziffern 1 und 2 wird angeordnet.

4.

Diese Anordnung ergeht kostenfrei.

Begründung:

Entsprechend § 23 Abs. 2 der 1. SprengV dürfen pyrotechnische Gegenstände der Kategorie F2 in der Zeit vom 2. Januar bis 30. Dezember nur durch Inhaber einer Erlaubnis nach § 7 oder § 27, eines Befähigungsscheines nach § 20 SprengG oder einer Ausnahmebewilligung nach § 24 Abs. 1 der 1. SprengV verwendet (abgebrannt) werden. Am 31. Dezember und 1. Januar dürfen sie auch von anderen Personen abgebrannt werden, die das 18. Lebensjahr vollendet haben. Gemäß § 24 Abs. 2 Nr. 1 der 1. SprengV kann die zuständige Behörde anordnen, dass pyrotechnische Gegenstände der Kategorie F2 in der Nähe von Gebäuden oder Anlagen, die besonders brandempfindlich sind, auch am 31. Dezember und am 1. Januar nicht abgebrannt werden dürfen. Die Zuständigkeit des Thüringer Landesamtes für Verbraucherschutz (TLV) ergibt sich aus § 2 der Thüringer Verordnung zur Regelung von Zuständigkeiten auf dem Gebiet des Arbeitsschutzes (ThürASZustVO) in Verbindung mit der Anlage zu § 2 ThürASZustVO, Ziffer 3.2.13.

Das Ensemble der historischen Altstadt mit einer Vielzahl historischer und denkmalgeschützter Gebäude wird in jeder Silvesternacht von vielen Menschen besucht, um den Jahreswechsel zu feiern. Zu den Silvesterfeierlichkeiten wird üblicherweise eine Vielzahl von pyrotechnischen Gegenständen der Kategorie F2 (z.B. Silvesterraketen, Raketenbatterien, Knallkörper, Fontänen etc.) abgebrannt. Dabei kann es zu einem leichtfertigen Umgang mit diesen pyrotechnischen Gegenständen und daraus resultierend zu erheblichen Gefahren für Personen sowie für die historische Substanz der Altstadt und ihrer besonders schutzwürdigen Kirchen kommen.

Das einmalige historische Erscheinungsbild des Stadtkerns mit der fast vollständig erhaltenen Stadtmauer und den historischen Kirchen sowie den alten Fachwerkhäusern ist besonders schützenswert. Aufgrund der engen Bebauung, der erschwerten Zugänglichkeit und der Beschaffenheit der Gebäude ergeben sich sowohl ein deutlich erhöhtes Risiko zur Entstehung eines Brandes als auch ein sehr großes potentielles Schadensausmaß im Brandfall. Hierbei geht die Brandgefahr nicht nur von der Fachwerkbauweise der Gebäude aus, vielmehr weisen die alten verschachtelten Häuser unvermeidbar eine Vielzahl von Eintrittsmöglichkeiten für aufsteigende Feuerwerke auf. So können Silvesterraketen zwischen schlechtsitzenden Ziegeln und Verwahrungen, aber auch in Dachläden, Lüftungsöffnungen, an Traufe und Ortgang, einschlagen. Insofern geht für die überwiegend mittelalterliche Bausubstanz der Altstadt der Stadt Mühlhausen eine verstärkte Gefahr durch abbrennende pyrotechnische Gegenstände der Kategorie F2 (Silvesterfeuerwerk) aus. Insbesondere Silvesterraketen können beim Abbrennen Temperaturen bis 2000°C entwickeln und stellen dadurch eine außerordentliche Brandgefahr dar. Die Anordnung eines Abbrennverbotes ist geeignet, in der Verbotszone Schäden am Menschen und an der Bausubstanz durch abbrennende pyrotechnische Gegenstände ursächlich zu verhindern. Durch das Abbrennen von pyrotechnischen Gegenständen der Kategorie F2 geht für die Bausubstanz der Altstadt eine verstärkte Brandgefahr aus, der allein durch ein Abbrennverbot begegnet werden kann.

Das Verbot erweist sich zudem als erforderlich, weil andere Mittel zur Gefahrenabwehr nicht in Betracht kommen. Für die Bürger und Gäste der Stadt Mühlhausen ist das Abbrennverbot auch verhältnismäßig, da ihnen im übrigen Stadtgebiet die Möglichkeit verbleibt, der Silvestertradition nachzugehen.

Der Abwendung der Brandgefahr zum Schutz der historischen Altstadt mit einer Vielzahl historischer und denkmalgeschützter Gebäude ist der Vorrang zu geben gegenüber dem privaten Interesse des Einzelnen. Es überwiegt der Schutz von bedeutsamen Rechtsgütern vor Brandgefahren gegenüber dem nur geringfügig eingeschränkten Vergnügen, diese Gegenstände in der Silvesternacht in der Verbotszone abzubrennen.

Die sofortige Vollziehung wird in öffentlichem Interesse angeordnet. Die Anordnung beruht auf § 80 Abs. 2 Nr. 4 der Verwaltungsgerichtsordnung (VwGO) vom 19.03.1991 (BGBl I S. 686) in der zurzeit gültigen Fassung. Nach dieser Vorschrift entfällt die aufschiebende Wirkung eines Widerspruchs in den Fällen, in denen die sofortige Vollziehung in öffentlichem Interesse angeordnet wurde. Der Abwehr der durch das Abbrennen von pyrotechnischen Gegenständen ausgehenden Gefahren für die historische Altstadt kommt wegen der Bedeutung der Rechtsgüter ein besonderes Gewicht zu. Es ist daher in öffentlichem Interesse geboten, die sofortige Vollziehung anzuordnen.

Diese Anordnung ist gemäß § 24 Abs. 2 der 1. SprengV öffentlich bekannt zu machen, um Bürger und Gäste der Stadt Mühlhausen über das Abbrennverbot in Kenntnis zu setzen.

Verstöße gegen diese Anordnung können entsprechend § 46 Nr. 9 der 1. SprengV i.V.m. § 41 Abs. 1 Nr. 16 SprengG als Ordnungswidrigkeit mit einer Geldbuße bis fünfzigtausend Euro geahndet werden.

Die Kostenentscheidung beruht auf § 3 Abs. 1 Thüringer Verwaltungskostengesetz (ThürVwKostG).

Rechtsbehelfsbelehrung:

Gegen diesen Bescheid kann innerhalb eines Monats nach Zustellung Widerspruch bei dem Thüringer Landesamt für Verbraucherschutz, Bad Langensalza erhoben werden.

Mit freundlichen Grüßen

Im Auftrag

Achim Keller

Dezernent

Anlage: Lageplan