Titel Logo
Gemeindenachrichten Amtsblatt der Gemeinde Nesse-Apfelstädt
Ausgabe 8/2025
Regionalnachrichten für alle Einwohner im Gebiet der Gemeinde Nesse-Apfelstädt
Zurück zur vorigen Seite
Zurück zur ersten Seite der aktuellen Ausgabe

Bekanntmachungen

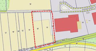
Gemeinde Nesse-Apfelstädt - Ortsteil Apfelstädt

Übersichtslageplan zum Geltungsbereich der 4. Änderung des Flächennutzungsplans

Gemeinde Nesse-Apfelstädt - Wandersleber Straße

Lageplan zum Geltungsbereich der 4. Änderung des Flächennutzungsplans