Titel Logo
Überherrner Rundschau
Ausgabe 26/2024
KDÜ
Zurück zur vorigen Seite
Zurück zur ersten Seite der aktuellen Ausgabe

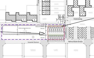
Errichtung von 8 Ladepunkten für Elektrofahrzeuge in der Kollwitzwiese, Ortsteil Wohnstadt

Die Kommunale Dienste Überherrn GmbH hat bisher bereits insgesamt 4 Ladepunkte für Elektrofahrzeuge am Marktplatz in Überherrn sowie am Rathaus in Bisten errichtet.

Nun sollen in der Weiterführung des Ladesäulenkonzepts 8 weitere Ladepunkte in der Kollwitzwiese entstehen.

Aufgrund dessen, werden entlang des Kollwitzweges 8 neue Stellflächen errichtet, die zur Ladung von Elektrofahrzeugen genutzt werden können.

Mit diesen Arbeiten werden wir voraussichtlich in der 27. KW 2024 (01.-05. Juli 2024) beginnen.

Weitere Informationen zum Ausbau der Ladepunkte in der Kollwitzwiese erhalten Sie in einer der nächsten Ausgaben.

Während der Bauzeit werden Engpässe und Unannehmlichkeiten leider nicht zu vermeiden sein. Wir bitten die Anwohnerinnen und Anwohner, sowie alle Verkehrsteilnehmerinnen und Verkehrsteilnehmer höflich um Verständnis für die mit diesen Arbeiten einhergehenden Beeinträchtigungen.

Für weitere Fragen stehen wir Ihnen gerne zur Verfügung.

Ihre KDÜ GmbH