Titel Logo
Der Stadtkurier Tambach-Dietharz
Ausgabe 7/2023
Amtlicher Teil
Zurück zur vorigen Seite
Zurück zur ersten Seite der aktuellen Ausgabe

Bekanntmachung

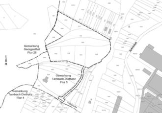
Stadt Tambach-Dietharz – Übersichtsplan zum Geltungsbereich des vorhabenbezogenen Bebauungsplans für das Sondergebiet zur Errichtung einer Photovoltaik-Freiflächenanlage „Am Fuchsgründchen“

der Satzung über den vorhabenbezogenen Bebauungsplan für das Sondergebiet zur Errichtung einer Photovoltaik-Freiflächenanlage „Am Fuchsgründchen“ der Stadt Tambach-Dietharz

Der Stadtrat der Stadt Tambach-Dietharz hat am 03.05.2023 mit Beschluss- Nr. 010/29/2023 die Satzung zum vorhabenbezogenen Bebauungsplan für das Sondergebiet zur Errichtung einer Photovoltaik-Freiflächenanlage „Am Fuchsgründchen“ beschlossen.

Gemäß § 21 Abs. 3 ThürKO erfolgte mit Schreiben vom 02.06.2023 die Anzeige der Satzung bei der Rechtsaufsichtsbehörde des Landratsamtes Gotha.

Die Rechtsaufsichtsbehörde hat mit Schreiben vom 27.06.2023 die Eingangsbestätigung erteilt. Durch die Rechtsaufsichtsbehörde wurden keine Auflagen erteilt. Sie gab die Erlaubnis, die Satzung vor Ablauf eines Monats nach Erhalt der Eingangsbestätigung bekannt zu machen.

Aufgrund des § 10 des Baugesetzbuches (BauGB) in der Fassung der Bekanntmachung vom 03. November 2017 (BGBI. 1 S. 3634) in Verbindung mit §§ 19 und 21 der Thüringer Gemeinde- und Landkreisordnung (ThürKO) in der Fassung der Neubekanntmachung vom 28. Januar 2003 (GVBI. S. 41). zuletzt geändert durch Artikel 1 des Gesetzes vom 10. April 2018 (GVBI. S. 74) hat der Stadtrat der Stadt Tambach-Dietharz in seiner öffentlichen Sitzung am 03.05.2023 den vorhabenbezogenen Bebauungsplan für das Sondergebiet zur Errichtung einer Photovoltaik-Freiflächenanlage „Am Fuchsgründchen“ als Satzung beschlossen.

Die Lage des Geltungsbereiches ist aus beigefügtem Übersichtsplan ersichtlich.

Der vorhabenbezogene Bebauungsplan für das Sondergebiet zur Errichtung einer Photovoltaik-Freiflächenanlage „Am Fuchsgründchen“ wird hiermit öffentlich bekannt gemacht.

Der vorhabenbezogene Bebauungsplan tritt gemäß § 10 Abs. 3 Satz 4 BauGB mit dieser öffentlichen Bekanntmachung in Kraft.

Jedermann kann den rechtskräftigen Bebauungsplan und die Begründung ab dem Tag der Bekanntmachung in der Stadtverwaltung der Stadt Tambach-Dietharz, Bauamt, Zimmer 119, Burgstallstraße 31a, 99887 Tambach-Dietharz, während der Öffnungszeiten

Dienstag

von 9.00 bis 12.00 und 13.00 bis 18.00 Uhr

Donnerstag

von 9.00 bis 12.00 und 13.00 bis 17.00 Uhr

einsehen und über den Inhalt Auskunft verlangen.

Der rechtskräftige Bebauungsplan ist ergänzend auf der Internetseite der Stadt Tambach-Dietharz unter: https://www.tambach-dietharz.de/kommunales/ortsrecht/ eingestellt.

Es wird darauf hingewiesen, dass nach §215 Abs. 1 BauGB

  • eine beachtliche Verletzung der in § 214 Abs. 1 Satz 1 Nr. 1-3 BauGB bezeichneten Verfahrens- und Formvorschriften,
  • eine unter Berücksichtigung des § 214 Abs. 2 BauGB beachtliche Verletzung der Vorschriften über das Verhältnis des Bebauungsplans und des Flächennutzungsplans
  • ein nach §214 Abs. 3 Satz 2 BauGB beachtlicher Mangel des Abwägungsvorgangs

nur beachtlich werden, wenn sie innerhalb eines Jahres seit Bekanntmachung des Bebauungsplans schriftlich gegenüber der Gemeinde geltend gemacht worden sind. Der Sachverhalt, der die Verletzung von Rechtsvorschriften oder den Mangel des Abwägungsvorgangs begründen soll, ist darzulegen. § 215 Abs. 1 Satz 1 BauGB gilt entsprechend, wenn Fehler nach §214 Abs. 2a BauGB beachtlich sind.

Ist dieser Bebauungsplan unter Verletzung von Verfahrens- oder Formvorschriften, die in der Thüringer Kommunalordnung enthalten oder aufgrund der Thüringer Kommunalordnung erlassen worden sind, zustande gekommen, so ist die Verletzung gemäß § 21 Abs. 4 Satz 1 ThürKO unbeachtlich, wenn sie nicht innerhalb eines Jahres nach Bekanntmachung der Satzung gegenüber der Gemeinde unter Bezeichnung des Sachverhalts, der die Verletzung begründen soll, schriftlich geltend gemacht worden ist. Dies gilt nicht, wenn die Vorschriften über die Genehmigung, die Ausfertigung oder die Bekanntmachung der Satzung verletzt worden sind (§ 21 Abs. 4 Satz 2 ThürKO).

Wurde eine Verletzung von Verfahrens- oder Formvorschriften geltend gemacht, so kann auch nach Ablauf der Jahresfrist jedermann diese Verletzung geltend machen (§ 21 Abs. 4 Satz 3 ThürKO).

Auf die Vorschriften des § 44 Abs. 3 Satz 1 und 2 BauGB über die Fälligkeit etwaiger Entschädigungsansprüche im Falle der in den §§ 39-42 BauGB bezeichneten Vermögensnachteile, deren Leistung schriftlich beim Entschädigungspflichtigen zu beantragen ist, und des § 44 Abs. 4 BauGB über das Erlöschen von Entschädigungsansprüchen, wenn der Antrag nicht innerhalb der Frist von drei Jahren gestellt ist, wird hingewiesen.

gez. Schütz

Bürgermeister