Titel Logo
Vorderrhönkurier
Ausgabe 23/2023
Stadt Vacha
Zurück zur vorigen Seite
Zurück zur ersten Seite der aktuellen Ausgabe

Startschuss für Baumaßnahme Gedächtnispark Vacha

Am 9. November fand der offizielle Baubeginn für die Baumaßnahme Gedächtnispark Vacha an der Werrabrücke statt. Zusammen mit Stadträten der Stadt Vacha, Frau Malecki vom Planungsbüro Hanf und Herr Nensel von der Firma AS Kreativ Pflasterbau setzte Bürgermeister Martin Müller den symbolischen ersten Spatenstich. Mit der Baumaßnahme an der Werrabrücke soll der südliche Brückenvorplatz neu gestaltet werden.

Zu DDR-Zeiten war die Situation an der Grenze in Vacha ziemlich einmalig. Genauso wie in Berlin stieß hier die Grenze in Form einer Betonmauer an bewohnte Häuser und Gewerbebetriebe. Von den ehemaligen Grenzanlagen sind heute nur noch der Führungsturm an der Oechse sowie ein kleinerer Mauerrest vorhanden. Jedes Wochenende erkunden Besucher und Touristen das Areal. Bis auf ein paar Hinweistafeln und das Ampelmännchen weist aber wenig auf die besondere Grenzsituation hin.

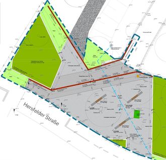
Um den gesamten Bereich zwischen Werrabrücke und Grenzturm aufzuwerten und touristisch besser zu erschließen hat die Stadt bereits vor mehreren Jahren von Planer Erik Hanf eine Studie erarbeiten lassen. Die Studie sieht unter anderem die Schaffung einer parkähnlichen Anlage zwischen der Werrabrücke und dem Grenzturm sowie eine Neugestaltung des Vachwerk-Parkplatzes vor.

Im vergangenen Jahr startete das Thüringer Umweltministerium einen Aufruf für Projekte am Grünen Band in Thüringen. Die Stadt Vacha reichte die Neugestaltung des südlichen Brückenvorplatzes als Projekt ein. Das Projekt wurde bewilligt und wird seitens des Freistaates Thüringen mit 90 Prozent gefördert. Nachdem im Laufe des Jahres das Projekt konkret durchgeplant wurde, können jetzt die Bauarbeiten beginnen.

Zunächst wird die Asphaltfläche des Brückenvorplatzes zurückgebaut, anschließend wird der Bereich mit Naturstein neu gepflastert. Der Verlauf der Grenzmauer bzw. des Streckmetallzaunes sowie des Vorfeldzaunes sollen symbolisch mit Metallbändern und -stäben dargestellt werden. Die Grundmauern des abgerissenen Bauernhofes Groß und des ehemaligen Petkusgebäudes werden ebenfalls symbolisch dargestellt. Ergänzend dazu werden die Grenzgeschichte sowie touristische Informationen auf neuen Infotafeln dargestellt. Abschließend werden noch moderne Sitzgelegenheiten installiert sowie eine Begrünung und Beschattung durch Bäume geschaffen.

Dazu erläutert Bürgermeister Martin Müller: „Der Gedächtnispark wertet den Brückenvorplatz erheblich auf und verbessert die Aufenthaltsqualität. Für unsere Bürger und Gäste wird die Grenzgeschichte erlebbar und wir schaffen einen neuen Anziehungspunkt für unsere Stadt und die Region. Ich freue mich, dass die Bauarbeiten jetzt losgehen.“

Es ist vorgesehen das Projekt bis Ende März 2024 umzusetzen. Insgesamt investiert die Stadt Vacha rund 300.000 €, wovon ca. 270.000 € durch Fördermittel des Freistaates und Ausgleichsleistungen zur Verfügung gestellt werden.